Komplett salgsoppgave

Ole Aasveds veg 4

2 685 000 kr
60 m²
1 soverom
Krogsveen v/Andreas Gunnesmæl presenterer Ole Aasved veg 4 -en flott og stilig andelsleilighet med egen hybel!
Krogsveen v/Andreas Gunnesmæl presenterer Ole Aasved veg 4 -en flott og stilig andelsleilighet med egen hybel!
Kart
Redesign på Hjem.no
Del
Bergheim
Lys og flott 2-roms på 60 kvm med hybel i byggets toppetasje! | To bad & kjøkken | Balkong | "alt" ink. i FK | Heis

Unngå doble boligrenter

Vi tilbyr gunstig forsikring.
Sjekk estimert lånekostnad

    Pris

  • Prisantydning
    2 685 000 kr
  • Andel fellesgjeld
    312 834 kr
  • Omkostninger
    19 253 kr
  • Totalpris
    3 017 087 kr

    Areal

  • BRUKSAREAL
    65 m²
  • BRA-I (internt bruksareal)
    60 m²
  • BRA-E (eksternt bruksareal)
    5 m²
  • TBA (terrasse-balkongareal)
    4 m²

    Nøkkelinfo

  • Etasje
    5
  • Byggeår
    2003
  • Soverom
    1 soverom
  • Bad
    2 bad
  • Type
    Andelsleilighet
  • Eierform
    Andel
  • Fasiliteter
    Heis og Balkong/Terrasse
  • Fellesutgifter
    9 051 kr
  • Energimerke
    Rød D

Visning

Ta kontakt med megler for avtale om privatvisning.
Ønsker du kun å bli holdt orientert, kan du fra eiendommens hjemmeside få varsel om solgtpris, eller kontakte megler.
Lurer du på noe?

Beskrivelse

Kort om eiendommen

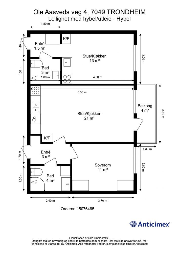
Krogsveen v/Andreas Gunnesmæl presenterer Ole Aasved veg 4 -en flott og stilig andelsleilighet med egen hybel! Her bor man med korte avstander til alt fra turterreng til kjøpesenter. Leiligheten består av en hoveddel på 40 kvm med balkong på 4 kvm, og en hybel på 20 kvm med egen inngang.
Verdt å nevne:
- Hybel med egen inngang og med leieinntekt kr 8.500,- pr mnd.
- To lyse kjøkken, begge med TG1!
- Romslig soverom på 11 kvm i hoveddelen.
- Praktisk stue-/kjøkkenløsning på 21 kvm.
- "Alt" inkludert i felleskostnadene.
- Balkong på 4 kvm med flott utsikt.
- P-plass på borettslagets tomt med mulighet for å søke om plass i p-kjeller.
- Kort avstand til marka.
- Nærhet til utmark, dagligvarebutikk, kollektivforbindelser og flere studiesteder.
- Felles vaskeri og sykkelbod i kjeller.
- Heis.

Innhold og byggemåte

Eiendommen

Ole Aasveds veg 4, 7049 TRONDHEIM
Kommunenummer 5001, gårdsnummer 52, bruksnummer 170, ideell andel 1/1
Andelsnummer 75, Nedre Bergheim B/L , organisasjonsnummer 985631433

Innhold

Totalt bruksareal BRA: 65 kvm
BRA-i:
5. etasje 40 kvm: Hoveddel: Entre, bad, soverom og stue/kjøkken.
5. etasje 20 kvm: Hybel: Entre, bad og stue/kjøkken.
BRA-e:
Kjeller: 5 kvm: Bod i kjeller.
Åpent areal:
5. etasje 4 kvm: Balkong.
Takhøyder er målt på tilfeldige steder i boligen.
Hybel: på stue er takhøyden målt til 2,42 meter og på bad er takhøyden målt til 2,20 meter.
Hoveddel: I stue er takhøyden målt til 2,41 meter og på kjøkken er takhøyden målt til 2,20 meter.
Boligen disponerer 1 bod i kjeller. Det gjøres oppmerksom på at boligens eksterne boder tilhører borettslagets fellesareal, og at boden således ikke eies av den enkelte andelseier. Dette medfører at borettslaget i fellesskap beslutter bruken, og at man ikke selv har eierrett og rettsvern for boden. Borettslaget kan ved vedtak beslutte annet bruk av fellesarealet og disponering av bodarealet kan dermed opphøre.  
Vedlagte plantegninger er ikke målbare. De oppgitte arealer er hentet fra rapport med befaringsdato 13.10.2025 utført av Anticimex AS avd. Trondheim.

Byggemåte

Selger har fått utarbeidet en tilstandsrapport, dvs. en teknisk gjennomgang av boligen hvor eventuelle avvik, risiko for kjøper og prisoverslag for hva som bør gjøres av oppgradering, er skissert. Se særskilt TGIU (tilstandsgrad ikke undersøkt), samt TG2 som viser hva som er boligens normale slitasje, alder og type, hva som er avvik fra dette og hva som bør/må utbedres. Rapporten og selgers egenerklæring er en del av salgsoppgaven og må leses nøye før bud inngis. Kjøper overtar ansvaret for de opplysninger som fremkommer av salgsdokumentasjonen, og kan ikke gjøre gjeldende som mangel noe som burde vært kjent eller som ikke kan anses å ha betydning for avtalen.  
Bygningen er iht. tilstandsrapporten leilighetsbygg oppført i 2004. Bygget er oppført med parkeringsanlegg i nederste etasje. Yttervegger av betong/ trekonstruksjoner. Fasaden er kledd med fasadeplater. Etasjeskillere av betong. Flatt tak (ikke besiktiget). Leiligheten har entrédør med brannklasse B30 og lydklasse db40. Vinduer og balkongdør med karmer av tre, og to-lags glass.
Les for øvrig mer om byggemåte og den tekniske tilstanden i rapporten.

Moderniseringer og påkostninger

Det er planer om å skifte ut heisene, og på generalforsamling 24.05.23 ble det vedtatt at styret i løpet av en treårsperiode kan bruke inntil kr 4 millioner til utskifting av heiser.

Standard

85% har fått TG1: I orden
9% har fått TG 2: Alder, slitasje, skader mv.
0% har fått TG 3: Strakstiltak nødvendig
6% har fått TGIU: Ikke undersøkt
Rapporten fra takstmann er en teknisk gjennomgang av boligen og angir eventuelle byggetekniske avvik. Sammendraget under beskriver avvik ved boligen som har fått tilstandsgrad TG2 og TGIU.
Tilstandsgrad 2:
- Våtrom hoveddel - Membran, tettesjikt og overgang til sluk på bakgrunn av alderen til tettesjiktet er det grunn til å varsle om risiko for svekket tettefunksjon eller lignende forhold som utvikles over tid. Tettesjiktets eksakte tilstand/eventuelle restlevetid er ikke kjent.
- Våtrom hoveddel - Fallforhold pga. lokalfall i sluksonen er mindre enn hva som ideelt anbefales. Det vurderes at fallforholdet ikke fører til tilfredsstillende avrenning av bruksvannet i nedslagsfeltet.
- Våtrom hybel - Overflater gulv pga. at det registreres stedvis misfarging på gulvbelegg.
- Våtrom hybel - Membran, tettesjikt og overgang til sluk på bakgrunn av alderen til tettesjiktet er det grunn til å varsle om risiko for svekket tettefunksjon eller lignende forhold som utvikles over tid. Tettesjiktets eksakte tilstand/eventuelle restlevetid er ikke kjent.
- Elektrisk anlegg - Forenklet vurdering av det elektriske anlegget pga. det er ikke fremlagt samsvarserklæring på det elektriske anlegget.
Tilstandsgrad IU:
- Våtrom hoveddel og hybel - På grunn av våtrommets utforming og bruk er det ikke praktisk mulig å gjennomføre hulltaking og fuktmåling i de mest fuktutsatte delene av våtsonen. Det ble derimot gjennomført et overflatesøk med fuktindikator, uten at det ble påvist indikasjoner som tyder på fuktskader.
- Ventilasjon pga. at anlegget er felles for bygningen. Bygningsdelen er derfor ikke undersøkt.
Tilstandsrapporten og selgers egenerklæring følger vedlagt i salgsoppgaven. Interessenter må sette seg inn i dokumentene før bud inngis.

Løsøre og tilbehør

Vi viser til liste fra Norges Eiendomsmeglerforbund som gjelder fra 01.01.2020 angående løsøre og tilbehør.
Dette følger ikke med i følge selger:
- Hvitevarer

Oppvarming

Elektrisk. Ventilasjon med naturlig tilluft kombinert med stedvis mekanisk avtrekk.

Ferdigattest/brukstillatelse

Det foreligger ferdigattest på leiligheten datert 27.01.2023. Denne kan fås ved henvendelse til megler.

Tinglyste heftelser og rettigheter

Utover andel fellesgjeld overdras leiligheten fri for pengeheftelser.
Borettslaget har legalpant for forfalte felleskostnader og andre krav som følger av borettslagsforholdet iht. burettslagsloven § 5-20. Pantet er begrenset oppad til 2G (G = folketrygdens grunnbeløp).
Det er ingen tinglyste servitutter på eiendommen. 

Eventuell adgang til utleie

Andelseier kan ikke uten samtykke fra styret i borettslaget overlate bruken av boligen til andre. Med samtykke kan andelseier overlate boligen til andre i inntil tre år hvis andelseier har bodd i boligen i minst ett av de to siste år. Utleie i andre tilfeller kan godtas ved særlige grunner, jf. burettslagslova § 5-6. Utleie forutsetter at leiligheten har forsvarlige radonverdier. Se også borettslagets vedtekter og konferer megler ved spørsmål.
Dersom andelseier selv ikke bebor leiligheten, må det søkes styret om godkjenning for å leie ut deler av boligen.

Diverse

Tilbud av produkter og tjenester fra våre samarbeidspartnere
VI er opptatt av verdiskapning, og har knyttet til oss samarbeidspartnere som skal sikre våre kunder de beste produkter og tjenester;
• Gjensidige leverer boligselgerforsikring og tilbyr bygningsforsikring
• Boligkjøperforsikring levers av Hiscox og med Sedgwick som skadebehandler, og er formidlet gjennom Gjensidige.
• BN bank tilbyr finansieringsløsninger
• Vår avdeling Krogsveen Pluss tilbyr flyttetjenester som utvask, visningsvask, lager, tømming og transport av flyttelass, i tillegg til å formidle kontakt med Flip for overflateoppussing.
• I forbindelse med overtagelse av eiendommen tilbyr Overo avtale om strøm, alarm og bredbånd.
• Krogsveen er, sammen med øvrige bransjeaktører, medeier i den digitale annonseringsplattformen Hjem.

Beliggenhet og tomteforhold

Beliggenhet

Leiligheten ligger i et rolig og familievennlig område på Bergheim. Området har et godt tilbud av barnehager og skoler. Bergheim barnehage ligger ca. 3 minutters gange unna, Åsvang skole (1. – 7. trinn) ca. 6 minutter gange unna, Hoeggen skole (8. – 10. trinn) ca. 7 minutter med bil unna, og Strinda videregående skole ca. 7 minutter med bil fra eiendommen. Nærmeste dagligvarebutikk er Coop Extra Moholt som ligger ca. 6 minutters gange fra boligen og Rema 1000 Dragvoll som ligger ca. 9 minutters gange unna.
Nærområdet byr på gode kollektivmuligheter, noe som gjør det enkelt å komme seg rundt. Med omtrent 900m til E6/Omkjøringsveien er det rask og praktisk adkomst både inn til sentrum og ut av byen. På Moholt finner du et bredt utvalg av dagligvarebutikker, samt apotek, frisør, blomsterbutikk, møbelforretning og bensinstasjon. Det er også kort avstand til City Lade, Lade Arena og Sirkus Shopping med et rikt utvalg av butikker og tjenester.
I nærheten av boligen finner du flere attraktive turområder, deriblant Estenstadmarka – et populært friluftsområde med flotte turmuligheter året rundt. Om vinteren prepareres skiløyper like ved boligen, og Estenstaddammen inviterer til en forfriskende dukkert. Mange søker seg til Estenstadhytta som et naturlig turmål, hvor det også finnes en natursti med nærmere 30 informasjonstavler om dyreliv, planter og natur.
For en mer detaljert oversikt over avstander og tilbud i nærområdet, se «Nabolagsprofilen».

Adkomst

Veibeskrivelse Se Google maps - det er enkelt å finne frem i kartet.
Det vil bli skiltet med Krogsveen visningsskilt ved fellesvisninger.

Barnehager, skoler og fritid

Barnehager i nærheten:
- Bergheim barnehage (0-5 år) 0.2 km
- Voll gårdsbarnehage (1-5 år) 0.5 km
- Åsvang barnehage (1-5 år) 0.6 km
Skoler i nærheten:
- Åsvang skole (1-7 kl.) 0.5 km
- Eberg skole (1-7 kl.) 1.6 km
- Steindal skole (1-7 kl.) 1.9 km
- Hoeggen skole (8-10 kl.) 1.7 km
- Blussuvoll skole (8-10 kl.) 2.5 km
- Strinda videregående skole, 2.5 km
- Charlottenlund videregående skole, 4.6 km
Høyere utdanning:
- NTNU Dragvoll, 1,3 km
- NTNU Moholt, 1,8 km
- NTNU Gløshaugen, 3,4 km
- NTNU Handelshøyskolen, 4 km
- Dronning Mauds Minne høgskole, 7,1 km
- Handelshøyskolen BI, 9,5 km
Dagligvare i nærheten:
- Coop Extra Moholt 6 min gange
- Rema 1000 Dragvoll 9 min gange
Offentlig transport:
- Bergheim (buss) 3 min gange, 0.2 km
- Lerkendal stasjon 3.8 km
- Trondheim S 13 min med bil
- Trondheim Værnes 28 min med bil
Informasjon om tilhørende skolekretser er hentet fra Prognosesenteret som dataleverandør, og tilhørigheten kan årlig endres av kommunen. Dersom skole- og barnehagetilbud er av betydning for kjøpet, ber vi om at det rettes en særskilt henvendelse til kommunen/bydelsadministrasjonen for oppdatert informasjon.

Beskrivelse av tomt

Felles tomt for Borettslaget opparbeidet med asfalt, grus, diverse beplantninger, plenareal, lekeplass og biloppstillingsplasser. Felles trappeoppgang med callinganlegg og heis.

Parkering

Borettslaget leier ut 68 parkeringsplasser for bil med mulighet for ladepunkt til el-/hybridbil, samt 6 parkeringsplasser for motorsykkel/scooter i parkeringskjeller.
Det er også flere gjesteparkeringsplasser.

Vei, vann og avløp

Eiendommen har adkomst via kommunal vei.
Eiendommen er tilknyttet kommunalt ledningsnett via private stikkledninger.
Borettslaget er ansvarlig for private stikkledninger til bygningen.

Regulerings-og arealplaner

Eiendommen er regulert til bolig/blokk bebyggelse i henhold til reguleringsplan r0365g datert 06.08.2002.  
Utsnitt av plan med tilhørende bestemmelser kan fås ved henvendelse til megler.

Økonomi

Boligens kostnader

Felleskostnadene er kr  9 051,-  pr. mnd. og inkluderer:
- Felleskostnad renter kr 970,-
- Finansiering måleutstyr kr 100,-
- Felleskostnad avdrag kr 3 360,-
- Felleskostnad driftsdel kr 2 922,-
- Fastbeløp måling og avregning energi kr 191,-
- Tillegg elektroniske fellesavtaler kr 378,-
- Strøm BRL Nedre Bergheim: 160/75 A konto strøm kr 1 130,-
Felleskostnadene justeres normalt en til to ganger årlig i forhold til borettslagets faktiske utgifter.
Boligselskapet har fellesmåling på varme og varmtvann. Månedlig a konto-betaling. Forbruk avregnes kvartalsvis. Målere skal avleses ved eierskifte.
Utgiftene er basert på nåværende eiers forbruk. Kjøper må selv tegne innboforsikring.

Formuesverdi

Formuesverdi for 2023 var kr 631 569,- ifølge skatteetaten. Beløpet forutsetter at eier bor fast i boligen (primærbolig).
Ved eventuell øvrig bruk av eiendommen (f.eks. fritidsbolig, pendlerbolig, utleieobjekt) var formuesverdien for 2023 kr 2 526 274,-
Formuesverdien justeres normalt årlig. Se skatteetaten.no for mer informasjon om fastsettelse av formuesverdien.

Opplysninger om fellesgjeld

Andel formue er kr 41 470,- pr. 31.12.2024
Andel fellesgjeld er kr 312 834,- pr. 09.10.2025
Total fellesgjeld for boligselskapet er kr 37 502 220,- pr. 09.10.2025 og lånevilkårene er:
Spesifikasjon av lån:
Lånenummer: 14623255810, Den Norske Stats Husbank
Annuitetslån, 4 terminer per år.
Rentesats per 09.10.2025: 4.64% pa.
Antall terminer til innfrielse: 33
Saldo per 09.10.2025: 14 881 884
Andel av saldo: 124 141
Første termin: 01.11.2007Første avdrag: 01.02.2009 (siste termin 01.11.2033)
Fast rente(01.11.29)
Lånenummer: 14623255840, Den Norske Stats Husbank
Annuitetslån, 4 terminer per år.
Rentesats per 09.10.2025: 4.6% pa.
Antall terminer til innfrielse: 14
Saldo per 09.10.2025: 6 151 299
Andel av saldo: 51 313
Første termin: 01.11.2007Første avdrag: 01.02.2009 (siste termin 01.02.2029)
Flytende rente fra 01.11.24
Lånenummer: 14623255830, Den Norske Stats Husbank
Annuitetslån, 4 terminer per år.
Rentesats per 09.10.2025: 4.64% pa.
Antall terminer til innfrielse: 34
Saldo per 09.10.2025: 16 469 037
Andel av saldo: 137 381
Første termin: 01.11.2007Første avdrag: 01.02.2009 ( siste termin 01.02.2034 )
Fastrente til 01.08.29

Omkostninger

2 685 000,00 Prisantydning
312 834,00 Andel av fellesgjeld
--------------------------------------------------------
2 997 834,00 Pris inkl. fellesgjeld
Omkostninger
8 213,00  Gebyr forhåndsavklaring forkjøpsrett
9 950,00  Gjensidige Boligkjøperpakke (valgfri)
545,00  Tinglysing hjemmel
545,00  Tinglysing panterettsdokument
--------------------------------------------------------
19 253,00 Omkostninger totalt
--------------------------------------------------------
3 017 087,00 Totalpris inkl. omkostninger
--------------------------------------------------------
Dersom kjøper ikke er medlem av boligbyggelaget, må det påregnes en innmeldingsavgift og årlig medlemsgebyr pr. ny andelseier. Dette faktureres direkte fra boligbyggelaget.
Dersom borettslaget har fellesgjeld, vil leilighetens andel av fellesgjelden komme i tillegg til kjøpesummen. Denne gjelden skal ikke innbetales i oppgjøret, men følger leiligheten.
Det tas forbehold om endringer i avgifter og gebyrer.

Betalingsbetingelser

Kjøpesum inkludert omkostninger, samt pantedokument tilknyttet eventuelt lån, skal være disponibelt hos megler 2 virkedager før overtagelsen.

Annen viktig informasjon

Eier

Hanne Gridsvåg

Informasjon om borettslaget

Leiligheten er tilknyttet Borettslaget Nedre Bergheim.
Borettslaget består av 110 leiligheter fordelt på 5 etasjeblokker.
Forretningsfører er TOBB.
Det er tegnet kollektiv avtale med NTE/Altibox.
Husdyrhold er generelt tillatt med mindre det er til sjenanse eller ulempe for de andre beboerne. Dugnad må påregnes.
Planer om vedlikehold:
- Det er planer om å skifte ut heisene, og på generalforsamling 24.05.23 ble det vedtatt at styret i løpet av en treårsperiode kan bruke
inntil kr 4 millioner til utskifting av heiser.
- Oppussing av trappeoppganger og korridorer er fremlagt for styret. Må påregnes.
- Oppgradering av Calling-anlegget må påregnes.
I henhold til borettslagets vedtekter må kjøper godkjennes av styret som ny andelseier. Det er kjøpers ansvar at styregodkjenning blir gitt, men styret kan ikke nekte godkjenning uten saklig grunn. Iht. burettslagslova kan man bare eie en andel i borettslaget. Kun fysiske personer kan være andelseiere.
Boligselskapet er med i sikringsordning.
Ansvar for felleskostnader i borettslag: Andelseiere er ansvarlig for å for å dekke borettslagets kostnader. Dette
gjøres ved betaling av månedlige felleskostnader. Hvis borettslaget lider tap som følge av at en andelseier ikke betaler sine felleskostnader, kan et eventuelt tap medføre at de andre andelseierne må betale høyere felleskostnader. Borettslaget har tegnet sikring, i henhold til borettslagsloven, mot denne type tap. Leverandør av sikring: Klare Finans AS.
Styret i borettslaget er ansvarlig for å tegne bygningsforsikring. Hver enkelt andelseier må skaffe egen
innboforsikring. Ved skifte av forsikringsselskap kan det ta tid før våre opplysninger er oppdatert.
Dokumenter for borettslaget kan fås ved henvendelse til megler.

Informasjon om forkjøpsrett

Øvrige andelseiere i borettslaget og eventuelt medlemmer av boligbyggelaget har forkjøpsrett. I henhold til burettslagslova tar dette inntil 20 dager å avklare fra melding om salget er gitt borettslaget. Dersom boligen tas på forkjøpsrett løses kjøper fra avtalen.  

Overtakelse

Etter nærmere avtale. Overtakelse kan tidligst skje etter at forkjøpsretten for øvrige andelseiere i borettslaget og eventuelt medlemmer av boligbyggelaget er avklart, samt at styrets godkjennelse er avklart. 

Boligselgerforsikring

Selger har i forbindelse med salget tegnet Boligselgerforsikring levert av Gjensidige. Boligselgerforsikring dekker selgers ansvar etter avhendingsloven begrenset oppad til kr 14 millioner. Dersom kjøper oppdager forhold ved eiendommen som hen mener utgjør en mangel ved eiendommen, vil Gjensidige behandle reklamasjonen på vegne av selger. Forsikringsvilkår kan fås ved henvendelse til megler.  
Vedlagt salgsoppgaven følger selgers egenerklæringsskjema og tilstandsrapport. Interessenter må sette seg inn i dokumentene før bud inngis. Egenerklæringen er fylt ut av arvingene iht deres kjennskap om eiendommen. Da de ikke har bebodd eiendommen kan kjennskapen være mangelfull.

Boligkjøperforsikring

Innen kontraktsmøtet må kjøper ta stilling til om det ønskes å bestille Boligkjøperpakken gjennom Gjensidige. I denne gunstige pakken er boligen ferdig forsikret og inkluderer rettshjelpsforsikring, også kalt Boligkjøperforsikring. Rettshjelpsforsikring gir trygghet og tilgang på profesjonell juridisk hjelp dersom det oppdages uventede feil eller mangler det første året etter overtagelse. Forsikringsselskapet behandler i så fall ethvert mangelskrav kjøper måtte ha overfor selger. 
Boligkjøperpakken inkluderer bygningsforsikring for hus og hytte, innboforsikring, flytteforsikring og dobbel rentedekning - i situasjoner hvor kjøper ikke får solgt nåværende primærbolig.   
Kjøper mottar ingen særskilt faktura for Boligkjøperpakken da kostnaden det første året legges til kjøpesummen for boligen. Det gjøres oppmerksom på Krogsveen mottar et honorar for denne formidlingen.
Produktark for Boligkjøperpakken ligger vedlagt i salgsoppgaven.  
Dersom ikke boligkjøperpakke ønskes kan kun rettshjelpsforsikring, også kalt boligkjøperforsikring, tegnes særskilt via megler. Rettshjelpsforsikringen varer i 5 år fra overtagelse og leveres gjennom Gjensidige. Ta kontakt med megler for ytterligere informasjon. 
Selskap og privatpersoner som driver med kjøp/salg/utvikling som ledd i egen næringsvirksomhet kan ikke tegne boligkjøperpakke eller rettshjelpsforsikring. 

Budgivning

Forbrukerinformasjon om budgivning er vedlagt denne salgsoppgaven og er også på vår hjemmeside Krogsveen.no. Alle bud og budforhøyelser må inngis skriftlig. I tillegg må legitimasjon være fremlagt sammen med signatur fra budgiver.
Vi oppfordrer til å gi bud elektronisk via GI BUD-knappen på eiendommens hjemmeside på Krogsveen.no. Da vil samtlige vilkår bli oppfylt.  
Eventuelle forhøyelser eller endringer av budet kan bekreftes pr SMS eller på e-post. Vi oppfordrer alltid til å kontakte megler pr. telefon i tillegg da forsinkelser i SMS og e-post kan forekomme.
For at budene skal kunne bli behandlet og videreformidlet skriftlig til alle involverte parter, må alle bud ha en tilstrekkelig lang akseptfrist, jf. eiendomsmeglingsforskriften § 6-3.
Selger må også skriftlig akseptere budet før aksept kan formidles til budgiver. Akseptfrist bør derfor være på minimum 30 minutter, og budforhøyelser må derfor skje i god tid før fristens utløp.
Bud i forbrukerforhold kan uansett ikke settes med kortere frist enn kl. 12.00 første virkedag etter siste annonserte visning. I tillegg kan ikke budet ha forbehold om at det skal holdes hemmelig ovenfor øvrige interessenter. Megler har iht lov om eiendomsmegling ikke anledning til å videreformidle disse budene, og de vil dermed heller ikke bli journalført.
Etter at eiendommen er solgt vil kjøper og selger få tilsendt budjournal. Øvrige budgivere kan få utlevert kopi av budjournalen i anonymisert form.

Hvitvaskingsreglene

I henhold til lov om hvitvasking og terrorfinansiering har megler plikt til å gjennomføre kontrolltiltak overfor kunder, herunder fullmektiger. Dette innebærer bl.a. å bekrefte kunders og reelle rettighetshaveres identitet på bakgrunn av fremvist gyldig legitimasjon eller på annen godkjent måte, samt å innhente opplysninger om kundeforholdets formål og tilsiktede art.
Dersom slike kundetiltak ikke kan gjennomføres, kan megler ikke etablere kundeforholdet eller utføre transaksjonen.
Hvis kjøper ikke bidrar til gjennomføring av kundekontrollen og dette fører til at transaksjonen blir forsinket eller ikke kan gjennomføres, vil dette ansees som mislighold av avtalen og gi selger rettigheter etter avhendingslova kapittel 5. I tilfeller der selger ikke bidrar til gjennomføring av løpende kundekontroll underveis i oppdraget, er det selger som misligholder sine forpliktelser etter avtalen og gi kjøper rettigheter etter avhendingslovens kapittel 4. Partene er selv ansvarlige for eventuelle kostnader og ansvar dette kan medføre. Eiendomsmegleren eller eiendomsmeglingsforetaket kan ikke holdes ansvarlig for de konsekvenser dette vil kunne få for partene eller andre som har interesser i eiendomshandelen.
Kjøper oppfordres til å innbetale kjøpesummen som ikke kommer fra låneinstitusjon i én samlet innbetaling fra egen konto i norsk bank. Megler har plikt til å melde fra til Økokrim om eiendomshandler som fremstår som mistenkelige. Melding sendes Økokrim uten at partene varsles. 

Personopplysningsloven

I henhold til personopplysningsloven gjør vi oppmerksom på at interessenter kan bli registrert for videre oppfølging.

Lovanvendelse

Generelle bestemmelser
Salgsoppgaven er basert på de opplysningene selger har gitt til megler, den bygningssakyndiges tilstandsrapport, samt opplysninger innhentet fra kommunen, Kartverket og andre tilgjengelige kilder. Det er viktig at kjøper setter seg grundig inn i alle salgsdokumentene, herunder salgsoppgave, tilstandsrapport og selgers egenerklæring. Kjøper anses kjent med forhold som er tydelig beskrevet i salgsdokumentene, og slike forhold kan ikke påberopes som mangler. Dette gjelder uavhengig av om kjøper har lest dokumentene. Alle interessenter oppfordres til å undersøke eiendommen nøye, gjerne sammen med fagkyndig før bud inngis. Kjøper som velger å kjøpe usett kan ikke gjøre gjeldende som mangel noe han burde blitt kjent med ved undersøkelsen. 
Dersom det er behov for avklaringer, anbefaler vi at interessenter rådfører seg med eiendomsmegler eller egne rådgivere før det legges inn bud.
En bolig som har blitt brukt i en viss tid, har vanligvis blitt utsatt for slitasje og skader kan ha oppstått. Slik bruksslitasje må kjøper regne med, og det kan avdekkes enkelte forhold etter overtakelse som nødvendiggjør utbedringer. Normal slitasje og skader som nødvendiggjør utbedring, er innenfor hva kjøper må forvente og vil ikke utgjøre en mangel.
Kjøper og selgers rettigheter og plikter reguleres av avtalen mellom partene, samt informasjonen som har vært tilgjengelig for kjøperen i forbindelse med handelen. Avtalen utfylles av avhendingsloven, og det gjelder ulike avtalevilkår avhengig av om kjøper er forbrukerkjøper eller ikke.  Dette er nærmere beskrevet nedenfor. 
På grunn av ulike avtalevilkår kan selger vurdere bud fra en som ikke er forbruker, ulikt fra en forbrukers bud. Dersom kjøper ikke er forbruker, er selger sitt mulige mangelsansvar begrenset fordi eiendommen selges "som den er".  Selger kan ikke ta «som den er»- forbehold overfor en forbrukerkjøper. Selv et lavere bud fra en som ikke er forbruker kan foretrekkes fordi begrensningen i mulig mangelsansvar kan ha egenverdi for selger. Selger står fritt til å forkaste eller akseptere ethvert bud, og er for eksempel ikke forpliktet til å akseptere høyeste bud.
Budgiver skal i budskjema avgi egenerklæring om budgiver er forbruker eller næringsdrivende/ person som hovedsakelig handler som ledd i næringsvirksomhet. Budgivere får informasjon dersom andre bud er inngitt av en som ikke er forbruker. 
Forbrukerkjøp - definisjon
Med forbrukerkjøp menes kjøp av eiendom når kjøperen er en fysisk person som ikke hovedsakelig handler som ledd i næringsvirksomhet.
Forbruker – avtalevilkår
Eiendommen har en mangel dersom den ikke er i samsvar med kravene som følger av avtalen, eller det foreligger brudd på bestemmelsene i avhendingsloven §§ 3-2 til 3-8. Hvis eiendommen ikke er i samsvar med det kjøperen må kunne forvente ut ifra alder, type og synlig tilstand, kan det være grunnlag for mangelskrav. Det samme gjelder hvis det er holdt tilbake eller gitt uriktige opplysninger om eiendommen. Dette gjelder likevel bare dersom man kan gå ut ifra at det virket inn på avtalen at opplysningen ikke ble gitt eller at mangelskravet ikke blir rettet i tide på en tydelig måte.
Boligen kan ha en mangel etter avhendingsloven § 3-3 andre ledd, dersom det er avvik mellom opplyst og faktisk innvendig areal, forutsatt at avviket er på 2% eller mer og minimum 1 kvm.
Ved beregning av et eventuelt prisavslag eller erstatning må kjøper selv dekke tap/kostnader opptil et beløp på kr 10 000 (egenandel).
Ikke-forbruker (næringsdrivende) – definisjon 
Hvis kjøper er en juridisk person, eller en fysisk person som hovedsakelig handler som ledd i næringsvirksomhet, vil kjøpet ikke anses som et forbrukerkjøp. 
Ikke-forbruker – avtalevilkår
Eiendommen har en mangel dersom den ikke er i samsvar med kravene som følger av avtalen.
Eiendommen selges «som den er», og selgers ansvar utover det konkret avtalte er da begrenset etter avhendingsloven § 3-9, første ledd andre setning. 
Avhendingsloven § 3-3 andre ledd fravikes, og hvorvidt boligens arealsvikt utgjør en mangel vurderes etter avhendingsloven § 3-8. 
Informasjon om kjøpers undersøkelsesplikt, herunder oppfordringen om å undersøke eiendommen nøye, gjelder også for kjøpere som ikke anses som forbrukere.
Det forutsettes at hjemmel overføres til kjøper. Hvis kjøper ikke ønsker hjemmelsoverføring av eiendommen, må det tas forbehold om dette i budet.

Meglers vederlag

Meglers vederlag betales av selger og er avtalt til:
Vederlag: 0,90 % av salgssummen inkl. eventuell fellesgjeld.
Vederlag
Kontroll av hjemmel og heftelser  kr 2 900,00
Kunderabatt Markedsføringspakke  kr -6 500,00
Markedsføringspakke  kr 27 400,00
Oppgjør  kr 7 500,00
Overtagelse  kr 1 000,00
Tilrettelegging  kr 12 000,00
Visninger pr stk  kr 2 000,00
Utlegg
Eierskiftegebyr forretningsfører - TOBB  kr 6 570,00
Innhenting av informasjon forretningsfører TOBB  kr 4 525,00
Innhenting av offentlig opplysninger Trondheim kommune  kr 2 368,00
Tinglysing sikring  kr 545,00
Andre utgifter
Boligselgerforsikring Gjensidige  kr 8 043,00
Foto - Leilighet  kr 4 500,00
Tilstandsrapport Anticimex  kr 10 750,00

Opplysninger om oppdraget

Oppdragsnummer 68-0118/25
Eiendomsmegler Krogsveen AS, avd. Trondheim
Fjordgata 82, 7010, TRONDHEIM
950 007 613
Oppdragets KR-kode KR68.25118

Dato

Sist oppdatert: 14. desember 2025 kl. 21:23

Dokumenter

Utskriftsvennlig salgsoppgave

Område

Legg til steder som er viktige for deg

Prisutvikling for området

Kvadratmeterpris
0 kr/m²
Endring
↘︎ % ()

Visning

Ta kontakt med megler for avtale om privatvisning.
Ønsker du kun å bli holdt orientert, kan du fra eiendommens hjemmeside få varsel om solgtpris, eller kontakte megler.
Lurer du på noe?

Vil du varsles om lignende boliger?

Ved å lagre ditt boligsøk hos oss får du beskjed når vi har en bolig som ligner denne, før den legges ut på markedet!

På flyttefot? Slik gjør vi det enklere for deg

Skreddersydd flyttepakke

Vi fikser håndverkere, vask, pakking, lagring og transport, og legger ut for utgiftene underveis.

Hjelp med både kjøp og salg

Hos oss har du din egen rådgiver gjennom hele kjøps- og salgsprosessen.

Hjelp til finansiering

Vårt samarbeid med BN Bank sikrer deg rask og løsningsorientert hjelp, til konkurransedyktige betingelser.