Komplett salgsoppgave

Kurefjordveien 512N

6 600 000 kr
65 m²
3 soverom
Velkommen til Jul i Larkollen. (julestemning er KI generert)
Velkommen til Jul i Larkollen. (julestemning er KI generert)
Kart
Redesign på Hjem.no
Del
Espen Anker-Larsen
Presenteres av
Espen Anker-Larsen
Møvik/Larkollen
Helårshytte m storslagen utsikt. Kr 0 i faste felleskost. Sol hele dagen, moderne standard.
Sjekk estimert lånekostnad

    Pris

  • Prisantydning
    6 600 000 kr
  • Omkostninger
    176 040 kr
  • Totalpris
    6 776 040 kr

    Areal

  • BRUKSAREAL
    70 m²
  • BRA-I (internt bruksareal)
    65 m²
  • BRA-E (eksternt bruksareal)
    5 m²
  • TBA (terrasse-balkongareal)
    69 m²

    Nøkkelinfo

  • Etasje
    1
  • Byggeår
    2009
  • Soverom
    3 soverom
  • Bad
    1 bad
  • Type
    Fritidseiendom ved sjøen
  • Eierform
    Eierseksjon
  • Energimerke
    Oransje D

Visning

For å delta på visning, ber vi om at du melder deg på. Da sikrer vi at du får nødvendig informasjon og at det er satt av tilstrekkelig med tid. Kontakt megler dersom annet tidspunkt ønskes. Husk å lese salgsoppgaven før visningen, så du stiller forberedt. NB. Visning utgår dersom det ikke er noen påmeldte.
Ønsker du kun å bli holdt orientert, kan du fra eiendommens hjemmeside få varsel om solgtpris, eller kontakte megler.
Lurer du på noe?

Beskrivelse

Kort om eiendommen

Moderne helårshytte fra 2009 ved Kurefjordens vestside
  • Sameiets kanskje beste plassering, med vid utsikt over Kurefjorden
  • Upåklagelige solforhold fra morgen til kveld
  • Ingen faste månedlige felleskostnader. Innbetaling til sameiet ved behov.
  • Lettstelt hage og omfangsrik terrasse på nær 70 kvm.
  • God og velholdt standard fra byggeåret
  • Spennende arkitektur med opptil 3,65 meter innvendig takhøyde
  • Kjør helt frem - parkeringsmulighet rett foran hytteveggen
  • Om lag én time fra Oslo - enkel vei fra E6
  • Store felles grøntarealer med lekeplass og bademulighet
  • Enkel tilgang til badestrender og flotte turområder
  • Sykkelavstand til sjarmerende Larkollen med kulturtilbud, spisesteder og nærbutikk
  • Flere småbåthavner i området

Innhold og byggemåte

Eiendommen

Kurefjordveien 512N, 1560 LARKOLLEN
Kommunenummer 3103, gårdsnummer 126, bruksnummer 94, seksjonsnummer 3, ideell andel 1/1

Innhold

Totalt bruksareal BRA: 70 kvm.
BRA-i:
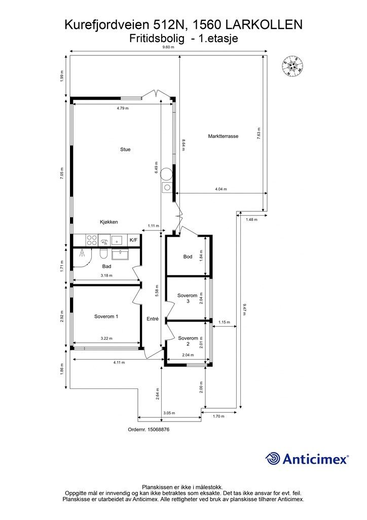
1. etasje: 65 kvm: Entré, bad, stue/kjøkken, tre soverom.
BRA-e:
1. etasje: 5 kvm: Tilliggende bod med tilstøtende vegger.
Åpent areal - Terrasse- og balkongareal (TBA):
1. etasje: 69 kvm: Markterrasse.
Arealet på hems måles til 18 kvm (ALH), men grunnet lav takhøyde er ingen deler av arealet måleverdig som bruksareal.
Soverom 2 og soverom 3 har en størrelse og utforming som begrenser bruken av rommet. Arealene er medtatt i rapporten etter bruken på befaringsdagen.
Vedlagte plantegninger er målsatte men ikke målbare. De oppgitte arealer er hentet fra rapport med befaringsdato 11.04.2025 utført av Anticimex AS. Arealene er beregnet og rom er definert etter dagens faktiske bruk, uavhengig av hva som er godkjent av bygningsmyndighetene.

Byggemåte

Selger har fått utarbeidet en tilstandsrapport, dvs. en teknisk gjennomgang av boligen hvor eventuelle avvik, risiko for kjøper og prisoverslag for hva som bør gjøres av oppgradering, er skissert. Se særskilt TGIU (tilstandsgrad ikke undersøkt), samt TG2 og TG3 som viser hva som er boligens normale slitasje, alder og type, hva som er avvik fra dette og hva som bør/må utbedres. Rapporten og selgers egenerklæring er en del av salgsoppgaven og må leses nøye før bud inngis. Kjøper overtar ansvaret for de opplysninger som fremkommer av salgsdokumentasjonen, og kan ikke gjøre gjeldende som mangel noe som burde vært kjent eller som ikke kan anses å ha betydning for avtalen.  
Byggemåte iht. tilstandsrapporten:
Fritidsboligen har støpt gulv mot grunn. Ringmur, bærende konstruksjoner og skillende dekker av termomur og trekonstruksjoner. Fasader utført i
liggende og stående trepanel. Yttertak av saltaksform i trekonstruksjoner utvendig tekket med takpapp. Ytterdør til bod med karm av tre.
Balkongdører og vinduer med karmer av tre i 2-lags glass fra byggeår og 2020.
Oppsummering av tilstandsgrader:
70% TG1, 15% TG2, 0% TG3 og 15% TGIU.
Det gjøres spesielt oppmerksom på:
Våtrom - bad: sluket er delvis isolert inne i dusjsonen, TG:2.
Teknisk anlegg: varmtvannsbereder er plassert i rom uten sluk, TG:2.
Terrasser/platting på terreng: noe skjevheter i konstruksjonen, markterrassen bærer stedvis preg av egeninnsats, TG:2.
Ovennevnte er kun et utdrag fra rapporten. Se supplerende tekst i tilstandsrapporten for mer informasjon. For øvrige tilstandsgrader og tilstandsgrader grunnet høy alder og evt. slitasje, så henvises det til rapporten. Kjøper overtar ansvar og risiko for dette.

Standard

Hytta er i dag velholdt i forhold til alder og brukstid. Den ble oppført med moderne standard for fritidsbruk og ikke minst spennende arkitektur der stor innvendig takhøyde er blant de fremste kvalitetene. En gjennomtenkt og praktisk romløsning gjør i tillegg hytta bruksvennlig.
Stuen og kjøkkenet er sømløst forbundet i en stor sosial sone med god plass til felles opphold. Takhøyden som på det meste er hele 3,65 meter høy bidrar til at stuen oppleves utpreget voluminøs og luftig. En hel rekke vinduer i alle stuens yttervegger med til dels store flater fyller rommet med både solstråler og mye naturlig lys gjennom dagen.
Kjøkkenets innredning er montert langs stuens bakvegg, til fordel for en størst mulig disponibel gulvflate i rommet for øvrig. Innredningen er for øvrig både oversiktlig, praktisk utformet og i sin helhet lite brukspreget. Alle hvitevarer er integrert og medfølger.
Badet og hyttas tre soverom er samlet i praktisk nærhet omkring gangen/entreen, tilbaketrukket og distansert fra romløsningens sosiale del. Badets standard står ikke tilbake for et tilsvarende i en helårsbolig og er fullt utstyrt, blant annet med opplegg for vaskemaskin. Gulv og vegger er flislagt, gulvet har også elektrisk varme.
Overflater og innredninger:
Gulv: Parkett, laminat og fliser.
Innervegger: Trepanel og glatte flater.
Himlinger: Glatte flater.
Kjøkken: Skapinnredning med glatte og profilerte hvite fronter. Laminert mørk benkeplate. Nedfelt stålvask med avrenningsbrett og ett-greps blandebatteri. Integrert platetopp, stekeovn, oppvaskmaskin og kombiskap. Ventilator i overskap.
Bad: Servantskap med glatte hvite fronter og heldekkende keramisk servant med ett-greps blandebatteri. Veggspeil med overbelysning og sideskap med glatt hvit front. Dusjhjørne med skyvedører og to-greps blandebatteri med hånddusj. Gulvmontert klosett. Rør-opplegg til vaskemaskin.

Løsøre og tilbehør

Vi viser til liste fra Norges Eiendomsmeglerforbund som gjelder fra 01.01.2020 angående løsøre og tilbehør.
Hvitevarer, vaskemaskin og spisebord medfølger eiendommen.

Oppvarming

Oppvarming med elektrisitet og ildsted. Gulvvarme på bad og i entrè.
Mosseregionen interkommunale brann og redning (MIB) gjennomførte tilsyn med fyringsanlegget den 24.10.2025.
Det ble ikke avdekket avvik under tilsynet.
Dersom beboelsesrom ikke har vegg- eller fastmonterte varmekilder ved visning, følger dette heller ikke med. 

Ferdigattest/brukstillatelse

Det foreligger ferdigattest på eiendommen datert 23.10.2009. Denne kan fås ved henvendelse til megler.
Ferdigattesten gjelder Kurefjordveien 512 - 3 hytter.
Kjøper overtar eiendommen slik den fremstår på visning.

Tinglyste heftelser og rettigheter

Fritidsboligen overdras fri for pengeheftelser.
Sameiet har legalpant for krav mot sameieren som følger av sameieforholdet iht. eierseksjonsloven § 31. Pantet er begrenset oppad til 2G, (G = folketrygdens grunnbeløp). 
Det er ingen tinglyste servitutter på eiendommen. 
Det er tinglyst følgende på eiendommens grunndata:
Dagboknr 486425, tinglyst 03.07.2009 - seksjonering.
Tinglyst seksjoneringsbegjæring som gjelder 3 hytter. Situasjonskart med stiplede linjer for eksklusivt areal av fellesareal. Rett til vederlagsfri bruksrett for adkomst over nabotomten gnr.26, bnr.1. Eiere av av 3 hytter betaler sin andel av vedlikehold og snøbrøyting.

Eventuell adgang til utleie

Fritidseiendommen har ikke separat utleiedel. Det vil normalt være anledning til utleie av hele eiendommen eller enkeltrom, såfremt utleiearealet er bygningsmessig godkjent for varig opphold.

Diverse

Vi er opptatt av verdiskapning, og har knyttet til oss samarbeidspartnere som skal sikre våre kunder de beste produkter og tjenester; 
•    Gjensidige leverer boligselgerforsikring og tilbyr bygningsforsikring
•    Boligkjøperforsikring leveres av Hiscox og med Sedgwick som skadebehandler, og er formidlet gjennom Gjensidige.
•    BN bank tilbyr finansieringsløsninger
•    Vår avdeling Krogsveen Pluss tilbyr flyttetjenester som utvask, visningsvask, lager, tømming og transport av flyttelass, i tillegg til å formidle kontakt med Flip for overflateoppussing.
•    I forbindelse med overtagelse av eiendommen tilbyr Overo avtale om strøm, alarm og bredbånd.
•    Krogsveen er, sammen med øvrige bransjeaktører, medeier i den digitale annonseringsplattformen Hjem.
 

Beliggenhet og tomteforhold

Beliggenhet

Møvik er et familievennlig ferieparadis på Kurefjordens vestside, midt i det fagre Ryggelandet. Selv vinterstid opplever du her en atmosfære av fred og ro.
Fra hytta er det i rett luftlinje ikke mer enn 130 meter til vannkanten og kun kort rusleavstand ned til vannet med badeplass og badeflåte. Sameiets store tomt strekker seg helt ned til stranden og byr på masse boltreplass for barna, blant annet på sandvolley-bane og lekeapparater. Blant de nærmeste naboene er også et større friområde med blant annet balløkke.
I en mer utvidet omkrets finnes en rekke andre fine sandstrender, de fleste innenfor sykkelavstand. Turmuligheter er det også mange av, både langs sjøen og gjennom vakkert åkerlandskap. Det er for øvrig kort avstand til Evje Golfpark med idyllisk banelandskap ned til vannkanten.
Besøksverdig er ikke minst sjarmerende Larkollen med blant annet velrenommerte Støtvig Hotel samt Losen der ulike kulturelle innslag kan oppleves gjennom sommersesongen.
I Larkollen er det også anledning til å handle dagligvarene, større shoppingmuligheter finnes på Halmstad og nærmere sentrum av Moss - gode 10 minutter unna med bil.
Fra E6 ved Halmstad tar det under 10 minutter å kjøre frem til Møvik.

Adkomst

Det vil bli skiltet med Krogsveen visningsskilt ved fellesvisninger.

Beskrivelse av tomt

Eiertomt på 1 788 kvm som tilhører sameiet. Tomten er fellesareal.
I henhold til sameiets vedtekter fremkommer følgende:
Stiplet linje som er vist på situasjonskart, danner et naturlig utgangspunkt for fritidsboligenes eksklusive bruksrett av fellesarealene.
Selger opplyser at hytta disponerer tomta på begge sider av gjerdet mellom hytte og garasje.

Parkering

Singlet biloppstillingsplass ved inngangspartiet. I tillegg felles biloppstillingsplass ved fellesbod.

Vei, vann og avløp

Eiendommen har adkomst fra kommunal vei og videre inn på privat vei med felles vedlikeholdsansvar. Eiendommen er tilknyttet kommunalt ledningsnett via private stikkledninger.
Eier er selv ansvarlig for private stikkledninger til boligen. Hver hytteeier har solidarisk ansvar for fremtidig vedlikehold og drift av vann og avløp frem til kommunens pumpestasjon, felles avkjørsel og evt. anlegg på friområder.

Regulerings-og arealplaner

I henhold til informasjon fra Moss kommune datert 17.03.2025 omfattes eiendommen av reguleringsplan "Del av Møvik (26/94)" med formål felles parkeringsplass og fritidsbebyggelse, vedtatt 11.09.2008 med plannr.M209. Eiendommen omfattes i tillegg av kommuneplan "Kommuneplanens arealdel 2021-2032" med formål fritidsbebyggelse nåværende, vedtatt 24.03.2021 med plannr.KP3002.
Eiendommen ligger i gul støysone iht. T-1442.
Utsnitt av plan med tilhørende bestemmelser kan fås ved henvendelse til megler.

Økonomi

Boligens kostnader

Det innbetales ingen faste månedlige felleskostnader til sameiet. In henhold til selger skjer innbetaling til sameiet ved behov, dog ingen nevneverdige innbetalinger de siste årene.
Eier må betale kommunale avgifter kr 12 114,- for inneværende år. I dette inngår gebyr for vann, avløp, renovasjon og eiendomsskatt. Det er ikke oppgitt kostnader for feiing/tilsyn. I henhold til Moss kommunes betalingsregulativ er kostnad for feiing/tilsyn oppgitt til kr 448,- for 2025. Ny eier må påregne at denne kan komme i tillegg.
Brannvesenet er pålagt å føre tilsyn med, og å feie pipeløp i alle fritidseiendommer. Det vil kunne medføre kostnader for kjøper til utbedring av evt. fremtidige pålegg og anmerkninger.
Eiendomsskatten utgjør kr 5.938,- av det ovennevnte beløp. Vann og avløp er stipulert med et a-konto forbruk på 13 kubikk.
Moss kommune fakturerer over 12 terminer.
Nåværende eier har et strømforbruk som tilsvarer ca. 3.700 kwh. pr. år.
Fritidseiendommen er koblet til Riks-TV og internett via selgers eget ICE abonnement.
Utgiftene er basert på nåværende eiers forbruk. Kjøper må selv tegne innboforsikring.

Formuesverdi

Formuesverdi for 2023 var kr 1 368 019,- ifølge skatteetaten.

Opplysninger om fellesgjeld

Det er ingen fellesgjeld i sameiet.

Omkostninger

6 600 000,00 Prisantydning
Omkostninger
165 000,00  Dokumentavgift til staten (2,5% av kjøpesum)
9 950,00  Gjensidige Boligkjøperpakke (valgfri)
545,00  Tinglysing panterettsdokument
545,00  Tinglysing skjøte
--------------------------------------------------------
176 040,00 Omkostninger totalt
--------------------------------------------------------
6 776 040,00 Totalpris inkl. omkostninger
--------------------------------------------------------
Dersom sameiet har fellesgjeld, vil leilighetens andel av fellesgjelden komme i tillegg til kjøpesummen. Denne gjelden skal ikke innbetales i oppgjøret, men følger leiligheten.
Totalpris inkl. omkostninger forutsetter kjøp til prisantydning.
Det tas forbehold om endringer i avgifter og gebyrer. 

Tilbud om lånefinansiering

Megler formidler gjerne kontakt med rådgiver hos vår samarbeidspartner BN Bank. De har konkurransedyktige betingelser samt rask og løsningsorientert behandling av din lånesøknad. Krogsveen mottar et honorar for denne formidlingen.

Betalingsbetingelser

Kjøpesum inkludert omkostninger, samt pantedokument tilknyttet eventuelt lån, skal være disponibelt hos megler 2 virkedager før overtagelsen.

Annen viktig informasjon

Eier

Thomas Oscar Thue

Informasjon om forkjøpsrett

Eiendommen er seksjonert, og fritidsboligen er tilknyttet Sameiet Møvik Vest, med sameiebrøk 1/3.
Sameiet består av 3 eierseksjoner.
Sameiet har ikke ekstern forretningsfører, men det føres regnskap. Dersom det mottas felles regninger til sameiet vil kostnader bli fordelt etter nærmere regler angitt av sameiet, vanligvis etter sameiebrøk eller vedtekter. Sameiestyret skal bestå av styreleder og to styremedlemmer. Styret skal avholde møter så ofte det trengs, dog minst 2 ganger i året.
Iht. sameiets vedtekter må kjøper ikke godkjennes av styret som ny sameier. Alle overdragelser eller bortleie av seksjoner skal meldes skriftlig til styret. 
Vi gjør videre oppmerksom på at det iht. eierseksjonsloven ikke er anledning å erverve mer enn 2 seksjoner i sameiet, her teller også eierskap via. firma, nærstående og familie. Kjøper har risikoen for at overskjøting på denne bakgrunn kan nektes av Statens Kartverk. I så fall vil kjøper uansett være forpliktet til å gjennomføre handelen, og oppgjør til selger vil finne sted tross manglende overskjøting. Konferer med megler for mer informasjon.
Dokumenter for sameiet og kopi av seksjonsbegjæringen kan fås ved henvendelse til megler.

Overtakelse

Etter nærmere avtale.

Boligselgerforsikring

Selger har i forbindelse med salget tegnet boligselgerforsikring levert av Gjensidige.  
Boligselgerforsikringen dekker selgers ansvar etter avhendingsloven begrenset oppad til kr 14 millioner. Dersom kjøper oppdager forhold ved eiendommen som hen mener utgjør en mangel ved eiendommen, vil Gjensidige behandle reklamasjonen på vegne av selger. Forsikringsvilkår kan fås ved henvendelse til megler.  
Vedlagt salgsoppgaven følger selgers egenerklæringsskjema og tilstandsrapport. Interessenter må sette seg inn i dokumentene før bud inngis. 

Boligkjøperforsikring

Innen kontraktsmøtet må kjøper ta stilling til om det ønskes å bestille Boligkjøperpakken gjennom Gjensidige. I denne gunstige pakken er boligen ferdig forsikret og inkluderer rettshjelpsforsikring, også kalt Boligkjøperforsikring. Rettshjelpsforsikring gir trygghet og tilgang på profesjonell juridisk hjelp dersom det oppdages uventede feil eller mangler det første året etter overtagelse. Forsikringsselskapet behandler i så fall ethvert mangelskrav kjøper måtte ha overfor selger. 
Boligkjøperpakken inkluderer bygningsforsikring for hus og hytte, innboforsikring, flytteforsikring og dobbel rentedekning - i situasjoner hvor kjøper ikke får solgt nåværende primærbolig.   
Kjøper mottar ingen særskilt faktura for Boligkjøperpakken da kostnaden det første året legges til kjøpesummen for boligen. Det gjøres oppmerksom på Krogsveen mottar et honorar for denne formidlingen.
Produktark for Boligkjøperpakken ligger vedlagt i salgsoppgaven.  
Dersom ikke boligkjøperpakke ønskes kan kun rettshjelpsforsikring, også kalt boligkjøperforsikring, tegnes særskilt via megler. Rettshjelpsforsikringen varer i 5 år fra overtagelse og leveres gjennom Gjensidige. Ta kontakt med megler for ytterligere informasjon. 
Selskap og privatpersoner som driver med kjøp/salg/utvikling som ledd i egen næringsvirksomhet kan ikke tegne boligkjøperpakke eller rettshjelpsforsikring. 

Budgivning

Forbrukerinformasjon om budgivning er vedlagt denne salgsoppgaven og er også på vår hjemmeside Krogsveen.no. Alle bud og budforhøyelser må inngis skriftlig. I tillegg må legitimasjon være fremlagt sammen med signatur fra budgiver.
Vi oppfordrer til å gi bud elektronisk via GI BUD-knappen på eiendommens hjemmeside på Krogsveen.no. Da vil samtlige vilkår bli oppfylt.  
Eventuelle forhøyelser eller endringer av budet kan bekreftes pr SMS eller på e-post. Vi oppfordrer alltid til å kontakte megler pr. telefon i tillegg da forsinkelser i SMS og e-post kan forekomme.
For at budene skal kunne bli behandlet og videreformidlet skriftlig til alle involverte parter, må alle bud ha en tilstrekkelig lang akseptfrist, jf. eiendomsmeglingsforskriften § 6-3.
Selger må også skriftlig akseptere budet før aksept kan formidles til budgiver. Akseptfrist bør derfor være på minimum 30 minutter, og budforhøyelser må derfor skje i god tid før fristens utløp.
Bud i forbrukerforhold kan uansett ikke settes med kortere frist enn kl. 12.00 første virkedag etter siste annonserte visning. I tillegg kan ikke budet ha forbehold om at det skal holdes hemmelig ovenfor øvrige interessenter. Megler har iht lov om eiendomsmegling ikke anledning til å videreformidle disse budene, og de vil dermed heller ikke bli journalført.
Etter at eiendommen er solgt vil kjøper og selger få tilsendt budjournal. Øvrige budgivere kan få utlevert kopi av budjournalen i anonymisert form.

Hvitvaskingsreglene

I henhold til lov om hvitvasking og terrorfinansiering har megler plikt til å gjennomføre kontrolltiltak overfor kunder, herunder fullmektiger. Dette innebærer bl.a. å bekrefte kunders og reelle rettighetshaveres identitet på bakgrunn av fremvist gyldig legitimasjon eller på annen godkjent måte, samt å innhente opplysninger om kundeforholdets formål og tilsiktede art.
Dersom slike kundetiltak ikke kan gjennomføres, kan megler ikke etablere kundeforholdet eller utføre transaksjonen.
Hvis kjøper ikke bidrar til gjennomføring av kundekontrollen og dette fører til at transaksjonen blir forsinket eller ikke kan gjennomføres, vil dette ansees som mislighold av avtalen og gi selger rettigheter etter avhendingslova kapittel 5. I tilfeller der selger ikke bidrar til gjennomføring av løpende kundekontroll underveis i oppdraget, er det selger som misligholder sine forpliktelser etter avtalen og gi kjøper rettigheter etter avhendingslovens kapittel 4. Partene er selv ansvarlige for eventuelle kostnader og ansvar dette kan medføre. Eiendomsmegleren eller eiendomsmeglingsforetaket kan ikke holdes ansvarlig for de konsekvenser dette vil kunne få for partene eller andre som har interesser i eiendomshandelen.
Kjøper oppfordres til å innbetale kjøpesummen som ikke kommer fra låneinstitusjon i én samlet innbetaling fra egen konto i norsk bank. Megler har plikt til å melde fra til Økokrim om eiendomshandler som fremstår som mistenkelige. Melding sendes Økokrim uten at partene varsles. 

Personopplysningsloven

I henhold til personopplysningsloven gjør vi oppmerksom på at interessenter kan bli registrert for videre oppfølging.

Lovanvendelse

Generelle bestemmelser
Salgsoppgaven er basert på de opplysningene selger har gitt til megler, den bygningssakyndiges tilstandsrapport, samt opplysninger innhentet fra kommunen, Kartverket og andre tilgjengelige kilder. Det er viktig at kjøper setter seg grundig inn i alle salgsdokumentene, herunder salgsoppgave, tilstandsrapport og selgers egenerklæring. Kjøper anses kjent med forhold som er tydelig beskrevet i salgsdokumentene, og slike forhold kan ikke påberopes som mangler. Dette gjelder uavhengig av om kjøper har lest dokumentene. Alle interessenter oppfordres til å undersøke eiendommen nøye, gjerne sammen med fagkyndig før bud inngis. Kjøper som velger å kjøpe usett kan ikke gjøre gjeldende som mangel noe han burde blitt kjent med ved undersøkelsen. 
Dersom det er behov for avklaringer, anbefaler vi at interessenter rådfører seg med eiendomsmegler eller egne rådgivere før det legges inn bud.
En bolig som har blitt brukt i en viss tid, har vanligvis blitt utsatt for slitasje og skader kan ha oppstått. Slik bruksslitasje må kjøper regne med, og det kan avdekkes enkelte forhold etter overtakelse som nødvendiggjør utbedringer. Normal slitasje og skader som nødvendiggjør utbedring, er innenfor hva kjøper må forvente og vil ikke utgjøre en mangel.
Kjøper og selgers rettigheter og plikter reguleres av avtalen mellom partene, samt informasjonen som har vært tilgjengelig for kjøperen i forbindelse med handelen. Avtalen utfylles av avhendingsloven, og det gjelder ulike avtalevilkår avhengig av om kjøper er forbrukerkjøper eller ikke.  Dette er nærmere beskrevet nedenfor. 
På grunn av ulike avtalevilkår kan selger vurdere bud fra en som ikke er forbruker, ulikt fra en forbrukers bud. Dersom kjøper ikke er forbruker, er selger sitt mulige mangelsansvar begrenset fordi eiendommen selges "som den er".  Selger kan ikke ta «som den er»- forbehold overfor en forbrukerkjøper. Selv et lavere bud fra en som ikke er forbruker kan foretrekkes fordi begrensningen i mulig mangelsansvar kan ha egenverdi for selger. Selger står fritt til å forkaste eller akseptere ethvert bud, og er for eksempel ikke forpliktet til å akseptere høyeste bud.
Budgiver skal i budskjema avgi egenerklæring om budgiver er forbruker eller næringsdrivende/ person som hovedsakelig handler som ledd i næringsvirksomhet. Budgivere får informasjon dersom andre bud er inngitt av en som ikke er forbruker. 
Forbrukerkjøp - definisjon
Med forbrukerkjøp menes kjøp av eiendom når kjøperen er en fysisk person som ikke hovedsakelig handler som ledd i næringsvirksomhet.
Forbruker – avtalevilkår
Eiendommen har en mangel dersom den ikke er i samsvar med kravene som følger av avtalen, eller det foreligger brudd på bestemmelsene i avhendingsloven §§ 3-2 til 3-8. Hvis eiendommen ikke er i samsvar med det kjøperen må kunne forvente ut ifra alder, type og synlig tilstand, kan det være grunnlag for mangelskrav. Det samme gjelder hvis det er holdt tilbake eller gitt uriktige opplysninger om eiendommen. Dette gjelder likevel bare dersom man kan gå ut ifra at det virket inn på avtalen at opplysningen ikke ble gitt eller at mangelskravet ikke blir rettet i tide på en tydelig måte.
Boligen kan ha en mangel etter avhendingsloven § 3-3 andre ledd, dersom det er avvik mellom opplyst og faktisk innvendig areal, forutsatt at avviket er på 2% eller mer og minimum 1 kvm.
Ved beregning av et eventuelt prisavslag eller erstatning må kjøper selv dekke tap/kostnader opptil et beløp på kr 10 000 (egenandel).
Ikke-forbruker (næringsdrivende) – definisjon 
Hvis kjøper er en juridisk person, eller en fysisk person som hovedsakelig handler som ledd i næringsvirksomhet, vil kjøpet ikke anses som et forbrukerkjøp. 
Ikke-forbruker – avtalevilkår
Eiendommen har en mangel dersom den ikke er i samsvar med kravene som følger av avtalen.
Eiendommen selges «som den er», og selgers ansvar utover det konkret avtalte er da begrenset etter avhendingsloven § 3-9, første ledd andre setning. 
Avhendingsloven § 3-3 andre ledd fravikes, og hvorvidt boligens arealsvikt utgjør en mangel vurderes etter avhendingsloven § 3-8. 
Informasjon om kjøpers undersøkelsesplikt, herunder oppfordringen om å undersøke eiendommen nøye, gjelder også for kjøpere som ikke anses som forbrukere.
Det forutsettes at hjemmel overføres til kjøper. Hvis kjøper ikke ønsker hjemmelsoverføring av eiendommen, må det tas forbehold om dette i budet.

Meglers vederlag

Meglers vederlag betales av selger og er avtalt til:
Provisjon: 1,4% av salgssum
Tilrettelegging: kr. 7.500,-
Markedspakke: kr 20.000,-
Oppgjørshonorar: kr. 7.500,-
Foto: kr. 5.500,-
Visninger: kr 2.900,- pr. stk. (2 stk. visninger inkl.)
Offentlig informasjon: kr 3.500,-
Eierskiftegebyr solibo/fram forvaltning: kr 6.385,-
Innhenting av informasjon forretningsfører: kr 4.990,-
tinglysing sikring: kr 545,-
Boligselgerforsikring Gjensidige inkl. tilstandsrapport Anticimex: kr 58.590,-
Megler har i tillegg krav på dekning av utlegg.

Opplysninger om oppdraget

Oppdragsnummer 30-0050/25
Eiendomsmegler Krogsveen AS, avd. Moss
Kongens gate 23, 1530, MOSS
950 007 613
Oppdragets KR-kode KR30.2550

Dato

Sist oppdatert: 14. desember 2025 kl. 21:16

Dokumenter

Utskriftsvennlig salgsoppgave

Område

Legg til steder som er viktige for deg

Prisutvikling for området

Kvadratmeterpris
0 kr/m²
Endring
↘︎ % ()

Visning

For å delta på visning, ber vi om at du melder deg på. Da sikrer vi at du får nødvendig informasjon og at det er satt av tilstrekkelig med tid. Kontakt megler dersom annet tidspunkt ønskes. Husk å lese salgsoppgaven før visningen, så du stiller forberedt. NB. Visning utgår dersom det ikke er noen påmeldte.
Ønsker du kun å bli holdt orientert, kan du fra eiendommens hjemmeside få varsel om solgtpris, eller kontakte megler.
Lurer du på noe?

Vil du varsles om lignende boliger?

Ved å lagre ditt boligsøk hos oss får du beskjed når vi har en bolig som ligner denne, før den legges ut på markedet!

På flyttefot? Slik gjør vi det enklere for deg

Skreddersydd flyttepakke

Vi fikser håndverkere, vask, pakking, lagring og transport, og legger ut for utgiftene underveis.

Hjelp med både kjøp og salg

Hos oss har du din egen rådgiver gjennom hele kjøps- og salgsprosessen.

Hjelp til finansiering

Vårt samarbeid med BN Bank sikrer deg rask og løsningsorientert hjelp, til konkurransedyktige betingelser.