Solgt

Hauanveien 34A

5 800 000 kr
176 m²
3 soverom
Velkommen til Hauanveien 34A!
Velkommen til Hauanveien 34A!
Kart
Del
Simen Ruud
Presenteres av
Simen Ruud
Konnerud
Innholdsrik enebolig med suverene sol- & utsiktsforhold. Usjenert hage med hagestue & fine uteplasser. Nær bhg & skole.

Unngå doble boligrenter

Vi tilbyr gunstig forsikring.
Sjekk estimert lånekostnad

    Pris

  • Prisantydning
    5 800 000 kr
  • Omkostninger
    165 990 kr
  • Totalpris
    5 965 990 kr

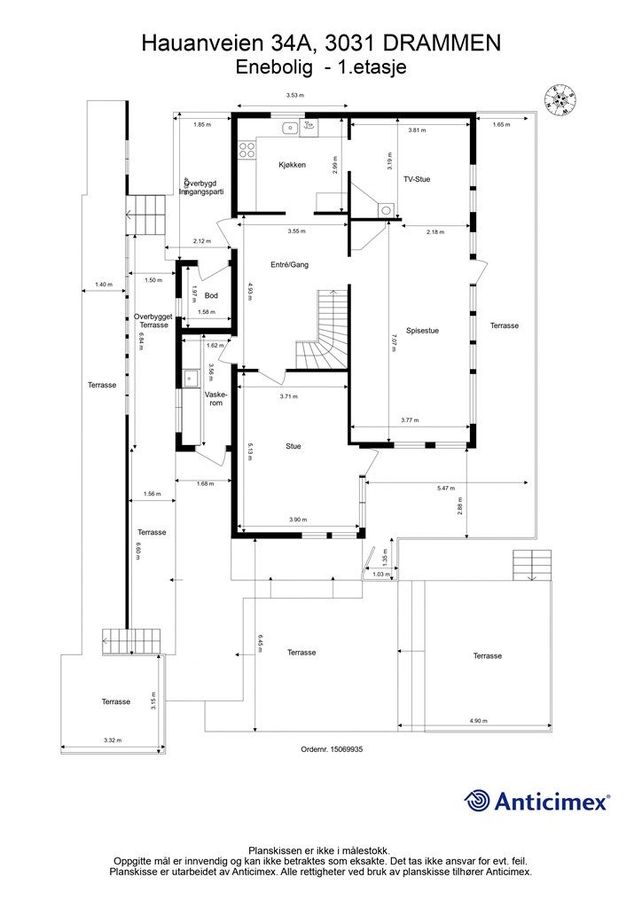
    Areal

  • BRUKSAREAL
    185 m²
  • BRA-I (internt bruksareal)
    176 m²
  • BRA-E (eksternt bruksareal)
    9 m²
  • TBA (terrasse-balkongareal)
    173 m²

    Nøkkelinfo

  • Etasje
    3
  • Byggeår
    1920
  • Soverom
    3 soverom
  • Bad
    2 bad
  • Tomteareal
    932 m² (eiet)
  • Type
    Enebolig - Frittliggende
  • Eierform
    Eiet
  • Fasiliteter
    Balkong/Terrasse
  • Energimerke
    Gul G

På flyttefot? Tenk kjøp og salg samtidig.

Få din egen rådgiver gjennom hele kjøps- og salgsprosessen. Det starter med en verdivurdering.

Dette liker selger best ved boligen

Den usjenerte hagen med god boltreplass for store og små, og flott utsikt med gode solforhold.

Beskrivelse

Kort om eiendommen

Velkommen til Hauanveien 34A Innholdsrik enebolig over tre etasjer med tre romslige soverom, to stuer, to bad og flott hage med flere solrike uteplasser
  • Beliggende i enden av privat blindvei med ingen gjennomgangstrafikk
  • Usjenert beliggenhet med fine sol-og utsiktsforhold
  • Boligen har store og gode rom med en familievennlig planløsning
  • Romslig stue med god plass til spiseplass og sofaområde
  • Store vindusflater som slipper inn rikelig med naturlig lys
  • 2 bad med dusjhjørne og toalett
  • Klassisk kjøkkeninnredning fra 2019 med integrerte hvitevarer
  • Praktisk vaskerom med egen inngang
  • Parkering på egen gårdsplass og 2 tinglyste p-plasser på naboeiendommen
  • Gangavstand til bhg, skoler & buss
  • Nærhet til flotte turområder Velkommen til visning!
  • Område

    Legg til steder som er viktige for deg

    Prisutvikling for området

    Kvadratmeterpris
    0 kr/m²
    Endring
    ↘︎ % ()

    På flyttefot? Tenk kjøp og salg samtidig.

    Få din egen rådgiver gjennom hele kjøps- og salgsprosessen. Det starter med en verdivurdering.

    Vil du varsles om lignende boliger?

    Ved å lagre ditt boligsøk hos oss får du beskjed når vi har en bolig som ligner denne, før den legges ut på markedet!

    På flyttefot? Slik gjør vi det enklere for deg

    Skreddersydd flyttepakke

    Vi fikser håndverkere, vask, pakking, lagring og transport, og legger ut for utgiftene underveis.

    Hjelp med både kjøp og salg

    Hos oss har du din egen rådgiver gjennom hele kjøps- og salgsprosessen.

    Hjelp til finansiering

    Vårt samarbeid med BN Bank sikrer deg rask og løsningsorientert hjelp, til konkurransedyktige betingelser.