Komplett salgsoppgave

Løefjellstigen 4

4 190 000 kr
132 m²
6 soverom
Velkommen til denne svært flotte og innholdsrike hytta på Brokke
Velkommen til denne svært flotte og innholdsrike hytta på Brokke
Kart
Redesign på Hjem.no
Del
Eivind Bjorå
Presenteres av
Eivind Bjorå
Innholdsrik hytte med 6 soverom, loftstue, 2 bad. 16 sengeplasser, utestue. stor garasje. flott tomt!
Sjekk estimert lånekostnad

    Pris

  • Prisantydning
    4 190 000 kr
  • Omkostninger
    106 012 kr
  • Totalpris
    4 296 012 kr

    Areal

  • BRUKSAREAL
    163 m²
  • BRA-I (internt bruksareal)
    132 m²
  • BRA-E (eksternt bruksareal)
    31 m²
  • TBA (terrasse-balkongareal)
    68 m²

    Nøkkelinfo

  • Etasje
    2
  • Byggeår
    2015
  • Soverom
    6 soverom
  • Bad
    2 bad
  • Tomteareal
    820 m² (eiet)
  • Type
    Fritidseiendom på fjellet
  • Eierform
    Eiet
  • Fasiliteter
    Garasje/P-plass og Balkong/Terrasse
  • Energimerke
    Gul C

Visning

For å delta på visning, ber vi om at du melder deg på. Da sikrer vi at du får nødvendig informasjon og at det er satt av tilstrekkelig med tid. Kontakt megler dersom annet tidspunkt ønskes. Husk å lese salgsoppgaven før visningen, så du stiller forberedt. NB. Visning utgår dersom det ikke er noen påmeldte innenkl. 14.00 dagen før visning..
Ønsker du kun å bli holdt orientert, kan du fra eiendommens hjemmeside få varsel om solgtpris, eller kontakte megler på 96886900..
Lurer du på noe?

Beskrivelse

Kort om eiendommen

Velkommen til Løefjellstigen 4. Dette er en fantastisk pen og innholdsrik hytte på en flott beliggende og opparbeidet tomt. Sentralt beliggende på Brokke i populært hyttefelt. Her får du hele 16 sengeplasser og 5 soverom i tillegg til tv-stue. Stor solrik terrasse og pent opparbeidet hage og uteområde samt utestue med eget boblebad og lekker utsikt og supre solforhold. Gåavstand til alle fasiliteter som skisenter, oppkjørte skiløyper, turløyper og badeplasser.
Stor isolert garasje med bod på siden med god plass til alt av ved og sportsutstyr. Stor asfaltert gårdsplass med plass til flere biler. Her kan du samle hele storfamilien!
Kopier denne adressen for 3D visning av hytten: https://my.matterport.com/show/?m=2sWWBWJTHeo

Innhold og byggemåte

Eiendommen

Løefjellstigen 4, 4748 RYSSTAD
Kommunenummer 4221, gårdsnummer 62, bruksnummer 231

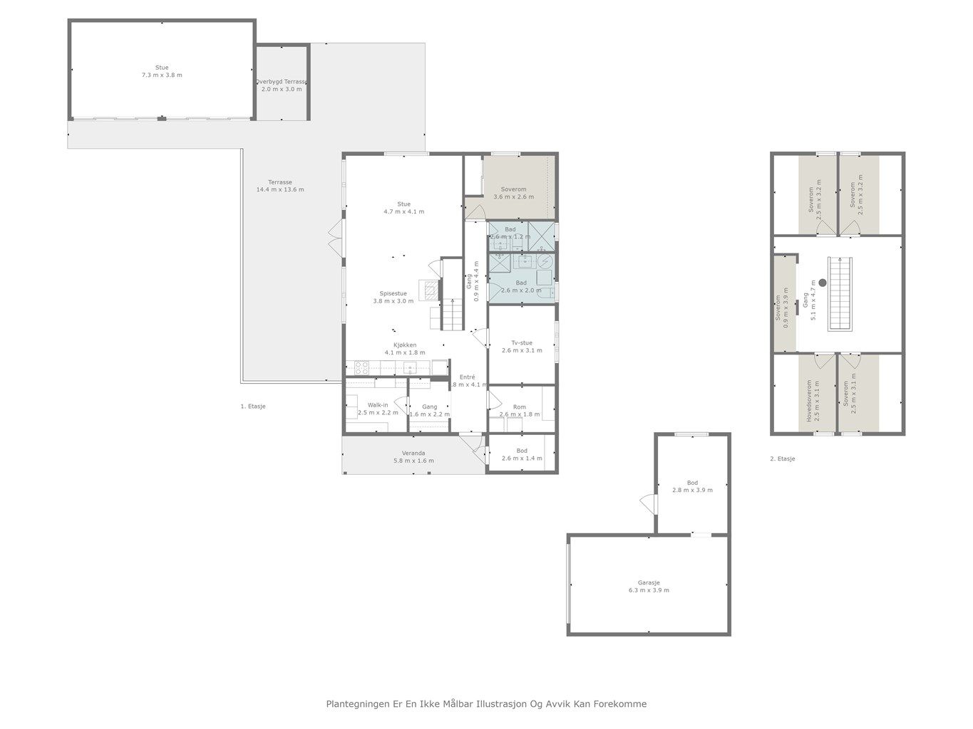
Innhold


Totalt bruksareal BRA: 163 kvm
BRA-i:
Fritidsbolig :
1. etasje 90 kvm: Stue/kjøkken,3 boder, entré, 2 soverom, bad/vaskerom, bad.
2. etasje 42 kvm: 4 Soverom, stue m/trapp.
BRA-e:
Fritidsbolig :
1. etasje 4 kvm: Utvendig Bod.
Utestue :
1. etasje 27 kvm: Utestue.
Åpent areal:
Fritidsbolig :
1. etasje 68 kvm: Terrasse.
Vedlagte plantegninger er ikke målbare. De oppgitte arealer er hentet fra rapport med befaringsdato 11.09.2025 utført av Takstingeniør Jan Arild Tallaksen. Arealene er beregnet og rom er definert etter dagens faktiske bruk, uavhengig av hva som er godkjent av bygningsmyndighetene.
Det gjøres oppmerksom på at utestuen ikke er søknadspliktig, og selger har søkt og fått godkjent i eiendomskartet..

Byggemåte

Selger har fått utarbeidet en tilstandsrapport, dvs. en teknisk gjennomgang av boligen hvor eventuelle avvik, risiko for kjøper og prisoverslag for hva som bør gjøres av oppgradering, er skissert. Se særskilt TGIU (tilstandsgrad ikke undersøkt), samt TG2 og TG3 som viser hva som er boligens normale slitasje, alder og type, hva som er avvik fra dette og hva som bør/må utbedres. Rapporten og selgers egenerklæring er en del av salgsoppgaven og må leses nøye før bud inngis. Kjøper overtar ansvaret for de opplysninger som fremkommer av salgsdokumentasjonen, og kan ikke gjøre gjeldende som mangel noe som burde vært kjent eller som ikke kan anses å ha betydning for avtalen.  
Bygningen er iht. tilstandsrapporten oppført i tre/mur/betong.
Les forøvrig mer om byggemåte og den tekniske tilstanden i rapporten.
Sammendrag av boligens tilstand :
Taktekkingen er av torv. Takrenner, nedløp og beslag av metall. Veggene har bindingsverkskonstruksjon fra byggeår. Fasade/kledning har stående bordkledning. Takkonstruksjonen har A-takstoler i tre.
Bygningen har malte trevinduer med 2-lags glass. Bygningen har malt hovedytterdør og malt balkongdør i tre. Veranda med utgang fra stue. Dekke av terrassebord. Rekkverk av tre.
Innvendig er det gulv av furu, betong og fliser. Veggene har trepanel. Innvendige tak har trepanel. Etasjeskiller er av trebjelkelag. I 1. etasje er det støpt plate på mark. Bygget er opplyst utført med radonsperre men ingen dokumentasjon foreligger. Hytta har elementpipe og vedovn. Hytta har tretrapp. Fritidsboligen har innerdører av tre.
Fritidsboligen er tilkopla til privat vann- og avløpsanlegg som blir driftet av Brokke vatn og avlaup AS v/Nomeland Maskin AS. Avløpsrør av PVC og vannledning av plast/metall.
Se tilstandsrapportens side 6. for oppsummering om tilstandsgrader og TG2 avvik, og henvisning til sider for utfyllende informasjon om avvik.
Fritidsbolig
Utvendig
Veggkonstruksjon,TG2
Veggene har bindingsverkskonstruksjon fra byggeår. Fasade/kledning har stående bordkledning.
Vurdering av avvik:
- Bordkledning går stedvis nesten helt ned i terreng.
- I hht FDV fra leverandør av kledning: Kledningen skal ha minst 30 cm avstand til terreng for å unngå vannsprut opp på kledningen fra bakken. På steder der det er liten fare for vannsprut kan denne avstanden reduseres noe, men ikke under 10 cm. På stående kledning skal avslutningen være skråskåret med en vinkel på ca. 15° slik at vann drypper av i forkant.
Tiltak
- Lokal utbedring bør foretas for å øke avstanden mellom terreng og bordkledning.
- Kledning som står nærme terrenget vil ha økt behov for maling og med fare for fukt og råte i kledningen og bakenforliggende konstruksjoner. Regelmessig vedlikehold forlenger levetiden på treverk og mur slik at fukt og vann ikke trenger inn i konstruksjonen.
Innvendig
Etasjeskille/gulv mot grunn,TG2
Etasjeskiller er av trebjelkelag. I 1. etasje er det støpt plate på mark. Målingene er begrenset av at boligen var møblert på befaringsdagen, det er ikke flyttet på tyngre gjenstander slik som senger, kommoder eller fastmonterte innredninger.
Vurdering av avvik:
- Det er målt høydeforskjell på mellom 15-30 mm gjennom hele rommet. Tilstandsgrad 2 gis med bakgrunn i standardens krav til godkjente måleavvik.
Tiltak
- For å få tilstandsgrad 0 eller 1 må høydeforskjeller rettes opp. Ytterligere undersøkelser må foretas for å få kartlagt omfanget for utbedring.
- .
Radon,TG2
Bygget er opplyst utført med radonsperre men ingen dokumentasjon foreligger.
Vurdering av avvik:
- Dokumentasjon på radonsperre foreligger ikke.
Tiltak
- Innhent dokumentasjon, om mulig.
- Enkle bygningsmessige tiltak kan innebære tetting av konstruksjonen mot grunnen, for eksempel ved å pusse utette vegger mot terreng, tette hull og sprekker i betong, samt fuger mellom ulike bygningsdeler og i støpeskjøter. Ventilasjonen kan også forbedres ved å benytte eksisterende ventiler mer aktivt eller ved å installere vifter for å øke luftutskiftningen. I uttalte tilfeller kan det legges en radonbrønn med kontinuerlig avsug av radon fra grunnen. Undertrykk under kjellergulvet ved bruk av kontinuerlig mekanisk avsug hindrer gassen i å trenge inn i huset der det ellers alltid blir et lett undertrykk på grunn av ventilasjonen.
Innvendige trapper,TG2
Hytta har tretrapp.
Vurdering av avvik:
- Det mangler håndløper på vegg i trappeløpet.
Tiltak
- Håndløper må monteres på vegg for å tilfredsstille krav på byggetidspunktet.
- .
Våtrom
1. Etasje > Bad/vaskerom
Overflater vegger og himling,TG2
Veggene har overflater av fliser. I taket er det malte slette plater.
Vurdering av avvik:
- Det er vindu/dør med ikke fuktbestandige materialer i våtsonen (ved vask, dusj, badekar, osv.), løsningen eller byggematerialet er uegnet.
Tiltak
- Dersom det ikke gjøres tiltak, kan dette medføre oppfukting, oppsvelling og forringelse av materialer over tid og fuktskader på tilstøtende konstruksjoner.
- .
1. Etasje > Bad/vaskerom
Sanitærutstyr og innredning,TG2
Rommet har innredning med nedfelt servant, toalett, dusjvegger/hjørne og opplegg for vaskemaskin.
Vurdering av avvik:
- Det er avvik:
- Dusjdøren tar i gulvet.
Tiltak
- Tiltak:
- Justere døren.
1. Etasje > Bad/vaskerom
Ventilasjon,TG2
Det er naturlig ventilering.
Vurdering av avvik:
- Rommet har kun naturlig ventilasjon.
- Våtrommet mangler tilluftsventilering, f.eks. spalte/ventil ved dør.
Tiltak
- Dårlig ventilasjon på et våtrom kan føre til alvorlige konsekvenser som fuktskader og muggvekst.
- .
1. Etasje > Bad
Overflater vegger og himling,TG2
Veggene har overflater av fliser. I taket er det malte slette plater.
Vurdering av avvik:
- Det er vindu/dør med ikke fuktbestandige materialer i våtsonen (ved vask, dusj, badekar, osv.), løsningen eller byggematerialet er uegnet.
Tiltak
- Dersom det ikke gjøres tiltak, kan dette medføre oppfukting, oppsvelling og forringelse av materialer over tid og fuktskader på tilstøtende konstruksjoner.
- .
1. Etasje > Bad
Ventilasjon,TG2
Det er naturlig ventilering.
Vurdering av avvik:
- Rommet har kun naturlig ventilasjon.
- Våtrommet mangler tilluftsventilering, f.eks. spalte/ventil ved dør.
Tiltak
- Elektrisk avtrekksvifte bør monteres for å lukke avviket.
- Over tid kan manglende tilluftsventilering resultere i mugg- og soppdannelse, spesielt på steder som ikke får god nok luftgjennomstrømning.
- .
Tekniske installasjoner
Elektrisk anlegg,TG2
Det elektriske anlegget har automatsikringer. Sikringsskapet er plassert i gangen.
21.Foreligger det eltilsynsrapport de siste 5 år, og det er ikke foretatt arbeid på anlegget etter denne, utenom retting av eventuelle avvik i eltilsynsrapport (dvs en el-tilsynsrapport uten avvik)?
Nei
Kommentar:
1.Når ble det elektriske anlegget installert eller sist gang totalt rehabilitert (årstall)? Med totalt rehabilitert menes fullstendig utskiftet anlegg fra inntakssikring og videre.
Kommentar:Byggeår.
2.Er alle elektriske arbeider/anlegg i boligen utført av en registrert elektroinstallasjonsvirksomhet?
Ja
Kommentar:
3.Er det elektriske anlegget utført eller er det foretatt tilleggsarbeider på det elektriske anlegget etter 1.1.1999?
Ja
Kommentar:
5.Foreligger det kontrollrapport fra offentlig myndighet – Det Lokale Eltilsyn (DLE) eller eventuelt andre tilsvarende kontrollinstanser med avvik som ikke er utbedret eller kontrollen er over 5 år?
Nei
Kommentar:
6.Forekommer det ofte at sikringene løses ut?
Nei
Kommentar:
7.Har det vært brann, branntilløp eller varmgang (for eksempel termiske skader på deksler, kontaktpunkter eller lignende) i boligens elektriske anlegg?
Nei
Kommentar:
8.Er det tegn til at det har vært termiske skader (tegn på varmgang) på kabler, brytere, downlights, stikkontakter og elektrisk utstyr? Sjekk samtidig tilstanden på elektrisk tilkobling av varmtvannsbereder, jamfør eget punkt under varmtvannstank
Nei
Kommentar:
10.Er der synlig defekter på kabler eller er disse ikke tilstrekkelig festet?
Nei
Kommentar:
14.Er det tegn på at kabelinnføringer og hull i inntak og sikringsskap ikke er tette, så langt dette er mulig å sjekke uten å fjerne kapslinger?
Nei
Kommentar:
15.Finnes det kursfortegnelse, og er den i samsvar med antall sikringer?
Ja
Kommentar:
16.Foreta en helhetsvurdering av det elektriske anlegget, dets alder, allmenne tilstand og fare for liv og helse. Bør det elektriske anlegget ha en utvidet el-kontroll?
Ja
Kommentar:
Fritidsbolig
Byggetegninger, brannceller og krav for rom til varig opphold
Det foreligger godkjente og byggemeldte tegninger, som stemmer med dagens bruk
Tegninger framvist på befaring.
Er det påvist synlige tegn på avvik i branncelleinndeling ut ifra dagens byggteknisk forskrift? Nei
Er det ifølge eier utført håndverkstjenester på boligen siste 5 år? Nei
Er det påvist avvik i forhold til rømningsvei, dagslysflate eller takhøyde? Nei
Garasje
Byggetegninger, brannceller og krav for rom til varig opphold
Det foreligger ikke tegninger
Er det påvist synlige tegn på avvik i branncelleinndeling ut ifra dagens byggteknisk forskrift? Nei
Er det ifølge eier utført håndverkstjenester på boligen siste 5 år? Nei
Er det påvist avvik i forhold til rømningsvei, dagslysflate eller takhøyde? Nei
Utestue
Byggetegninger, brannceller og krav for rom til varig opphold
Det foreligger ikke tegninger
Er det påvist synlige tegn på avvik i branncelleinndeling ut ifra dagens byggteknisk forskrift? Nei
Er det ifølge eier utført håndverkstjenester på boligen siste 5 år? Nei
Er det påvist avvik i forhold til rømningsvei, dagslysflate eller takhøyde? Nei
Fritidsbolig
Garasje
Standard :
Normal standard på bygget ut ifra alder/konstruksjon.
Vedlikehold :
Bygget er jevnlig vedlikeholdt.
Utestue
Standard :
Normal standard på bygget ut ifra alder/konstruksjon.
Vedlikehold :
Bygget er jevnlig vedlikeholdt.
Sammendrag av selgers egenerklæring :
Elektrisitet :
10. Er det utført arbeid på det elektriske anlegget?
Ja. Utført i 2020 av ufaglært / egeninnsats. Lagt inn nye sikringer til boblebad. Faglært vennetjeneste
15.Finnes det kursfortegnelse, og er den i samsvar med antall sikringer?
Ja. Men garasje og bu er oppført men har ikke samsvarserklæring.
Andre opplysninger :
31. Har ufaglærte utført arbeid som normalt bør utføres av faglærte? Du trenger ikke gjenta noe du allerede har nevnt
Ja. Boblebua er satt opp av Kjell Gunnar Sveinall, Birger Larsen og Byggmester Johan Svensen.

Standard

Hytten holder en høy standard med furugulv på alle gulv utenom vindfang og badene som har fliser med varmekabler. Panel på alle vegger utenom badene med Alloc-fliseplater. Kjøkkenet er innredet med hvit innredning som har integrerte hvitevarer. Peisovn. Stuen har varmepumpe og utgang til solrik terrasse. Hovedsoverommet har skyvedørsgarderobe. Badene er innredet med dusjhjørne, wc, servant med skuffer og skap over. I tillegg har det ene badet opplegg for vaskemaskin og tørketrommel. Alle soverommene er i dag innredet med dobbeltsenger. Det er til sammen 16 sengeplasser i hytta i dag. Så er det en stor isolert garasje med automatisk åpner, og en bod med engen inngang på siden. Flott opparbeidet hage og en utestue som har montert boblebad.

Løsøre og tilbehør

Vi viser til liste fra Norges Eiendomsmeglerforbund som gjelder fra 01.01.2020 angående løsøre og tilbehør.

Oppvarming

Varmepumpe i stue, peisovn mellom stue og kjøkken, varmekabler i vindfang og på badene.

Ferdigattest/brukstillatelse

Det foreligger ferdigattest på fritidseiendommen og garasje datert 16.11.2016. Denne kan fås ved henvendelse til megler.
Ferdigattesten omfatter ikke oppføring av utestue. Det foreligger ikke godkjente søknader på utestuen hos kommunen. Det gjøres oppmerksom på at utestuen er søknadspliktig, og selger har ikke søkt om eller fått godkjenning til å etablere denne. Utestuen er derfor ikke godkjent til varig opphold og kjøper tar risiko for eventuelle kostnader eller endringer vedr dette.

Eventuell adgang til utleie

Fritidseiendommen har ikke separat utleiedel. Det vil normalt være anledning til utleie av hele eiendommen eller enkeltrom, såfremt utleiearealet er bygningsmessig godkjent for varig opphold.

Diverse

Kan selges med møbler etter egen avtale.
Tilbud av produkter og tjenester fra våre samarbeidspartnere
VI er opptatt av verdiskapning, og har knyttet til oss samarbeidspartnere som skal sikre våre kunder de beste produkter og tjenester;
• Gjensidige leverer boligselgerforsikring og tilbyr bygningsforsikring
• Boligkjøperforsikring leveres av Hiscox og med Sedgwick som skadebehandler, og er formidlet gjennom Gjensidige.
• BN bank tilbyr finansieringsløsninger
• Vår avdeling Krogsveen Pluss tilbyr flyttetjenester som utvask, visningsvask, lager, tømming og transport av flyttelass, i tillegg til å formidle kontakt med Flip for overflateoppussing.
• I forbindelse med overtagelse av eiendommen tilbyr Overo avtale om strøm, alarm og bredbånd.
• Krogsveen er, sammen med øvrige bransjeaktører, medeier i den digitale annonseringsplattformen Hjem.

Beliggenhet og tomteforhold

Beliggenhet

Hytten har solrik og høytliggende beliggenhet i et svært attraktivt område ved Brokke i Setesdal, ca. 570 meter over havet. Rundt 2 timers kjøring fra Sørlandskysten. Området byr på gode turmuligheter og fint turterreng i fjellene, året rundt. Skiløyper og alpinbakke i umiddelbar nærhet med oppkjørte skiløyper og urørt terreng. Alpinbakken på Brokke er blant Sørlandets flotteste med flere nedfarter og snowboard-park. I tillegg til preparerte løyper og muligheter for frikjøring, er det også et barnetrekk med løyper for de aller minste. Toppturer, merkede turløyper, sykkelstier, bade-, jakt- og fiskemuligheter på sommerstid. Klatremuligheter ved Løefjell og Via ferrata i området. Ved skisenteret finner du også flott asfaltert rulleskiløype. Det er også en fresbee golf og minigolf løype. Det vil komme et sentrumsbygg som vil inneholde blant annet kafe, bistro og ubetjent dagligvarebutikk.
Romslig og høytliggende tomt i etablert og flott hyttefelt. Tomten er godt utnyttet og flott opparbeidet med asfaltert innkjørsel og gårdstun, stor garasje med bod. Stor gressplen, hagestue med innvendig boblebad, solrik veranda.

Adkomst

Ta av riksveien mot Brokke på Suleskarvegen. Kjør helt opp bakken og ta første vei til høyre ved skilt til "Løefjellvegen", ta så første vei til venstre igjen. Hytte nr 2 ved din høyre side er da Løefjellstigen 4.

Beskrivelse av tomt

Eiertomt på 820 kvm. Romslig og flott beliggende tomt, pent opparbeidet med asfaltert innkjørsel, garasje og bod. Overbygd inngangsparti og bod med støpt betong. Stor flott hage og gressplen, terrasse og utestue. Høytliggende i hyttefeltet med flott utsikt mot fjell og natur. Gode solforhold.

Parkering

Garasje med automatisk åpner. God plass i oppkjørsel til flere biler.

Vei, vann og avløp

Eiendommen har adkomst via privat vei med felles vedlikeholdsansvar.
Privat vann og avløp.

Regulerings-og arealplaner

Eiendommen er regulert til fritidsbebyggelse i henhold til reguleringsplan for Løefjødd hyttegrend datert 30.03.2005.
Utsnitt av plan med tilhørende bestemmelser kan fås ved henvendelse til megler.

Økonomi

Kommunale utgifter

Kommunale avgifter er kr 2 893 ,- for 2024. I dette inngår gebyr for feiing og hytterenovasjon.
Kommunen oppgir prognose på kommunale avgifter for 2025 på kr 3 199 ,-
Nåværende eier har et strømforbruk som tilsvarer ca. kr 13 141,- pr. år. / 6 603 kwh. pr. år. 
Boligen har en årlig forsikringspremie på kr 5 615,- Fremtind .
Velavgift er kr 500 pr. år.
Boligen er tilknyttet Altifiber Altibox som leverandør av fiber og har avgift på kr 349 pr. mnd. Tv-tuner/dekoder medfølger ikke.
Utgiftene er basert på nåværende eiers forbruk og avtaler.

Formuesverdi

Formuesverdi for 2023 var kr 900 000 ,- ifølge selger/skatteetaten.

Eiendomsskatt

Det er p.t ikke vedtatt eiendomsskatt for eiendommer i kommunen.

Omkostninger

4 190 000,00 Prisantydning
Omkostninger
--------------------------------------------------------
106 012 Omkostninger totalt
--------------------------------------------------------
4 296 012,00 Totalpris inkl. omkostninger
--------------------------------------------------------
 

Betalingsbetingelser

Kjøpesum inkludert omkostninger, samt pantedokument tilknyttet eventuelt lån, skal være disponibelt hos megler 2 virkedager før overtagelsen.

Annen viktig informasjon

Eier

Ruth-Elin Bergum

Overtakelse

Etter nærmere avtale.

Velforening

Løefjødd velforening

Boligselgerforsikring

Selger har i forbindelse med salget tegnet boligselgerforsikring levert av Gjensidige.  
Boligselgerforsikringen dekker selgers ansvar etter avhendingsloven begrenset oppad til kr 14 millioner. Dersom kjøper oppdager forhold ved eiendommen som hen mener utgjør en mangel ved eiendommen, vil Gjensidige behandle reklamasjonen på vegne av selger. Forsikringsvilkår kan fås ved henvendelse til megler.  
Vedlagt salgsoppgaven følger selgers egenerklæringsskjema og tilstandsrapport. Interessenter må sette seg inn i dokumentene før bud inngis. 

Boligkjøperforsikring

Innen kontraktsmøtet må kjøper ta stilling til om det ønskes å bestille Boligkjøperpakken gjennom Gjensidige. I denne gunstige pakken er boligen ferdig forsikret og inkluderer rettshjelpsforsikring, også kalt Boligkjøperforsikring. Rettshjelpsforsikring gir trygghet og tilgang på profesjonell juridisk hjelp dersom det oppdages uventede feil eller mangler det første året etter overtagelse. Forsikringsselskapet behandler i så fall ethvert mangelskrav kjøper måtte ha overfor selger. 
Boligkjøperpakken inkluderer bygningsforsikring for hus og hytte, innboforsikring, flytteforsikring og dobbel rentedekning - i situasjoner hvor kjøper ikke får solgt nåværende primærbolig.   
Kjøper mottar ingen særskilt faktura for Boligkjøperpakken da kostnaden det første året legges til kjøpesummen for boligen. Det gjøres oppmerksom på Krogsveen mottar et honorar for denne formidlingen.
Produktark for Boligkjøperpakken ligger vedlagt i salgsoppgaven.  
Dersom ikke boligkjøperpakke ønskes kan kun rettshjelpsforsikring, også kalt boligkjøperforsikring, tegnes særskilt via megler. Rettshjelpsforsikringen varer i 5 år fra overtagelse og leveres gjennom Gjensidige. Ta kontakt med megler for ytterligere informasjon. 
Selskap og privatpersoner som driver med kjøp/salg/utvikling som ledd i egen næringsvirksomhet kan ikke tegne boligkjøperpakke eller rettshjelpsforsikring. 

Budgivning

Forbrukerinformasjon om budgivning er vedlagt denne salgsoppgaven og er også på vår hjemmeside Krogsveen.no. Alle bud og budforhøyelser må inngis skriftlig. I tillegg må legitimasjon være fremlagt sammen med signatur fra budgiver.
Vi oppfordrer til å gi bud elektronisk via GI BUD-knappen på eiendommens hjemmeside på Krogsveen.no. Da vil samtlige vilkår bli oppfylt.  
Eventuelle forhøyelser eller endringer av budet kan bekreftes pr SMS eller på e-post. Vi oppfordrer alltid til å kontakte megler pr. telefon i tillegg da forsinkelser i SMS og e-post kan forekomme.
For at budene skal kunne bli behandlet og videreformidlet skriftlig til alle involverte parter, må alle bud ha en tilstrekkelig lang akseptfrist, jf. eiendomsmeglingsforskriften § 6-3.
Selger må også skriftlig akseptere budet før aksept kan formidles til budgiver. Akseptfrist bør derfor være på minimum 30 minutter, og budforhøyelser må derfor skje i god tid før fristens utløp.
Bud i forbrukerforhold kan uansett ikke settes med kortere frist enn kl. 12.00 første virkedag etter siste annonserte visning. I tillegg kan ikke budet ha forbehold om at det skal holdes hemmelig ovenfor øvrige interessenter. Megler har iht lov om eiendomsmegling ikke anledning til å videreformidle disse budene, og de vil dermed heller ikke bli journalført.
Etter at eiendommen er solgt vil kjøper og selger få tilsendt budjournal. Øvrige budgivere kan få utlevert kopi av budjournalen i anonymisert form.

Hvitvaskingsreglene

I henhold til lov om hvitvasking og terrorfinansiering har megler plikt til å gjennomføre kontrolltiltak overfor kunder, herunder fullmektiger. Dette innebærer bl.a. å bekrefte kunders og reelle rettighetshaveres identitet på bakgrunn av fremvist gyldig legitimasjon eller på annen godkjent måte, samt å innhente opplysninger om kundeforholdets formål og tilsiktede art.
Dersom slike kundetiltak ikke kan gjennomføres, kan megler ikke etablere kundeforholdet eller utføre transaksjonen.
Hvis kjøper ikke bidrar til gjennomføring av kundekontrollen og dette fører til at transaksjonen blir forsinket eller ikke kan gjennomføres, vil dette ansees som mislighold av avtalen og gi selger rettigheter etter avhendingslova kapittel 5. I tilfeller der selger ikke bidrar til gjennomføring av løpende kundekontroll underveis i oppdraget, er det selger som misligholder sine forpliktelser etter avtalen og gi kjøper rettigheter etter avhendingslovens kapittel 4. Partene er selv ansvarlige for eventuelle kostnader og ansvar dette kan medføre. Eiendomsmegleren eller eiendomsmeglingsforetaket kan ikke holdes ansvarlig for de konsekvenser dette vil kunne få for partene eller andre som har interesser i eiendomshandelen.
Kjøper oppfordres til å innbetale kjøpesummen som ikke kommer fra låneinstitusjon i én samlet innbetaling fra egen konto i norsk bank. Megler har plikt til å melde fra til Økokrim om eiendomshandler som fremstår som mistenkelige. Melding sendes Økokrim uten at partene varsles. 

Personopplysningsloven

I henhold til personopplysningsloven gjør vi oppmerksom på at interessenter kan bli registrert for videre oppfølging.

Lovanvendelse

Generelle bestemmelser
Salgsoppgaven er basert på de opplysningene selger har gitt til megler, den bygningssakyndiges tilstandsrapport, samt opplysninger innhentet fra kommunen, Kartverket og andre tilgjengelige kilder. Det er viktig at kjøper setter seg grundig inn i alle salgsdokumentene, herunder salgsoppgave, tilstandsrapport og selgers egenerklæring. Kjøper anses kjent med forhold som er tydelig beskrevet i salgsdokumentene, og slike forhold kan ikke påberopes som mangler. Dette gjelder uavhengig av om kjøper har lest dokumentene. Alle interessenter oppfordres til å undersøke eiendommen nøye, gjerne sammen med fagkyndig før bud inngis. Kjøper som velger å kjøpe usett kan ikke gjøre gjeldende som mangel noe han burde blitt kjent med ved undersøkelsen. 
Dersom det er behov for avklaringer, anbefaler vi at interessenter rådfører seg med eiendomsmegler eller egne rådgivere før det legges inn bud.
En bolig som har blitt brukt i en viss tid, har vanligvis blitt utsatt for slitasje og skader kan ha oppstått. Slik bruksslitasje må kjøper regne med, og det kan avdekkes enkelte forhold etter overtakelse som nødvendiggjør utbedringer. Normal slitasje og skader som nødvendiggjør utbedring, er innenfor hva kjøper må forvente og vil ikke utgjøre en mangel.
Kjøper og selgers rettigheter og plikter reguleres av avtalen mellom partene, samt informasjonen som har vært tilgjengelig for kjøperen i forbindelse med handelen. Avtalen utfylles av avhendingsloven, og det gjelder ulike avtalevilkår avhengig av om kjøper er forbrukerkjøper eller ikke.  Dette er nærmere beskrevet nedenfor. 
På grunn av ulike avtalevilkår kan selger vurdere bud fra en som ikke er forbruker, ulikt fra en forbrukers bud. Dersom kjøper ikke er forbruker, er selger sitt mulige mangelsansvar begrenset fordi eiendommen selges "som den er".  Selger kan ikke ta «som den er»- forbehold overfor en forbrukerkjøper. Selv et lavere bud fra en som ikke er forbruker kan foretrekkes fordi begrensningen i mulig mangelsansvar kan ha egenverdi for selger. Selger står fritt til å forkaste eller akseptere ethvert bud, og er for eksempel ikke forpliktet til å akseptere høyeste bud.
Budgiver skal i budskjema avgi egenerklæring om budgiver er forbruker eller næringsdrivende/ person som hovedsakelig handler som ledd i næringsvirksomhet. Budgivere får informasjon dersom andre bud er inngitt av en som ikke er forbruker. 
Forbrukerkjøp - definisjon
Med forbrukerkjøp menes kjøp av eiendom når kjøperen er en fysisk person som ikke hovedsakelig handler som ledd i næringsvirksomhet.
Forbruker – avtalevilkår
Eiendommen har en mangel dersom den ikke er i samsvar med kravene som følger av avtalen, eller det foreligger brudd på bestemmelsene i avhendingsloven §§ 3-2 til 3-8. Hvis eiendommen ikke er i samsvar med det kjøperen må kunne forvente ut ifra alder, type og synlig tilstand, kan det være grunnlag for mangelskrav. Det samme gjelder hvis det er holdt tilbake eller gitt uriktige opplysninger om eiendommen. Dette gjelder likevel bare dersom man kan gå ut ifra at det virket inn på avtalen at opplysningen ikke ble gitt eller at mangelskravet ikke blir rettet i tide på en tydelig måte.
Boligen kan ha en mangel etter avhendingsloven § 3-3 andre ledd, dersom det er avvik mellom opplyst og faktisk innvendig areal, forutsatt at avviket er på 2% eller mer og minimum 1 kvm.
Ved beregning av et eventuelt prisavslag eller erstatning må kjøper selv dekke tap/kostnader opptil et beløp på kr 10 000 (egenandel).
Ikke-forbruker (næringsdrivende) – definisjon 
Hvis kjøper er en juridisk person, eller en fysisk person som hovedsakelig handler som ledd i næringsvirksomhet, vil kjøpet ikke anses som et forbrukerkjøp. 
Ikke-forbruker – avtalevilkår
Eiendommen har en mangel dersom den ikke er i samsvar med kravene som følger av avtalen.
Eiendommen selges «som den er», og selgers ansvar utover det konkret avtalte er da begrenset etter avhendingsloven § 3-9, første ledd andre setning. 
Avhendingsloven § 3-3 andre ledd fravikes, og hvorvidt boligens arealsvikt utgjør en mangel vurderes etter avhendingsloven § 3-8. 
Informasjon om kjøpers undersøkelsesplikt, herunder oppfordringen om å undersøke eiendommen nøye, gjelder også for kjøpere som ikke anses som forbrukere.
Det forutsettes at hjemmel overføres til kjøper. Hvis kjøper ikke ønsker hjemmelsoverføring av eiendommen, må det tas forbehold om dette i budet.

Opplysninger om oppdraget

Oppdragsnummer 32-0045/25
Eiendomsmegler Krogsveen AS, avd. Hovden
Setesdalsvegen 4275, 4755, HOVDEN I SETESDAL
950 007 613
Oppdragets KR-kode KR32.2545

Dato

Sist oppdatert: 30. september 2025 kl. 13:52

Dokumenter

Utskriftsvennlig salgsoppgave

Område

Legg til steder som er viktige for deg

Prisutvikling for området

Kvadratmeterpris
0 kr/m²
Endring
↘︎ % ()

Visning

For å delta på visning, ber vi om at du melder deg på. Da sikrer vi at du får nødvendig informasjon og at det er satt av tilstrekkelig med tid. Kontakt megler dersom annet tidspunkt ønskes. Husk å lese salgsoppgaven før visningen, så du stiller forberedt. NB. Visning utgår dersom det ikke er noen påmeldte innenkl. 14.00 dagen før visning..
Ønsker du kun å bli holdt orientert, kan du fra eiendommens hjemmeside få varsel om solgtpris, eller kontakte megler på 96886900..
Lurer du på noe?

Vil du varsles om lignende boliger?

Ved å lagre ditt boligsøk hos oss får du beskjed når vi har en bolig som ligner denne, før den legges ut på markedet!

På flyttefot? Slik gjør vi det enklere for deg

Skreddersydd flyttepakke

Vi fikser håndverkere, vask, pakking, lagring og transport, og legger ut for utgiftene underveis.

Hjelp med både kjøp og salg

Hos oss har du din egen rådgiver gjennom hele kjøps- og salgsprosessen.

Hjelp til finansiering

Vårt samarbeid med BN Bank sikrer deg rask og løsningsorientert hjelp, til konkurransedyktige betingelser.