Solgt

Kongsveien 85

9 500 000 kr
91 m²
2 soverom
Velkommen til Kongsveien 85 og denne unike og pene toppleiligheten midt på Holtet. Presentert av Christoffer S. Akerjordet og Krogsveen Nordstrand
Velkommen til Kongsveien 85 og denne unike og pene toppleiligheten midt på Holtet. Presentert av Christoffer S. Akerjordet og Krogsveen Nordstrand
Kart
Del
Holtet/Bekkelaget
Rålekker nyere (2016) toppleilighet på Holtet| Heis| Garasje m/lader| Peis| Påkostet standard| 2 Bad | Solrik balkong|

Unngå doble boligrenter

Vi tilbyr gunstig forsikring.
Sjekk estimert lånekostnad

    Pris

  • Prisantydning
    9 500 000 kr
  • Omkostninger
    248 540 kr
  • Totalpris
    9 748 540 kr

    Areal

  • BRUKSAREAL
    99 m²
  • BRA-I (internt bruksareal)
    91 m²
  • BRA-E (eksternt bruksareal)
    8 m²
  • TBA (terrasse-balkongareal)
    7 m²

    Nøkkelinfo

  • Etasje
    4
  • Byggeår
    2016
  • Soverom
    2 soverom
  • Bad
    2 bad
  • Type
    Eierleilighet
  • Eierform
    Eierseksjon
  • Fellesutgifter
    5 080 kr

På flyttefot? Tenk kjøp og salg samtidig.

Få din egen rådgiver gjennom hele kjøps- og salgsprosessen. Det starter med en verdivurdering.

Beskrivelse

Kort om eiendommen

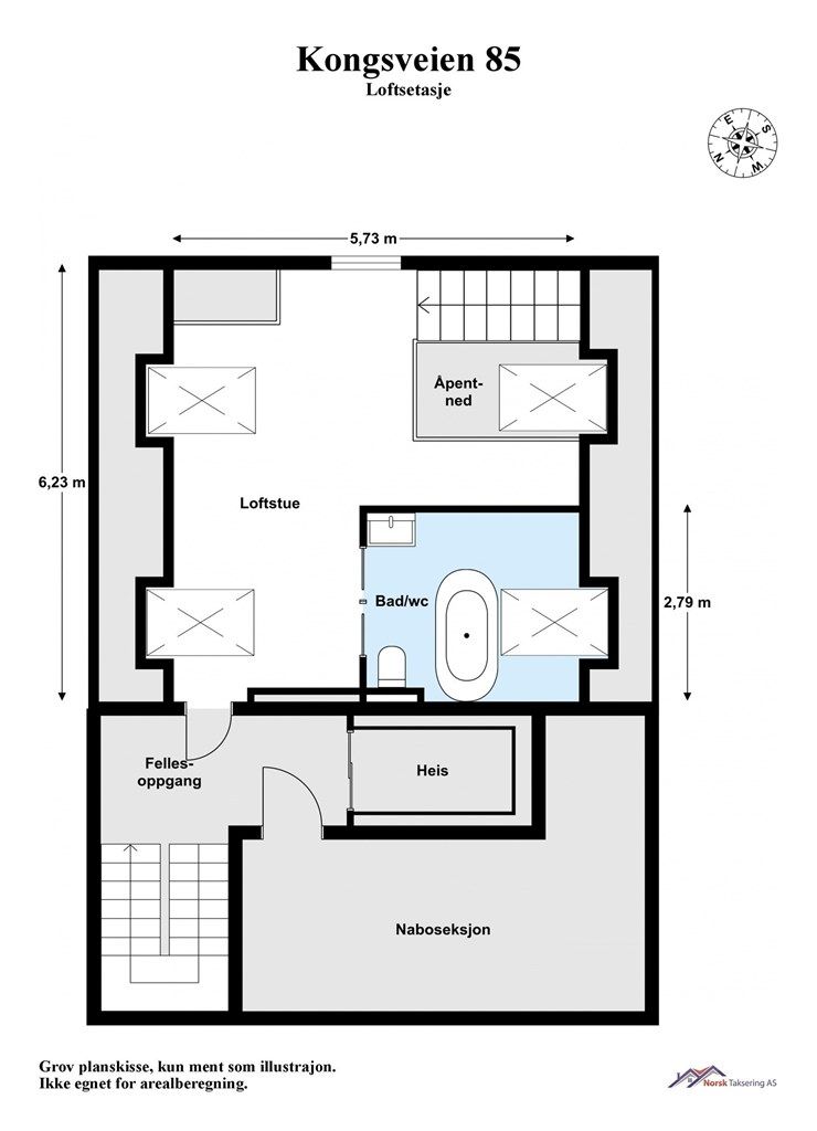
Velkommen til Kongsveien 85! En rålekker og påkostet toppleilighet fra 2016, sentralt på Holtet. Leiligheten går over to plan og har høy standard, heis og garasjeplass med elbillader. Området byr på umiddelbar nærhet til trikk, butikker og servicetilbud, samt kort vei til skoler og barnehager. Dette er en ideell bolig for deg som ønsker en moderne og bekvem hverdag!
Boligen har en fin planløsning med gulvareal på 99 kvm med en lys, åpen stue- og kjøkkenløsning med utgang til en sydvestvendt balkong. Moderne Sigdalkjøkken med integrerte hvitevarer og kjøkkenøy. Videre er det to soverom, to delikate bad og en luftig loftstue. En stemningsfull peis, balansert ventilasjon og god lagringsplass gjør dette til en komplett og attraktiv bolig.
Velkommen til visning!

Område

Legg til steder som er viktige for deg

Prisutvikling for området

Kvadratmeterpris
0 kr/m²
Endring
↘︎ % ()

På flyttefot? Tenk kjøp og salg samtidig.

Få din egen rådgiver gjennom hele kjøps- og salgsprosessen. Det starter med en verdivurdering.

Vil du varsles om lignende boliger?

Ved å lagre ditt boligsøk hos oss får du beskjed når vi har en bolig som ligner denne, før den legges ut på markedet!

På flyttefot? Slik gjør vi det enklere for deg

Skreddersydd flyttepakke

Vi fikser håndverkere, vask, pakking, lagring og transport, og legger ut for utgiftene underveis.

Hjelp med både kjøp og salg

Hos oss har du din egen rådgiver gjennom hele kjøps- og salgsprosessen.

Hjelp til finansiering

Vårt samarbeid med BN Bank sikrer deg rask og løsningsorientert hjelp, til konkurransedyktige betingelser.