Solgt

Vestlundveien 24B

3 750 000 kr
54 m²
1 soverom
Stuen har spotter i tak og store vindusflater som gir godt med lysinslipp. Kalkmalingen på veggen skaper en behagelig atmosfære.
Stuen har spotter i tak og store vindusflater som gir godt med lysinslipp. Kalkmalingen på veggen skaper en behagelig atmosfære.
Kart
Del
Thomas Hauge
Presenteres av
Thomas Hauge
Selveier | Nydelig 2-roms hjørneleilighet med 9kvm balkong | Fast garasjeplass | Nyere bolig fra 2018 | Heis i bygg

Unngå doble boligrenter

Vi tilbyr gunstig forsikring.
Sjekk estimert lånekostnad

    Pris

  • Prisantydning
    3 750 000 kr
  • Omkostninger
    104 790 kr
  • Totalpris
    3 854 790 kr

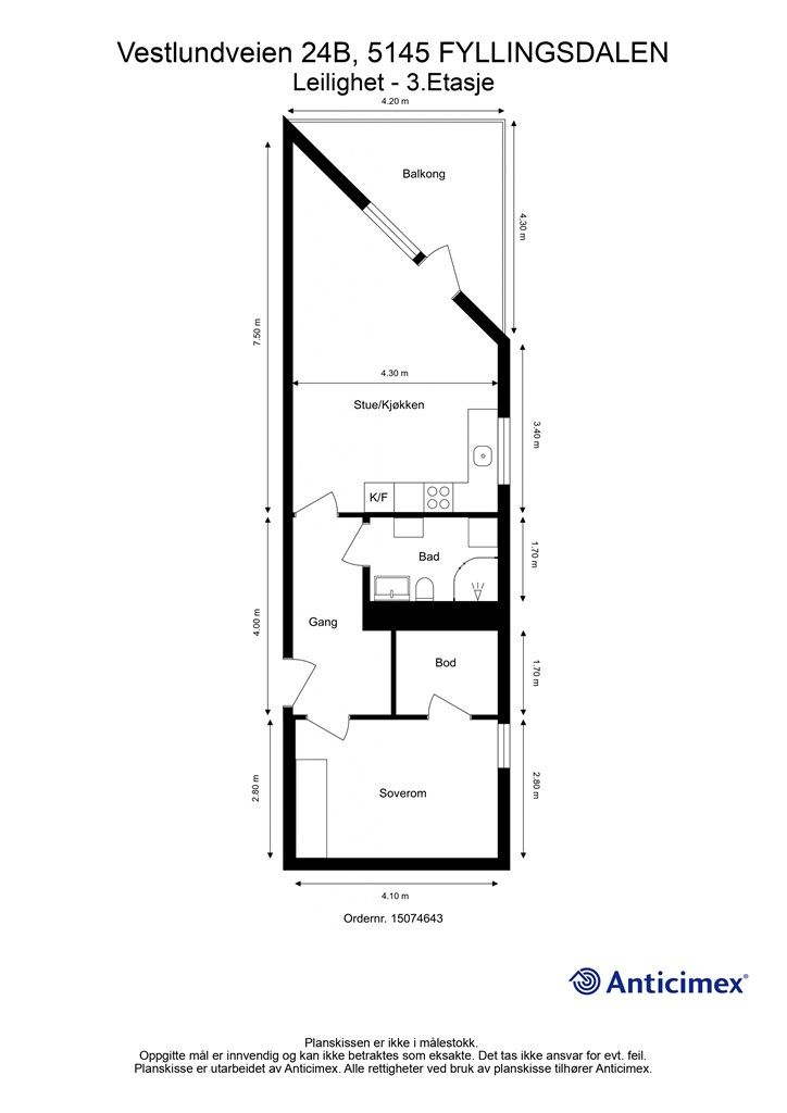
    Areal

  • BRUKSAREAL
    59 m²
  • BRA-I (internt bruksareal)
    54 m²
  • BRA-E (eksternt bruksareal)
    5 m²
  • TBA (terrasse-balkongareal)
    9 m²

    Nøkkelinfo

  • Etasje
    3
  • Byggeår
    2018
  • Soverom
    1 soverom
  • Bad
    1 bad
  • Type
    Eierleilighet
  • Eierform
    Eierseksjon
  • Fasiliteter
    Garasje/P-plass, Heis og Balkong/Terrasse
  • Fellesutgifter
    2 680 kr
  • Energimerke
    Rød B

På flyttefot? Tenk kjøp og salg samtidig.

Få din egen rådgiver gjennom hele kjøps- og salgsprosessen. Det starter med en verdivurdering.

Beskrivelse

Kort om eiendommen

Velkommen til Vestlundveien 24B! Leiligheten har en meget god planløsning, og luftig takhøyde. Åpen stue/kjøkkenløsning med et moderne og stilrent kjøkken. Leiligheten har selvfølgelig et flott helfliset bad, et romslig soverom, samt en fin balkong. Boligen er svært energieffektiv og har lave bokostnader. Når man i tillegg kan parkere i felles garasjeanlegg og ta heis opp, så gir det en ekstra luksus i hverdagen! Høydepunkter:
  • Fast garasjeplass med elbillader installert.
  • Plassering i byggets 3. etasje med en balkong vendt mot grøntarealer og lite innsyn fra omkringliggende bebyggelse.
  • Moderne, stilrene kvaliteter.
  • Heis.
  • Bod i leilighet og i garasjeanlegg.
  • Balkong på hele 9 kvm.
  • Attraktivt og flott nabolag. Husk påmelding til visning!
  • Område

    Legg til steder som er viktige for deg

    Prisutvikling for området

    Kvadratmeterpris
    0 kr/m²
    Endring
    ↘︎ % ()

    På flyttefot? Tenk kjøp og salg samtidig.

    Få din egen rådgiver gjennom hele kjøps- og salgsprosessen. Det starter med en verdivurdering.

    Vil du varsles om lignende boliger?

    Ved å lagre ditt boligsøk hos oss får du beskjed når vi har en bolig som ligner denne, før den legges ut på markedet!

    På flyttefot? Slik gjør vi det enklere for deg

    Skreddersydd flyttepakke

    Vi fikser håndverkere, vask, pakking, lagring og transport, og legger ut for utgiftene underveis.

    Hjelp med både kjøp og salg

    Hos oss har du din egen rådgiver gjennom hele kjøps- og salgsprosessen.

    Hjelp til finansiering

    Vårt samarbeid med BN Bank sikrer deg rask og løsningsorientert hjelp, til konkurransedyktige betingelser.