Solgt

Steinhammerveien 22B

11 950 000 kr
164 m²
3 soverom
Velkommen til Steinhammerveien 22B!
Velkommen til Steinhammerveien 22B!
Kart
Del
Jørgen Hartmark
Presenteres av
Jørgen Hartmark
Nordstrand / Holtet
Innholdsrik Atriumhus m/ god planløsning på Holtet |Takhøyde | Stor, vestvendt terrasse på 42 kvm | Peis og garasjeplass

Unngå doble boligrenter

Vi tilbyr gunstig forsikring.
Sjekk estimert lånekostnad

    Pris

  • Prisantydning
    11 950 000 kr
  • Omkostninger
    319 740 kr
  • Totalpris
    12 269 740 kr

    Areal

  • BRUKSAREAL
    177 m²
  • BRA-I (internt bruksareal)
    164 m²
  • BRA-E (eksternt bruksareal)
    13 m²
  • TBA (terrasse-balkongareal)
    42 m²

    Nøkkelinfo

  • Byggeår
    1975
  • Soverom
    3 soverom
  • Bad
    2 bad
  • Tomteareal
    262 m² (eiet)
  • Type
    Atriumhus
  • Eierform
    Eiet
  • Energimerke
    Oransje F

På flyttefot? Tenk kjøp og salg samtidig.

Få din egen rådgiver gjennom hele kjøps- og salgsprosessen. Det starter med en verdivurdering.

Beskrivelse

Kort om eiendommen

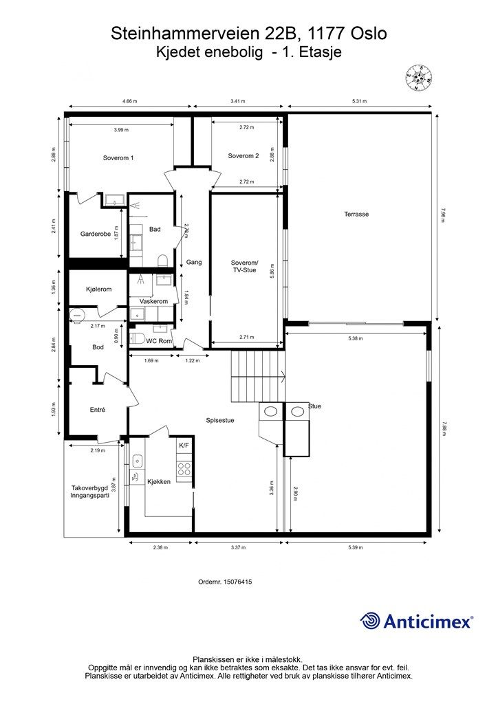
Velkommen til Steinhammerveien 22B! En innholdsrik og velholdt kjedet enebolig over to halvplan i et attraktivt og familievennlig boligområde på Holtet. Området byr på nærhet til både byliv og marka, med kort vei til skoler, barnehager, offentlig transport og servicetilbud.
Boligen har en spennende planløsning med en romslig stue på eget halvplan, komplett med peis og en nyere varmepumpe. Meget god takhøyde gir en god romfølelse. Fra stuen er det utgang til en luftig, solrik, vestvendt terrasse med sjøglimt. Videre inneholder boligen en hyggelig spisestue, to soverom, en romslig TV-stue, et moderne bad fra 2010, separat vaskerom og WC-rom. Det er også rikelig med lagringsplass i bod, kjølerom og en garasjeplass i felles anlegg. Hagedelen ble i sommer oppgradert.
Velkommen til visning!

Område

Legg til steder som er viktige for deg

Prisutvikling for området

Kvadratmeterpris
0 kr/m²
Endring
↘︎ % ()

På flyttefot? Tenk kjøp og salg samtidig.

Få din egen rådgiver gjennom hele kjøps- og salgsprosessen. Det starter med en verdivurdering.

Vil du varsles om lignende boliger?

Ved å lagre ditt boligsøk hos oss får du beskjed når vi har en bolig som ligner denne, før den legges ut på markedet!

På flyttefot? Slik gjør vi det enklere for deg

Skreddersydd flyttepakke

Vi fikser håndverkere, vask, pakking, lagring og transport, og legger ut for utgiftene underveis.

Hjelp med både kjøp og salg

Hos oss har du din egen rådgiver gjennom hele kjøps- og salgsprosessen.

Hjelp til finansiering

Vårt samarbeid med BN Bank sikrer deg rask og løsningsorientert hjelp, til konkurransedyktige betingelser.