Solgt

Brannfjellveien 96E

10 500 000 kr
124 m²
3 soverom
Velkommen til Brannfjellveien 96 E.
Velkommen til Brannfjellveien 96 E.
Kart
Del
Eirik Norheim
Presenteres av
Eirik Norheim
Ekeberg/Brannfjell
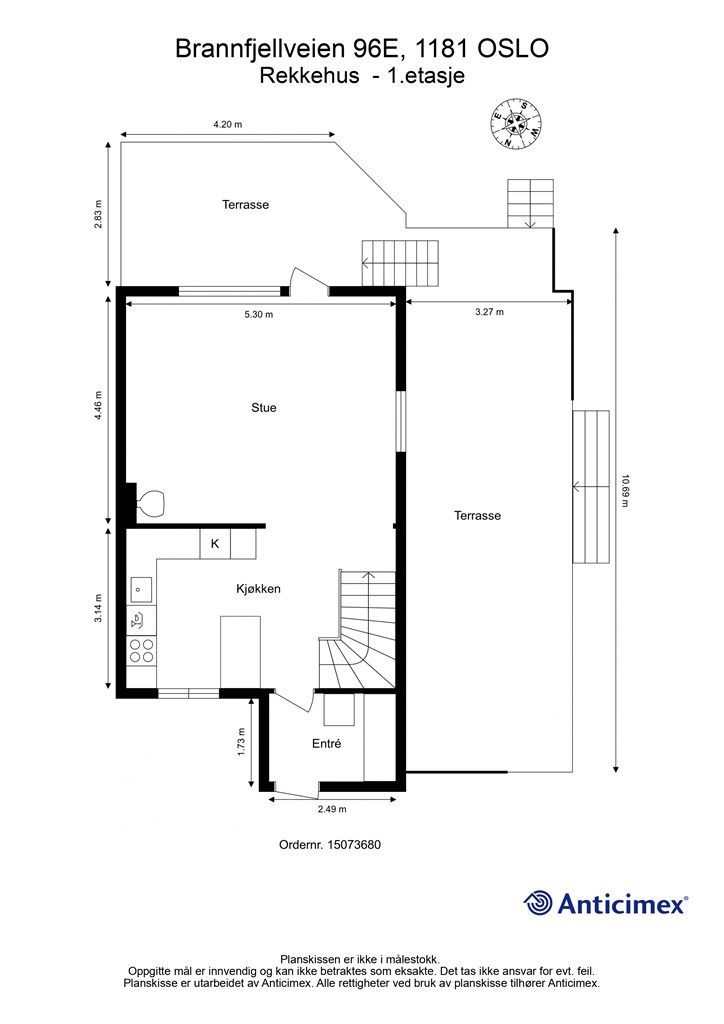
Familievennlig enderekkehus m/garasje, pen hage og 2 solrike terrasser. 2 bad og 3 soverom. Rolig, rett ved friområde!

Unngå doble boligrenter

Vi tilbyr gunstig forsikring.
Sjekk estimert lånekostnad

    Pris

  • Prisantydning
    10 500 000 kr
  • Andel fellesgjeld
    409 000 kr
  • Omkostninger
    24 688 kr
  • Totalpris
    10 933 688 kr

    Areal

  • BRUKSAREAL
    140 m²
  • BRA-I (internt bruksareal)
    124 m²
  • BRA-E (eksternt bruksareal)
    16 m²
  • TBA (terrasse-balkongareal)
    49 m²

    Nøkkelinfo

  • Byggeår
    1955
  • Soverom
    3 soverom
  • Bad
    2 bad
  • Type
    Rekkehus
  • Eierform
    Aksje
  • Fasiliteter
    Garasje/P-plass
  • Fellesutgifter
    5 500 kr
  • Energimerke
    Oransje G

På flyttefot? Tenk kjøp og salg samtidig.

Få din egen rådgiver gjennom hele kjøps- og salgsprosessen. Det starter med en verdivurdering.

Beskrivelse

Kort om eiendommen

Brannfjellveien 96E er et lyst og pent rekkehus; et flott familiehjem med god og innholdsrik planløsning over tre etasjer. Her får man to bad, to ildsteder, tre soverom på samme plan og et kjellerrom i bruk som ekstra stue. Boligen ligger i et attraktivt villaområde, i stille og rolige omgivelser med et flott friareal som nærmeste nabo. På få minutter går man til buss, T-bane, Ekeberg skole og gode servicetilbud. En garasje med elbillader følger med.
Stuen og kjøkkenet ligger i delvis åpen løsning, med utgang til en stor, pen og solrik hage med to store terrasser. Lyset strømmer inn i stuen, og kjøkkenet holder en god standard med barløsning, mye oppbevaring og alle hvitevarer integrert. Et av badene har badekar, og garderobeplassen er godt ivaretatt på soverommene. Ingen dokumentavgift!

Område

Legg til steder som er viktige for deg

Prisutvikling for området

Kvadratmeterpris
0 kr/m²
Endring
↘︎ % ()

På flyttefot? Tenk kjøp og salg samtidig.

Få din egen rådgiver gjennom hele kjøps- og salgsprosessen. Det starter med en verdivurdering.

Vil du varsles om lignende boliger?

Ved å lagre ditt boligsøk hos oss får du beskjed når vi har en bolig som ligner denne, før den legges ut på markedet!

På flyttefot? Slik gjør vi det enklere for deg

Skreddersydd flyttepakke

Vi fikser håndverkere, vask, pakking, lagring og transport, og legger ut for utgiftene underveis.

Hjelp med både kjøp og salg

Hos oss har du din egen rådgiver gjennom hele kjøps- og salgsprosessen.

Hjelp til finansiering

Vårt samarbeid med BN Bank sikrer deg rask og løsningsorientert hjelp, til konkurransedyktige betingelser.