Komplett salgsoppgave

Sitåsvegen 2 og 4

2 290 000 kr
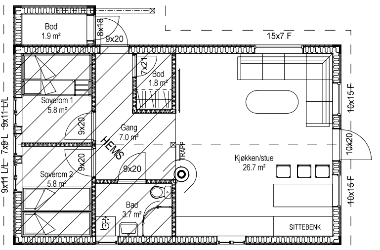
56 m²
2 soverom
Kart
Del
Brokke
Nye Arealeffektive hytter med flott beliggenhet under oppføring - 1 Solgt
Sjekk estimert lånekostnad

    Pris

  • Prisantydning
    2 290 000 kr
  • Omkostninger
    7 250 kr
  • Totalpris
    2 297 250 kr

    Areal

  • BRUKSAREAL
    56 m²
  • BRA-I (internt bruksareal)
    56 m²

    Nøkkelinfo

  • Etasje
    1
  • Byggeår
    2024
  • Soverom
    2 soverom
  • Bad
    1 bad
  • Type
    - Ukjent -
  • Eierform
    Eierseksjon

Interessert?

Dette prosjektet har ingen planlagte visninger, kontakt megler for mer informasjon eller meld din interesse så holder vi deg oppdatert om prosjektet.
Lurer du på noe?

Beskrivelse

Kort om enheten

Utbygger har utstrakt erfaring med å levere hyttedrømmen til familier på Brokke. Stor veranda som tilpasses til hver tomt. Kjøkkenet med innebygde hvitevarer. Flott peisovn plassert ved siden av kjøkkenet, slik at den kan sees fra både spiseplass og sofagruppe. Praktisk utvendig bod for oppbevaring av ski og utstyr. Hvitevarer kjøkken medfølger. Stor hems og 2 soverom. Bilder er et utdrag av tilsvarende hytter oppført på Sitåsen.

Innhold og byggemåte

Eiendommen

Sitåsvegen 2 og 4, 4748 RYSSTAD
Kommunenummer 4221, gårdsnummer 63, bruksnummer 354, ideell andel 1/1

Annen viktig informasjon

Eier

Arealeffektive Hytter AS

Meglers vederlag

Selgers/oppdragsgivers vederlag til megler er avtalt til:
Vederlag: 24 100,-
Oppgjør kr 5900
Markedspakke kr 19 000

Opplysninger om oppdraget

Oppdragsnummer 31-0061/24
Eiendomsmegler Krogsveen AS, avd. Kristiansand
Østre Strandgate 12, 4610, KRISTIANSAND S
950 007 613
Oppdragets KR-kode KR31.2461

Dato

Sist oppdatert: 08. desember 2025 kl. 21:04

Dokumenter

Utskriftsvennlig salgsoppgave

Område

Legg til steder som er viktige for deg

Prisutvikling for området

Kvadratmeterpris
0 kr/m²
Endring
↘︎ % ()

Interessert?

Dette prosjektet har ingen planlagte visninger, kontakt megler for mer informasjon eller meld din interesse så holder vi deg oppdatert om prosjektet.
Lurer du på noe?

På flyttefot? Slik gjør vi det enklere for deg

Skreddersydd flyttepakke

Vi fikser håndverkere, vask, pakking, lagring og transport, og legger ut for utgiftene underveis.

Hjelp med både kjøp og salg

Hos oss har du din egen rådgiver gjennom hele kjøps- og salgsprosessen.

Hjelp til finansiering

Vårt samarbeid med BN Bank sikrer deg rask og løsningsorientert hjelp, til konkurransedyktige betingelser.