Solgt

Kleppegrend 36

5 190 000 kr
136 m²
3 soverom
Velkommen til Kleppegrend 36 - Presentert av Kjell Fjellstad v/ Eiendomsmegler Krogsveen
Velkommen til Kleppegrend 36 - Presentert av Kjell Fjellstad v/ Eiendomsmegler Krogsveen
Kart
Del
Kjell Fjellstad
Presenteres av
Kjell Fjellstad
Enebolig med usjenert hage og meget gode solforhold. Sentralt, attraktivt og barnevennlig. Nydelig vinterhage. Carport.

Unngå doble boligrenter

Vi tilbyr gunstig forsikring.
Sjekk estimert lånekostnad

    Pris

  • Prisantydning
    5 190 000 kr
  • Omkostninger
    150 740 kr
  • Totalpris
    5 340 740 kr

    Areal

  • BRUKSAREAL
    165 m²
  • BRA-I (internt bruksareal)
    136 m²
  • BRA-E (eksternt bruksareal)
    14 m²
  • TBA (terrasse-balkongareal)
    15 m²

    Nøkkelinfo

  • Etasje
    2
  • Byggeår
    1999
  • Soverom
    3 soverom
  • Bad
    2 bad
  • Tomteareal
    359 m² (eiet)
  • Type
    Enebolig - Frittliggende
  • Eierform
    Eiet
  • Energimerke
    Gul D

På flyttefot? Tenk kjøp og salg samtidig.

Få din egen rådgiver gjennom hele kjøps- og salgsprosessen. Det starter med en verdivurdering.

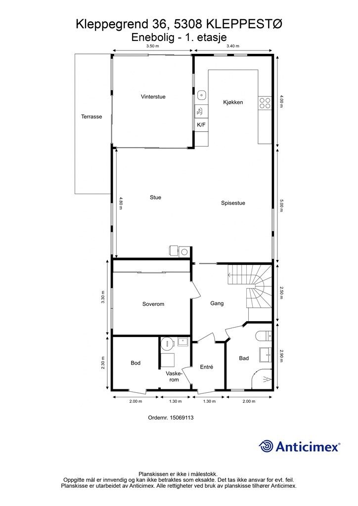
Beskrivelse

Kort om eiendommen

Velkommen til Kleppegrend 36. En flott og familievennlig enebolig med populær beliggenhet i et attraktivt boligområde. Koselig og usjenert hage med fine uteplasser og ypperlige solforhold! Høydepunkter:
  • Enebolig på 151 kvm inkl. nydelig isolert vinterhage med varmekabler
  • Tilbygget kjøkken og vinterhage i 2015
  • Åpen stue/ kjøkkenløsning og stort kjøkken fra JKE
  • Koselig og usjenert hage med fine uteplasser
  • Sol fra tidlig morgen til sen kveld
  • 3 gode soverom + loftstue
  • 2 bad
  • Parkering i carport med elbillader og biloppstillingsplasser ved huset
  • Sentral beliggenhet med nærhet til "alt"
  • Barnevennlig og trygg gangvei til skole og barnehage
  • Gangavstand til butikk, kjøpesenter og treningssenter m.m.
  • 15 min. kjøring til Bergen sentrum
  • Område

    Legg til steder som er viktige for deg

    Prisutvikling for området

    Kvadratmeterpris
    0 kr/m²
    Endring
    ↘︎ % ()

    På flyttefot? Tenk kjøp og salg samtidig.

    Få din egen rådgiver gjennom hele kjøps- og salgsprosessen. Det starter med en verdivurdering.

    Vil du varsles om lignende boliger?

    Ved å lagre ditt boligsøk hos oss får du beskjed når vi har en bolig som ligner denne, før den legges ut på markedet!

    På flyttefot? Slik gjør vi det enklere for deg

    Skreddersydd flyttepakke

    Vi fikser håndverkere, vask, pakking, lagring og transport, og legger ut for utgiftene underveis.

    Hjelp med både kjøp og salg

    Hos oss har du din egen rådgiver gjennom hele kjøps- og salgsprosessen.

    Hjelp til finansiering

    Vårt samarbeid med BN Bank sikrer deg rask og løsningsorientert hjelp, til konkurransedyktige betingelser.