Solgt

Teglverksveien 2A

2 290 000 kr
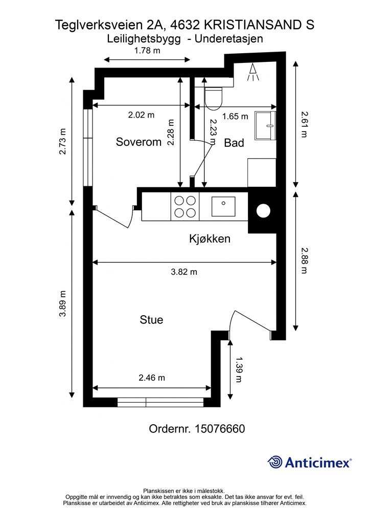
24 m²
Krogsveen v/Anders R. Skajaa presenterer Teglverksveien 2A!
Krogsveen v/Anders R. Skajaa presenterer Teglverksveien 2A!
Kart
Del
Anders Rønn Skajaa
Presenteres av
Anders Rønn Skajaa
Lund / Kuholmen
Lekker selveierleilighet totalrenovert i 2025! - Innbydende og moderne - Lave felleskost. - Rolig og sjønær beliggenhet!

Unngå doble boligrenter

Vi tilbyr gunstig forsikring.
Sjekk estimert lånekostnad

    Pris

  • Prisantydning
    2 290 000 kr
  • Omkostninger
    68 290 kr
  • Totalpris
    2 358 290 kr

    Areal

  • BRUKSAREAL
    24 m²
  • BRA-I (internt bruksareal)
    24 m²

    Nøkkelinfo

  • Etasje
    -1
  • Byggeår
    1939
  • Bad
    1 bad
  • Type
    Eierleilighet
  • Eierform
    Eierseksjon
  • Fellesutgifter
    1 000 kr

På flyttefot? Tenk kjøp og salg samtidig.

Få din egen rådgiver gjennom hele kjøps- og salgsprosessen. Det starter med en verdivurdering.

Dette liker selger best ved boligen

Selgers beskrivelse av det mest positive ved eiendommen: Vennlig sameie og rolig nabolag. Hele leilighetene er totalrenovert med ny og god standard samt felles solrik terrasse. Lave fellesutgifter og nærhet til "Alt".

Beskrivelse

Kort om eiendommen

Krogsveen v/Anders R. Skajaa presenterer Teglverksveien 2A!
Attraktivitet beliggende og totalrenovert leilighet omgjort fra butikklokalet til leilighet i 2025.
Moderne og nyoppusset med smarte løsninger og lave felleskostnader. Arealeffektiv og lekker leilighet med moderne Sørlandskjøkken med integrerte hvitevarer. Stue med rikelig dagslys fra store vindusflater og plass til sofagruppe. Nye vinduer og etterisolert. Alt er oppusset av fagfolk med nye rør, elektrisk og overflater. Lekre gulv med varme i alle rom, listefrie slette overflater med spotte skinne i tak. Pent bad med moderne innredning og opplegg for vaskemaskin.
Rolig, sjønær og sentrumsnær beliggenhet med bussforbindelser til det meste i byen og kun 2,2 km fra ytterdøren til Markens gate.
Påmeldingsvisning - Velkommen!

Område

Legg til steder som er viktige for deg

Prisutvikling for området

Kvadratmeterpris
0 kr/m²
Endring
↘︎ % ()

På flyttefot? Tenk kjøp og salg samtidig.

Få din egen rådgiver gjennom hele kjøps- og salgsprosessen. Det starter med en verdivurdering.

Vil du varsles om lignende boliger?

Ved å lagre ditt boligsøk hos oss får du beskjed når vi har en bolig som ligner denne, før den legges ut på markedet!

På flyttefot? Slik gjør vi det enklere for deg

Skreddersydd flyttepakke

Vi fikser håndverkere, vask, pakking, lagring og transport, og legger ut for utgiftene underveis.

Hjelp med både kjøp og salg

Hos oss har du din egen rådgiver gjennom hele kjøps- og salgsprosessen.

Hjelp til finansiering

Vårt samarbeid med BN Bank sikrer deg rask og løsningsorientert hjelp, til konkurransedyktige betingelser.