Komplett salgsoppgave

Håkon Magnussons gate 34

1 250 000 kr
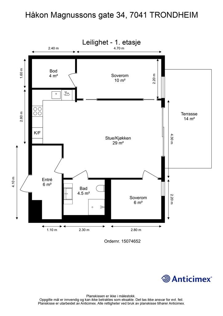
69 m²
2 soverom
Krogsveen v/Andreas B. Gunnesmæl presenterer Håkon Magnussons gate 34 - og denne stilrene 3-roms andelsleiligheten
Krogsveen v/Andreas B. Gunnesmæl presenterer Håkon Magnussons gate 34 - og denne stilrene 3-roms andelsleiligheten
Kart
Redesign på Hjem.no
Del
Flott 3-roms andelsleilighet | Sentralt | Sørøstvendt balkong | Fjernvarme | Bod og heis | Moderne | Studiesteder | TG1

Unngå doble boligrenter

Vi tilbyr gunstig forsikring.
Sjekk estimert lånekostnad

    Pris

  • Prisantydning
    1 250 000 kr
  • Andel fellesgjeld
    2 625 000 kr
  • Omkostninger
    19 252 kr
  • Totalpris
    3 894 252 kr

    Areal

  • BRUKSAREAL
    69 m²
  • BRA-I (internt bruksareal)
    69 m²
  • TBA (terrasse-balkongareal)
    14 m²

    Nøkkelinfo

  • Etasje
    1
  • Byggeår
    2023
  • Soverom
    2 soverom
  • Bad
    1 bad
  • Type
    Andelsleilighet
  • Eierform
    Andel
  • Fasiliteter
    Heis og Balkong/Terrasse
  • Fellesutgifter
    16 542 kr
  • Energimerke
    Grønn B

Visning

For å delta på visning, ber vi om at du melder deg på. Da sikrer vi at du får nødvendig informasjon og at det er satt av tilstrekkelig med tid. Kontakt megler dersom annet tidspunkt ønskes. Husk å lese salgsoppgaven før visningen, så du stiller forberedt.
Ønsker du kun å bli holdt orientert, kan du fra eiendommens hjemmeside få varsel om solgtpris, eller kontakte megler.
Lurer du på noe?

Beskrivelse

Kort om eiendommen

Krogsveen v/Andreas B. Gunnesmæl presenterer Håkon Magnussons gate 34 - og denne stilrene 3-roms andelsleiligheten beliggende flott til byggets 1.etasje! I nærområdet har man kort avstand til alt man trenger, samt gode kollektivtilbud.
Verdt å nevne:
- Pent kjøkken med integrerte hvitevarer.
- To romslige soverom med garderobeplass.
- Sørøstvendt terrasse.
- God takhøyde og store vindusflater som gir godt med dagslys.
- TG1 på alle punktene i takstrapporten til takstmann.
- Fjernvarme og balansert ventilasjonsanlegg.
- Bussforbindelser til hele byen.
- Pent opparbeidet uteområde.
- Kort vei til flere av Trondheims anerkjente studiesteder, dagligvare, treningssenter mm.

Innhold og byggemåte

Eiendommen

Håkon Magnussons gate 34, 7041 TRONDHEIM
Kommunenummer 5001, gårdsnummer 414, bruksnummer 577, ideell andel 1/1
Andelsnummer 8, Tindvedtunet Borettslag, organisasjonsnummer 931192310

Innhold

Totalt bruksareal BRA: 69 kvm
BRA-i:
Kjeller: 5 kvm: Bod.
1. etasje 64 kvm: Entré, stue/kjøkken, bad, to soverom og bod.
Åpent areal:
1. etasje 14 kvm: Terrasse.
Det gjøres oppmerksom på at boligens eksterne boder tilhører borettslagets fellesareal, og at boden således ikke eies av den enkelte andelseier. Dette medfører at borettslaget i fellesskap beslutter bruken, og at man ikke selv har eierrett og rettsvern for boden. Borettslaget kan ved vedtak beslutte annet bruk av fellesarealet og disponering av bodarealet kan dermed opphøre.
Vedlagte plantegninger er ikke målbare. De oppgitte arealer er hentet fra rapport med befaringsdato 12.08.2025 utført av Anticimex v/Jørgen Amtoft.

Byggemåte

Selger har fått utarbeidet en tilstandsrapport, dvs. en teknisk gjennomgang av boligen hvor eventuelle avvik, risiko for kjøper og prisoverslag for hva som bør gjøres av oppgradering, er skissert. Se særskilt TGIU (tilstandsgrad ikke undersøkt). Rapporten og selgers egenerklæring er en del av salgsoppgaven og må leses nøye før bud inngis. Kjøper overtar ansvaret for de opplysninger som fremkommer av salgsdokumentasjonen, og kan ikke gjøre gjeldende som mangel noe som burde vært kjent eller som ikke kan anses å ha betydning for avtalen.  
Bygningen er iht. tilstandsrapporten oppført i 2023. Grunnmur og bærende konstruksjoner i hovedsak av betong. Fundamentert på ukjent byggegrunn. Bygget er oppført med støpt gulv mot grunn. Fasaden er kledd med stående trekledning. Etasjeskillere av betong. Flatt tak (ikke besiktiget). Leiligheten har entrédør med brannklasse EI30 og lydklasse Rw 40dB. Vinduer og balkongdør med karmer av tre, og tre-lags glass. Oppvarming med vannbåren gulvvarme tilkoblet varmesentral. Mekanisk balansert ventilasjon.
Les forøvrig mer om byggemåte og den tekniske tilstanden i rapporten.

Standard

95% TG 1: I orden
0% TG 2: Alder, slitasje, skader mv.
0% TG 3: Strakstiltak nødvendig
5% TGIU: Ikke undersøkt
Rapporten fra takstmann er en teknisk gjennomgang av boligen og angir eventuelle byggetekniske avvik. I rapporten fremkommer det at boligen er i god befatning, uten behov for strakstiltak.
Tilstandsgrad IU:
- Fukt i tilliggende konstruksjoner, med bakgrunn i at våtrommet er bygget som en prefabrikkert baderomskabin er det ikke utført hulltaking/fuktmåling i lukkede konstruksjoner.
- Radon pga. Det er ikke foretatt radonmåling i boligen. Boligen er bygget etter at krav om radonsperre ble innført, men forholdet/utførelsen er ikke dokumentert.
Tilstandsrapporten og selgers egenerklæring følger vedlagt i salgsoppgaven. Interessenter må sette seg inn i dokumentene før bud inngis.

Løsøre og tilbehør

Vi viser til liste fra Norges Eiendomsmeglerforbund som gjelder fra 01.01.2020 angående løsøre og tilbehør.

Oppvarming

Oppvarming med vannbåren gulvvarme tilkoblet varmesentral. Mekanisk balansert ventilasjon.

Ferdigattest/brukstillatelse

Det foreligger ferdigattest på eiendommen datert 15.04.24.  Denne kan fås ved henvendelse til megler.

Tinglyste heftelser og rettigheter

På eiendommen er det tinglyst følgende heftelser og rettigheter som følger eiendommens matrikkel ved overskjøting til ny hjemmelshaver:
931192310/8:
30.11.2023 - Dokumentnr: 1341006 - Forkjøpsrett
Rettighetshaver: Obos Bbl
Org.nr: 937 052 766
30.11.2023 - Dokumentnr: 1341006 - Forbud mot salg uten samtykke fra rettighetshaver
Rettighetshaver: Obos Bbl
Org.nr: 937 052 766

Eventuell adgang til utleie

Andelseier kan ikke uten samtykke fra styret i borettslaget overlate bruken av boligen til andre. Med samtykke kan andelseier overlate boligen til andre i inntil tre år hvis andelseier har bodd i boligen i minst ett av de to siste år. Utleie i andre tilfeller kan godtas ved særlige grunner, jf. burettslagslova § 5-6. Utleie forutsetter at leiligheten har forsvarlige radonverdier. Se også borettslagets vedtekter og konferer megler ved spørsmål.

Diverse

Boligens selges ved fullmektig. Fullmektigen har ikke selv bebodd eiendommen og har derfor ikke kunnskap om eiendommens tilstand utover det som fremkommer i salgsoppgave og tilstandsrapport.
Boligen vil ikke bli ytterligere vasket enn slik den var på visning.
Vi er opptatt av verdiskapning, og har knyttet til oss samarbeidspartnere som skal sikre våre kunder de beste produkter og tjenester; 
•    Gjensidige leverer boligselgerforsikring og tilbyr bygningsforsikring
•    Boligkjøperforsikring leveres av Hiscox og med Sedgwick som skadebehandler, og er formidlet gjennom Gjensidige.
•    BN bank tilbyr finansieringsløsninger
•    Vår avdeling Krogsveen Pluss tilbyr flyttetjenester som utvask, visningsvask, lager, tømming og transport av flyttelass, i tillegg til å formidle kontakt med Flip for overflateoppussing.
•    I forbindelse med overtagelse av eiendommen tilbyr Overo avtale om strøm, alarm og bredbånd.
•    Krogsveen er, sammen med øvrige bransjeaktører, medeier i den digitale annonseringsplattformen Hjem.
 

Beliggenhet og tomteforhold

Beliggenhet

Leiligheten ligger i et sentralt og populært område på Lade. Området har en perfekt plassering med kort vei til Ladestien og Sentrum. Fra eiendommen er det gangavstand til et flertall barnehager og skoler. Det er også kort vei til dagligvarebutikker, kollektivtilbud og andre servicefasiliteter.
Her er det både nærhet til sjøen langs Lade og Ranheimsfjæra, samt skogsturer i Strindamarka. Ladestien er antageligvis den mest populære turstien på denne siden av byen, og går langs Trondheimsfjorden. Ladestien går fra Grilstadfjæra til Ladehammeren, og langs stien ligger det flere badeplasser, samt serveringsstedene Sponhuset og Ladekaia. En annen populær tursti er Stokkbekken som går fra Rotvoll via Charlottenlund til Dragvoll, og er tilknyttet turnettet i Strindamarka. Her er det fint enten man vil ut for å jogge eller spasere med barnevogn.
Estenstadmarka utgjør den nordlige delen av Strindamarka og har et fantastisk turterreng året rundt. I vinterhalvåret er det oppkjørte skiløyper i Estenstadmarka, mens på sommerstid kan Estenstaddammen by på en frisk dukkert. For mange er Estenstadhytta et naturlig turmål og her er det anlagt en natursti som inneholder nesten 30 tavler med informasjon om alt fra planter til dyr.
Dagligvarehandelen kan gjøres unna i nærområdet på Rema 1000 Ladetorget og Coop Obs City Lade. Videre finner du City Lade med ca. 67 butikker, 15 spisesteder, helse- og servicefasiliteter, samt rikelig med innendørs parkering. Sirkus Shopping og Lade Arena byr også på et svært godt utvalg av butikker, spisesteder og servicetilbud.
Trondheim sentrum ligger også en kort kjøretur eller sykkeltur unna. Området har også et godt kollektivtilbud via buss og tog.
For de som er opptatt av trening er det flere sentre i nær omkrets. 3T Lade, Impulse Lade og CrossFit Maxpuls kan tilby et innendørs treningstilbud. I tillegg er det svært fint å jogge i naturskjønne omgivelser langs Ladestien.

Adkomst

Veibeskrivelse Se Google maps - det er enkelt å finne frem i kartet.
Link: https://share.google/4DLCnlpXKYTz5tSZj

Barnehager, skoler og fritid

Boligen sogner til området Lade/Lilleby,
Barnehager i nærheten:
- Stabburet barnehage (3-5 år) 0,9 km.
- Korsvika barnehage (1-2 år) 0,9 km.
- Dronning Mauds Minne barnehage (1-5 år) 1 km.
Skoler i nærheten:
- Lade skole (1-10 kl.) 0,7 km.
- Lilleby skole (1-7 kl.) 0,9 km.
- Strindheim skole (1-7 kl.) 1,8 km.
- Trondheim Montessori (1-7 kl.) 2,4 km.
- Trondheim idrettsungdomsskole (8-10 kl.) 1,2 km.
- Lukas videregående skole (80 elever) 2,4 km.
- Bybroen videregående skole (210 elever) 3,6 km.
Dagligvare:
- Coop Obs City Lade - 0,2 km.
- Bunnpris Lade - 0,3 km.
Offentlig transport:
- Lade Idrettsanlegg - 4 min gange.
- Lilleby stasjon - 15 min gange.
- Trondheim S - 7 min med bil.
- Trondheim lufthavn Værnes - 28 min med bil.
Varer/Tjenester:
- Lade Torget 6 min gange.
- City Lade 2 min gange.
- Lade idrettsanlegg 4 min gange.
Informasjon om tilhørende skolekretser er hentet fra Prognosesenteret som dataleverandør, og tilhørigheten kan årlig endres av kommunen. Dersom skole- og barnehagetilbud er av betydning for kjøpet, ber vi om at det rettes en særskilt henvendelse til kommunen/bydelsadministrasjonen for oppdatert informasjon.

Beskrivelse av tomt

Felles tomt for sameiet opparbeidet med asfalt,
diverse beplantninger, plenareal, lekeplass og biloppstillingsplass. Felles trappeoppgang med callinganlegg og heis.

Parkering

Det medfølger ikke parkering til leiligheten, men det er mulighet for å kjøpe/leie plass i p-kjeller.
Gateparkering etter områdets bestemmelser. 

Vei, vann og avløp

Eiendommen har adkomst via privat vei med felles vedlikeholdsansvar for sameiet.
Eiendommen er tilknyttet kommunalt ledningsnett via private stikkledninger. Sameiet er ansvarlig for private stikkledninger til bygningen.

Regulerings-og arealplaner

Eiendommen er regulert til boligformål i henhold til reguleringsplan r20150014 datert 26.10.2017 med tilhørende reguleringsbestemmelser.  
Det pågår ferdigstilling av naboblokken og det må påregnes noe byggeaktivitet i tiden fremover.
Utsnitt av plan med tilhørende bestemmelser kan fås ved henvendelse til megler.

Økonomi

Boligens kostnader

Felleskostnadene er kr 16.542,-  pr. mnd. og inkluderer:
Totale felleskostnader pr. d.d. kr 16.542,– pr. md.
- Bruksrett p-kjeller 30,-
- Bod 150,-
- Kontingent utomhus 200,-
- Felleskostnader 3.472,-
- Akonto oppvarming 768,-
- Kapitalkostnader OBOS01 11.922,-
Kostnader for fjernvarme avregnes årlig etter forbruk og ved eierskifte, dette betales som et månedlig á-konto beløp. Beløpet fastsettes av styret årlig etter avregning. Det er installert målere slik at avgiftene vil variere etter forbruket i leiligheten.
Utgiftene er basert på nåværende eiers forbruk. Kjøper må selv tegne innboforsikring.

Formuesverdi

Ved hjelp av Skatteetatens kalkulator er formuesverdien for 2023 beregnet til kr 1 127 798,- når eier er fast bosatt på eiendommen.(primærbolig).
Grunnet at boligen ble oppført i 2023 er formuesverdien ikke fastsatt på nåværende tidspunkt.
Ved eventuell øvrig bruk av eiendommen (f.eks. fritidsbolig, pendlerbolig, utleieobjekt) var formuesverdien for 2023 kr 4 511 185,-
Formuesverdien justeres normalt årlig. Se skatteetaten.no for mer informasjon om fastsettelse av formuesverdien.

Opplysninger om fellesgjeld

Andel formue er kr 25 868,- pr.
Andel fellesgjeld er kr 2 625 000,- pr. 01.05.2025
Total fellesgjeld for boligselskapet er 242.175.000,- per 20.05.2025 og lånevilkårene er:
Lånenummer: OBOS01-98208236202
Type: A
Restsaldo: 242.175.000,-
Restløpetid: 38 år og 8 måneder
Terminer per år: 12
Avdragsfrihet til og med: 01.01.2034
Type rente: Flyt
Rente: 5,18%
Borettslagets lån er avdragsfritt i 9 år. Frem til 01.01.2034 betales det dermed kun renter. Etter utløpet av avdragsfri periode for fellesgjelden, anslås at felleskostnadene vil øke med kr 3.051,- pr. mnd. Dette forutsetter uendret rente, samt at øvrige utgiftsposter forblir på dagens nivå.
IN-ordning:
Dette borettslaget har tilrettelagt for individuell nedbetaling av andel fellesgjeld (IN-ordning). Det vil si at hver enkelt andelseier helt eller delvis kan velge å nedbetale sin andel av borettslagets fellesgjeld til boligbyggelaget. Dette vil i så fall medføre en reduksjon av de månedlige felleskostnadene (andel av renter og avdrag på fellesgjelden). Nedbetalt andel av fellesgjeld knyttes til andelen og følger andelen ved et eventuelt salg. Ta kontakt med selskapets rådgiver for mer informasjon.
Mulighet for innfrielse av fellesgjeld per 30.03. og 30.09.

Omkostninger

1 250 000,00 Prisantydning
2 625 000,00 Andel av fellesgjeld
--------------------------------------------------------
3 875 000,00 Pris inkl. fellesgjeld
Omkostninger
8 212,00  Gebyr forhåndsavklaring forkjøpsrett
9 950,00  Gjensidige Boligkjøperpakke (valgfri)
545,00  Tinglysing hjemmel
545,00  Tinglysing panterettsdokument
--------------------------------------------------------
19 252,00 Omkostninger totalt
--------------------------------------------------------
3 894 252,00 Totalpris inkl. omkostninger
--------------------------------------------------------

Betalingsbetingelser

Kjøpesum inkludert omkostninger, samt pantedokument tilknyttet eventuelt lån, skal være disponibelt hos megler 2 virkedager før overtagelsen.

Annen viktig informasjon

Eier

OBOS BBL

Informasjon om borettslaget

Leiligheten er tilknyttet Tindvedtunet Borettslag.
Forretningsfører er OBOS.
Dugnad må påregnes.
Det er tillatt å holde dyr så lenge dyreholdet ikke er til sjenanse eller ulempe for de øvrige beboerne. Det forutsettes at eier av dyret er kjent med politivedtektene angående dyrehold og straffebestemmelsene som gjelder for å holde dyr. Hunder skal føres i bånd innenfor borettslagets område. Eier av dyret skal straks fjerne ekskrementer som dyret måtte etterlate på eiendommen. Dyr må holdes borte fra lekeplasser og sandkasser.
Kjøper må innen overtakelse melde seg inn i OBOS.
Sameiet er tilknyttet Ladebyhagen Fellessameie. Alle betaler kr 200,- per måned i felleskostnader som kontingent til fellessameiet. Andelseierne med bod og/eller parkeringsplass i Ladebyhagen Garasjesameie har tinglyste eierandeler i sameiet.
I henhold til borettslagets vedtekter må kjøper godkjennes av styret som ny andelseier. Det er kjøpers ansvar at styregodkjenning blir gitt, men styret kan ikke nekte godkjenning uten saklig grunn. Iht. burettslagslova kan man bare eie én andel i borettslaget. Kun fysiske personer kan være andelseiere.
Øvrige andelseiere i borettslaget og eventuelt medlemmer av boligbyggelaget har forkjøpsrett. Dersom boligen tas på forkjøpsrett løses kjøper fra avtalen. 
For å dekke eventuell manglende innbetaling av fellesutgifter fra øvrige andelseiere, er borettslaget tilknyttet et sikringsfond gjennom OBOS. Dette innebærer at OBOS innbetaler samtlige felleskostnader til borettslaget hver måned og dermed overtar ansvar og risiko for eventuell inndrivelse av utestående fellesutgifter. Avtalen om sikringsfond gjennom OBOS er gyldig til den sies opp av en av partene. Oppsigelsesfrist er 12 måneder.
Dokumenter for borettslaget kan fås ved henvendelse til megler.

Informasjon om forkjøpsrett

Øvrige andelseiere i borettslaget og eventuelt medlemmer av boligbyggelaget har forkjøpsrett. Dersom boligen tas på forkjøpsrett løses kjøper fra avtalen. 

Overtakelse

Etter nærmere avtale. Overtakelse kan tidligst skje etter at forkjøpsretten for øvrige andelseiere i borettslaget og eventuelt medlemmer av boligbyggelaget er avklart, samt at styrets godkjennelse er avklart. 
Boligen vil ikke bli ytterligere vasket fra visning til overtakelse finner sted.

Boligselgerforsikring

Det gjøres oppmerksom på at selger ikke har tegnet boligselgerforsikring som dekker selgers ansvar etter avhendingsloven. Likevel foreligger selgers egenerklæring og godkjent tilstandsrapport som interessenter må sette seg inn i før bud inngis. Eventuelle reklamasjoner må rettes direkte til selger.  
Boligen er ervervet av selger som del av OBOS sin bostartordning. Selger har derfor ikke bebodd boligen som er lagt ut for salg og kjenner derfor ikke denne utover beskrivelser i tilstandsrapport og salgsoppgave. Av samme grunn kan selger i begrenset grad supplere og kontrollere opplysningene i tilstandsrapport og salgsoppgave. Kjøper oppfordres derfor til å gjøre en særlig grundig undersøkelse.

Boligkjøperforsikring

Innen kontraktsmøtet må kjøper ta stilling til om det ønskes å bestille Boligkjøperpakken gjennom Gjensidige. I denne gunstige pakken er boligen ferdig forsikret og inkluderer rettshjelpsforsikring, også kalt Boligkjøperforsikring. Rettshjelpsforsikring gir trygghet og tilgang på profesjonell juridisk hjelp dersom det oppdages uventede feil eller mangler det første året etter overtagelse. Forsikringsselskapet behandler i så fall ethvert mangelskrav kjøper måtte ha overfor selger. 
Boligkjøperpakken inkluderer bygningsforsikring for hus og hytte, innboforsikring, flytteforsikring og dobbel rentedekning - i situasjoner hvor kjøper ikke får solgt nåværende primærbolig.   
Kjøper mottar ingen særskilt faktura for Boligkjøperpakken da kostnaden det første året legges til kjøpesummen for boligen. Det gjøres oppmerksom på Krogsveen mottar et honorar for denne formidlingen.
Produktark for Boligkjøperpakken ligger vedlagt i salgsoppgaven.  
Dersom ikke boligkjøperpakke ønskes kan kun rettshjelpsforsikring, også kalt boligkjøperforsikring, tegnes særskilt via megler. Rettshjelpsforsikringen varer i 5 år fra overtagelse og leveres gjennom Gjensidige. Ta kontakt med megler for ytterligere informasjon. 
Selskap og privatpersoner som driver med kjøp/salg/utvikling som ledd i egen næringsvirksomhet kan ikke tegne boligkjøperpakke eller rettshjelpsforsikring. 

Budgivning

Forbrukerinformasjon om budgivning er vedlagt denne salgsoppgaven og er også på vår hjemmeside Krogsveen.no. Alle bud og budforhøyelser må inngis skriftlig. I tillegg må legitimasjon være fremlagt sammen med signatur fra budgiver.
Vi oppfordrer til å gi bud elektronisk via GI BUD-knappen på eiendommens hjemmeside på Krogsveen.no. Da vil samtlige vilkår bli oppfylt.  
Eventuelle forhøyelser eller endringer av budet kan bekreftes pr SMS eller på e-post. Vi oppfordrer alltid til å kontakte megler pr. telefon i tillegg da forsinkelser i SMS og e-post kan forekomme.
For at budene skal kunne bli behandlet og videreformidlet skriftlig til alle involverte parter, må alle bud ha en tilstrekkelig lang akseptfrist, jf. eiendomsmeglingsforskriften § 6-3.
Selger må også skriftlig akseptere budet før aksept kan formidles til budgiver. Akseptfrist bør derfor være på minimum 30 minutter, og budforhøyelser må derfor skje i god tid før fristens utløp.
Bud i forbrukerforhold kan uansett ikke settes med kortere frist enn kl. 12.00 første virkedag etter siste annonserte visning. I tillegg kan ikke budet ha forbehold om at det skal holdes hemmelig ovenfor øvrige interessenter. Megler har iht lov om eiendomsmegling ikke anledning til å videreformidle disse budene, og de vil dermed heller ikke bli journalført.
Etter at eiendommen er solgt vil kjøper og selger få tilsendt budjournal. Øvrige budgivere kan få utlevert kopi av budjournalen i anonymisert form.

Hvitvaskingsreglene

I henhold til lov om hvitvasking og terrorfinansiering har megler plikt til å gjennomføre kontrolltiltak overfor kunder, herunder fullmektiger. Dette innebærer bl.a. å bekrefte kunders og reelle rettighetshaveres identitet på bakgrunn av fremvist gyldig legitimasjon eller på annen godkjent måte, samt å innhente opplysninger om kundeforholdets formål og tilsiktede art.
Dersom slike kundetiltak ikke kan gjennomføres, kan megler ikke etablere kundeforholdet eller utføre transaksjonen.
Hvis kjøper ikke bidrar til gjennomføring av kundekontrollen og dette fører til at transaksjonen blir forsinket eller ikke kan gjennomføres, vil dette ansees som mislighold av avtalen og gi selger rettigheter etter avhendingslova kapittel 5. I tilfeller der selger ikke bidrar til gjennomføring av løpende kundekontroll underveis i oppdraget, er det selger som misligholder sine forpliktelser etter avtalen og gi kjøper rettigheter etter avhendingslovens kapittel 4. Partene er selv ansvarlige for eventuelle kostnader og ansvar dette kan medføre. Eiendomsmegleren eller eiendomsmeglingsforetaket kan ikke holdes ansvarlig for de konsekvenser dette vil kunne få for partene eller andre som har interesser i eiendomshandelen.
Kjøper oppfordres til å innbetale kjøpesummen som ikke kommer fra låneinstitusjon i én samlet innbetaling fra egen konto i norsk bank. Megler har plikt til å melde fra til Økokrim om eiendomshandler som fremstår som mistenkelige. Melding sendes Økokrim uten at partene varsles. 

Personopplysningsloven

I henhold til personopplysningsloven gjør vi oppmerksom på at interessenter kan bli registrert for videre oppfølging.

Lovanvendelse

Generelle bestemmelser
Salgsoppgaven er basert på de opplysningene selger har gitt til megler, den bygningssakyndiges tilstandsrapport, samt opplysninger innhentet fra kommunen, Kartverket og andre tilgjengelige kilder. Det er viktig at kjøper setter seg grundig inn i alle salgsdokumentene, herunder salgsoppgave, tilstandsrapport og selgers egenerklæring. Kjøper anses kjent med forhold som er tydelig beskrevet i salgsdokumentene, og slike forhold kan ikke påberopes som mangler. Dette gjelder uavhengig av om kjøper har lest dokumentene. Alle interessenter oppfordres til å undersøke eiendommen nøye, gjerne sammen med fagkyndig før bud inngis. Kjøper som velger å kjøpe usett kan ikke gjøre gjeldende som mangel noe han burde blitt kjent med ved undersøkelsen. 
Dersom det er behov for avklaringer, anbefaler vi at interessenter rådfører seg med eiendomsmegler eller egne rådgivere før det legges inn bud.
En bolig som har blitt brukt i en viss tid, har vanligvis blitt utsatt for slitasje og skader kan ha oppstått. Slik bruksslitasje må kjøper regne med, og det kan avdekkes enkelte forhold etter overtakelse som nødvendiggjør utbedringer. Normal slitasje og skader som nødvendiggjør utbedring, er innenfor hva kjøper må forvente og vil ikke utgjøre en mangel.
Kjøper og selgers rettigheter og plikter reguleres av avtalen mellom partene, samt informasjonen som har vært tilgjengelig for kjøperen i forbindelse med handelen. Avtalen utfylles av avhendingsloven, og det gjelder ulike avtalevilkår avhengig av om kjøper er forbrukerkjøper eller ikke.  Dette er nærmere beskrevet nedenfor. 
På grunn av ulike avtalevilkår kan selger vurdere bud fra en som ikke er forbruker, ulikt fra en forbrukers bud. Dersom kjøper ikke er forbruker, er selger sitt mulige mangelsansvar begrenset fordi eiendommen selges "som den er".  Selger kan ikke ta «som den er»- forbehold overfor en forbrukerkjøper. Selv et lavere bud fra en som ikke er forbruker kan foretrekkes fordi begrensningen i mulig mangelsansvar kan ha egenverdi for selger. Selger står fritt til å forkaste eller akseptere ethvert bud, og er for eksempel ikke forpliktet til å akseptere høyeste bud.
Budgiver skal i budskjema avgi egenerklæring om budgiver er forbruker eller næringsdrivende/ person som hovedsakelig handler som ledd i næringsvirksomhet. Budgivere får informasjon dersom andre bud er inngitt av en som ikke er forbruker. 
Forbrukerkjøp - definisjon
Med forbrukerkjøp menes kjøp av eiendom når kjøperen er en fysisk person som ikke hovedsakelig handler som ledd i næringsvirksomhet.
Forbruker – avtalevilkår
Eiendommen har en mangel dersom den ikke er i samsvar med kravene som følger av avtalen, eller det foreligger brudd på bestemmelsene i avhendingsloven §§ 3-2 til 3-8. Hvis eiendommen ikke er i samsvar med det kjøperen må kunne forvente ut ifra alder, type og synlig tilstand, kan det være grunnlag for mangelskrav. Det samme gjelder hvis det er holdt tilbake eller gitt uriktige opplysninger om eiendommen. Dette gjelder likevel bare dersom man kan gå ut ifra at det virket inn på avtalen at opplysningen ikke ble gitt eller at mangelskravet ikke blir rettet i tide på en tydelig måte.
Boligen kan ha en mangel etter avhendingsloven § 3-3 andre ledd, dersom det er avvik mellom opplyst og faktisk innvendig areal, forutsatt at avviket er på 2% eller mer og minimum 1 kvm.
Ved beregning av et eventuelt prisavslag eller erstatning må kjøper selv dekke tap/kostnader opptil et beløp på kr 10 000 (egenandel).
Ikke-forbruker (næringsdrivende) – definisjon 
Hvis kjøper er en juridisk person, eller en fysisk person som hovedsakelig handler som ledd i næringsvirksomhet, vil kjøpet ikke anses som et forbrukerkjøp. 
Ikke-forbruker – avtalevilkår
Eiendommen har en mangel dersom den ikke er i samsvar med kravene som følger av avtalen.
Eiendommen selges «som den er», og selgers ansvar utover det konkret avtalte er da begrenset etter avhendingsloven § 3-9, første ledd andre setning. 
Avhendingsloven § 3-3 andre ledd fravikes, og hvorvidt boligens arealsvikt utgjør en mangel vurderes etter avhendingsloven § 3-8. 
Informasjon om kjøpers undersøkelsesplikt, herunder oppfordringen om å undersøke eiendommen nøye, gjelder også for kjøpere som ikke anses som forbrukere.
Det forutsettes at hjemmel overføres til kjøper. Hvis kjøper ikke ønsker hjemmelsoverføring av eiendommen, må det tas forbehold om dette i budet.

Meglers vederlag

Meglers vederlag betales av selger og er avtalt til:
Vederlag: 1,20 % av salgssummen inkl. eventuell fellesgjeld.
Vederlag
Kontroll av hjemmel og heftelser  kr 2 900,00
Kunderabatt - Markedsføringspakke  kr -5 000,00
Markedsføringspakke  kr 27 400,00
Oppgjør  kr 7 500,00
Overtagelse kr 2 500,00
Tilrettelegging  kr 13 000,00
Visninger pr stk  kr 2 500,00
Utlegg
Eierskiftegebyr forretningsfører - OBOS  kr 6 570,00
Innhenting av informasjon - OBOS  kr 4 038,00
Innhenting av offentlig opplysninger - kr 2 368,00
Tinglysing sikring  kr 545,00
Andre utgifter
Boligstyling - Helstyling  kr 25 000,00
Foto - Leilighet  kr 4 500,00
Tilstandsrapport fra bygningssakkyndig - faktura til megler  kr 10 750,00

Opplysninger om oppdraget

Oppdragsnummer 68-0114/25
Eiendomsmegler Krogsveen AS, avd. Trondheim
Fjordgata 82, 7010, TRONDHEIM
950 007 613
Oppdragets KR-kode KR68.25114

Dato

Sist oppdatert: 14. desember 2025 kl. 12:11

Dokumenter

Utskriftsvennlig salgsoppgave

Område

Legg til steder som er viktige for deg

Prisutvikling for området

Kvadratmeterpris
0 kr/m²
Endring
↘︎ % ()

Visning

For å delta på visning, ber vi om at du melder deg på. Da sikrer vi at du får nødvendig informasjon og at det er satt av tilstrekkelig med tid. Kontakt megler dersom annet tidspunkt ønskes. Husk å lese salgsoppgaven før visningen, så du stiller forberedt.
Ønsker du kun å bli holdt orientert, kan du fra eiendommens hjemmeside få varsel om solgtpris, eller kontakte megler.
Lurer du på noe?

Vil du varsles om lignende boliger?

Ved å lagre ditt boligsøk hos oss får du beskjed når vi har en bolig som ligner denne, før den legges ut på markedet!

På flyttefot? Slik gjør vi det enklere for deg

Skreddersydd flyttepakke

Vi fikser håndverkere, vask, pakking, lagring og transport, og legger ut for utgiftene underveis.

Hjelp med både kjøp og salg

Hos oss har du din egen rådgiver gjennom hele kjøps- og salgsprosessen.

Hjelp til finansiering

Vårt samarbeid med BN Bank sikrer deg rask og løsningsorientert hjelp, til konkurransedyktige betingelser.