Solgt

Nedre Straumfjordveien 48

1 250 000 kr
123 m²
4 soverom
Velkommen til Nedre Straumfjordveien 48! - Enebolig med låve på romslig tomt med en rolig og fin beliggenhet
Velkommen til Nedre Straumfjordveien 48! - Enebolig med låve på romslig tomt med en rolig og fin beliggenhet
Kart
Del
Jan Vidar Lysbakken
Presenteres av
Jan Vidar Lysbakken
Hitra
Stor eiendom med enebolig og låve i et rolig og frittliggende område | Tomt på over 2 mål | Behov for oppgraderinger

Unngå doble boligrenter

Vi tilbyr gunstig forsikring.
Sjekk estimert lånekostnad

    Pris

  • Prisantydning
    1 250 000 kr
  • Omkostninger
    52 240 kr
  • Totalpris
    1 302 240 kr

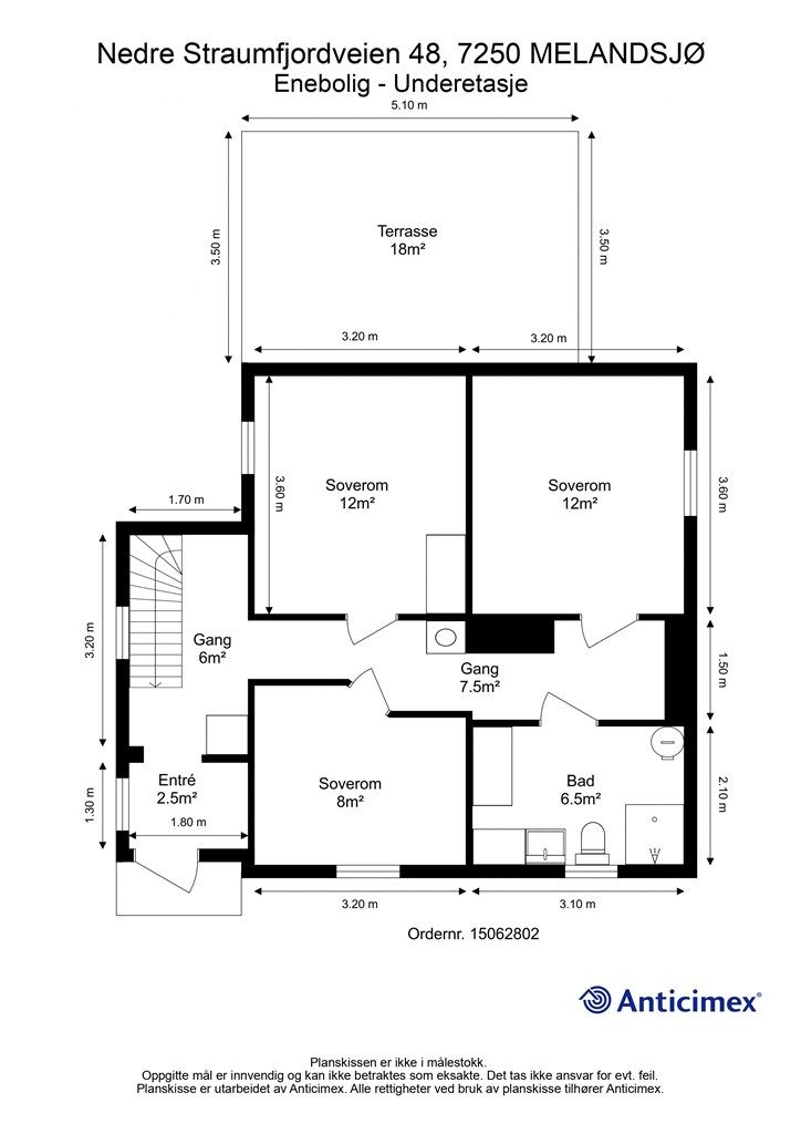
    Areal

  • BRUKSAREAL
    173 m²
  • BRA-I (internt bruksareal)
    123 m²
  • BRA-E (eksternt bruksareal)
    50 m²
  • TBA (terrasse-balkongareal)
    18 m²

    Nøkkelinfo

  • Byggeår
    1952
  • Soverom
    4 soverom
  • Bad
    1 bad
  • Tomteareal
    2 380 m² (eiet)
  • Type
    Enebolig - Frittliggende
  • Eierform
    Eiet
  • Fasiliteter
    Balkong/Terrasse
  • Energimerke
    Oransje G

På flyttefot? Tenk kjøp og salg samtidig.

Få din egen rådgiver gjennom hele kjøps- og salgsprosessen. Det starter med en verdivurdering.

Beskrivelse

Kort om eiendommen

Velkommen til Nedre Straumfjordveien 48! - et mindre småbruk med romslig tomt og mye lagringsplass. Frittliggende enebolig og låve med god plass for å ha dyr om ønskelig. Verdt å nevne
  • Frittliggende og lite trafikkert område med god boltreplass
  • Tomt på rett i underkant av 2,4 mål
  • Låve på 50 kvm. med mulighet for å ha dyr på eiendommen
  • Utført noe oppgradering 2021/2022, men det er behov for videre oppgraderinger og påkostninger
  • Gode solforhold på eiendommen med sol fra morgen til kveld.
  • Flotte turmuligheter i områder
  • Kort vei med bil til både Melandsjø og Fillan
  • Område

    Legg til steder som er viktige for deg

    Prisutvikling for området

    Kvadratmeterpris
    0 kr/m²
    Endring
    ↘︎ % ()

    På flyttefot? Tenk kjøp og salg samtidig.

    Få din egen rådgiver gjennom hele kjøps- og salgsprosessen. Det starter med en verdivurdering.

    Vil du varsles om lignende boliger?

    Ved å lagre ditt boligsøk hos oss får du beskjed når vi har en bolig som ligner denne, før den legges ut på markedet!

    På flyttefot? Slik gjør vi det enklere for deg

    Skreddersydd flyttepakke

    Vi fikser håndverkere, vask, pakking, lagring og transport, og legger ut for utgiftene underveis.

    Hjelp med både kjøp og salg

    Hos oss har du din egen rådgiver gjennom hele kjøps- og salgsprosessen.

    Hjelp til finansiering

    Vårt samarbeid med BN Bank sikrer deg rask og løsningsorientert hjelp, til konkurransedyktige betingelser.