Solgt

Hartevassvegen 9

10 490 000 kr
193 m²
6 soverom
- Velkommen til Hartevassvegen 9 -
- Velkommen til Hartevassvegen 9 -
Kart
Del
Hovden - Solsiden | Meget flott familie- generasjonshytte med sentral beliggenhet! Solrikt plassert like ved skisporet
Sjekk estimert lånekostnad

    Pris

  • Prisantydning
    10 490 000 kr
  • Omkostninger
    283 150 kr
  • Totalpris
    10 773 150 kr

    Areal

  • BRUKSAREAL
    212 m²
  • BRA-I (internt bruksareal)
    193 m²
  • BRA-E (eksternt bruksareal)
    19 m²
  • TBA (terrasse-balkongareal)
    99 m²

    Nøkkelinfo

  • Etasje
    2
  • Byggeår
    2019
  • Soverom
    6 soverom
  • Bad
    3 bad
  • Tomteareal
    1 099 m² (eiet)
  • Type
    Fritidseiendom på fjellet
  • Eierform
    Eiet
  • Fasiliteter
    Garasje/P-plass og Balkong/Terrasse
  • Energimerke
    Oransje B

På flyttefot? Tenk kjøp og salg samtidig.

Få din egen rådgiver gjennom hele kjøps- og salgsprosessen. Det starter med en verdivurdering.

Beskrivelse

Kort om eiendommen

Velkommen til Hartevassvegen 9
Vi har gleden av å presentere denne flotte fritidsboligen med god beliggenhet på Hovdens populære solside.
Meget sentralt plassert med gangavstand til alt, solrikt hele året gjennom, rett ved inngangsporten til den fantastiske austheia og skiløypa kjent som "markens"!
Her er alt gjennomtenkt ned til minste detalj og sydd sammen på en utrolig flott måte.
Gode og kvalitetsbevisste valg er gjennomgående for hele hytta.
Hytta passer meget fint til storfamilien/generasjonshytte eller til to familier som har hytten sammen.
Innholdsrik første etasje og en spesielt god andre etasje med god takhøyde!!
Innhold:
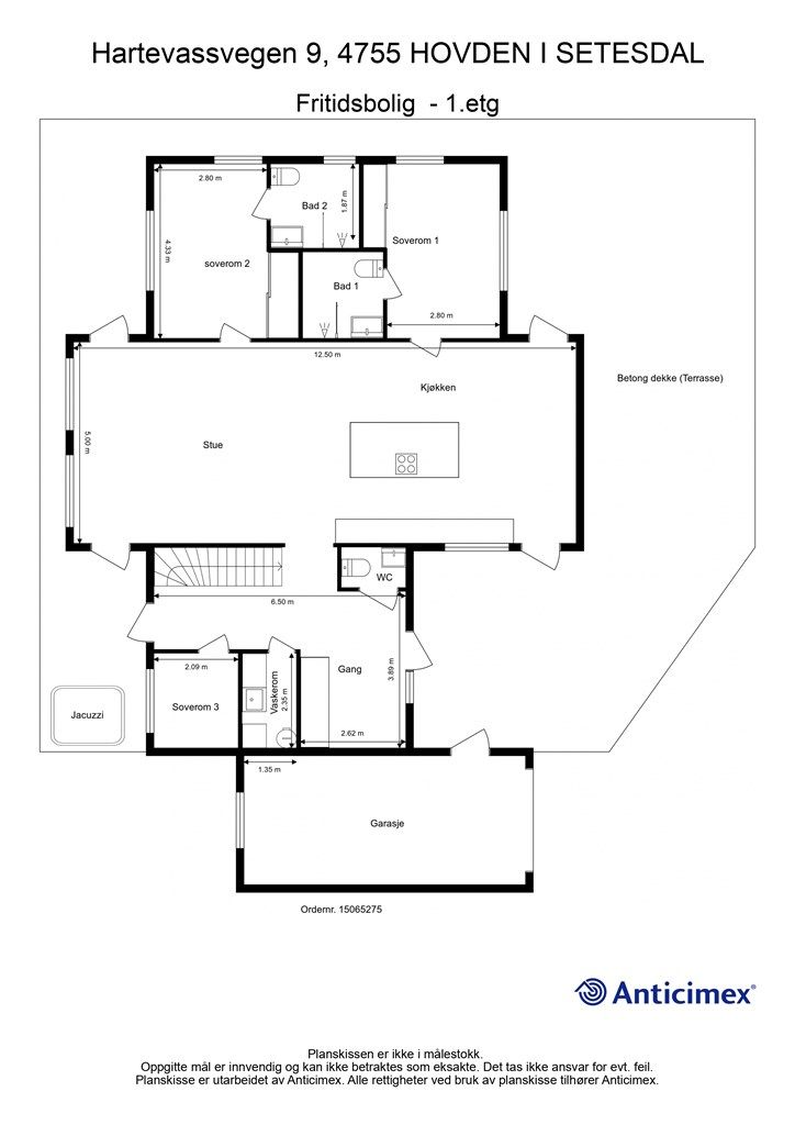
1. etg: Stue, kjøkken, 3 soverom, to bad, wc, vaskerom, gang og garasje. Samt terrasse på to sider.
2. etg: 3 soverom, stue, bad og tre boder.

Område

Legg til steder som er viktige for deg

Prisutvikling for området

Kvadratmeterpris
0 kr/m²
Endring
↘︎ % ()

På flyttefot? Tenk kjøp og salg samtidig.

Få din egen rådgiver gjennom hele kjøps- og salgsprosessen. Det starter med en verdivurdering.

Vil du varsles om lignende boliger?

Ved å lagre ditt boligsøk hos oss får du beskjed når vi har en bolig som ligner denne, før den legges ut på markedet!

På flyttefot? Slik gjør vi det enklere for deg

Skreddersydd flyttepakke

Vi fikser håndverkere, vask, pakking, lagring og transport, og legger ut for utgiftene underveis.

Hjelp med både kjøp og salg

Hos oss har du din egen rådgiver gjennom hele kjøps- og salgsprosessen.

Hjelp til finansiering

Vårt samarbeid med BN Bank sikrer deg rask og løsningsorientert hjelp, til konkurransedyktige betingelser.