Solgt

Hellemyr terrasse 49B

3 390 000 kr
135 m²
3 soverom
Krogsveen v/Azra Hadzic har gleden av å presentere Hellemyr Terrasse 49B - et innholdsrikt rekkehus med flott hage, nyere kjøkken og barnevennlig beliggenhet.
Krogsveen v/Azra Hadzic har gleden av å presentere Hellemyr Terrasse 49B - et innholdsrikt rekkehus med flott hage, nyere kjøkken og barnevennlig beliggenhet.
Kart
Del
Azra Hadzic
Presenteres av
Azra Hadzic
Hellemyr
Innholdsrikt og flott rekkehus m/barnevennlig beliggenhet - Nytt kjøkken 23 - Garasje - Hage m/gode solforhold - Peis

Unngå doble boligrenter

Vi tilbyr gunstig forsikring.
Sjekk estimert lånekostnad

    Pris

  • Prisantydning
    3 390 000 kr
  • Omkostninger
    105 740 kr
  • Totalpris
    3 495 740 kr

    Areal

  • BRUKSAREAL
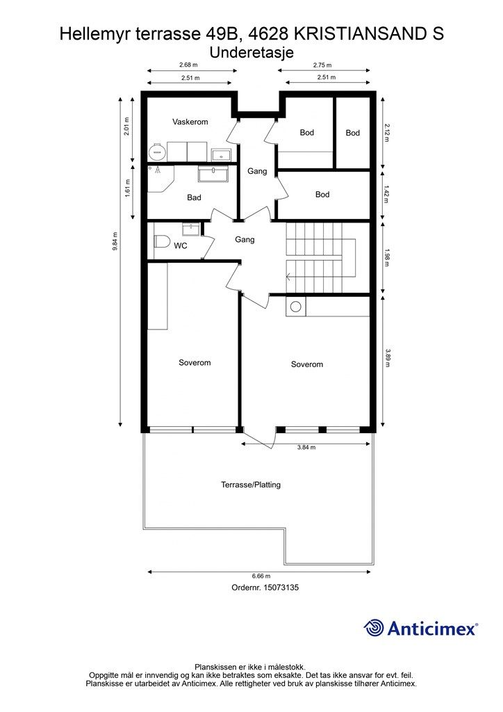
    156 m²
  • BRA-I (internt bruksareal)
    135 m²
  • BRA-E (eksternt bruksareal)
    21 m²
  • TBA (terrasse-balkongareal)
    29 m²

    Nøkkelinfo

  • Etasje
    2
  • Byggeår
    1976
  • Soverom
    3 soverom
  • Bad
    1 bad
  • Tomteareal
    163 m² (eiet)
  • Type
    Rekkehus
  • Eierform
    Eiet
  • Fasiliteter
    Garasje/P-plass og Balkong/Terrasse
  • Energimerke
    Gul D

På flyttefot? Tenk kjøp og salg samtidig.

Få din egen rådgiver gjennom hele kjøps- og salgsprosessen. Det starter med en verdivurdering.

Beskrivelse

Kort om eiendommen

Velkommen til Hellemyr Terrasse 49B - din neste bolig!
Boligen er gjennomgående, lys og innbydende med god planløsning og gode solforhold. Boligen byr på bl.a. tre soverom, romslig stue, separat kjøkken fra 2023, bad, separat toalettrom, vaskerom, godt med oppbevaringsplass, biloppstillingsplass og parkering i garasje. Boligen har også en meget pent opparbeidet hage med bl.a. platting og pen beplantning.
Kort vei fra boligen finner du bl.a. Hellemyr skole, barnehage, Macron Arena, bibliotek, og flere tur- og treningsmuligheter. Det er også bussforbindelse like ved med hyppige avganger, og kort kjøretur til Kvadraturen. Coop Extra er også i nærheten.
Dette er en bolig for deg som ønsker å bo i rolige og barnevennlige omgivelser med godt bomiljø og høy trivsel!
Velkommen til visning!

Område

Legg til steder som er viktige for deg

Prisutvikling for området

Kvadratmeterpris
0 kr/m²
Endring
↘︎ % ()

På flyttefot? Tenk kjøp og salg samtidig.

Få din egen rådgiver gjennom hele kjøps- og salgsprosessen. Det starter med en verdivurdering.

Vil du varsles om lignende boliger?

Ved å lagre ditt boligsøk hos oss får du beskjed når vi har en bolig som ligner denne, før den legges ut på markedet!

På flyttefot? Slik gjør vi det enklere for deg

Skreddersydd flyttepakke

Vi fikser håndverkere, vask, pakking, lagring og transport, og legger ut for utgiftene underveis.

Hjelp med både kjøp og salg

Hos oss har du din egen rådgiver gjennom hele kjøps- og salgsprosessen.

Hjelp til finansiering

Vårt samarbeid med BN Bank sikrer deg rask og løsningsorientert hjelp, til konkurransedyktige betingelser.