Komplett salgsoppgave

Sponstuveien 44

7 200 000 kr
184 m²
4 soverom
Velkommen til Sponstuveien 44 - en stor, solrik og arkitekttegnet tomannsbolig over 2 plan med 4 soverom og garasje beliggende i blindvei.
Velkommen til Sponstuveien 44 - en stor, solrik og arkitekttegnet tomannsbolig over 2 plan med 4 soverom og garasje beliggende i blindvei.
Kart
Redesign på Hjem.no
Del
Øvre Prinsdal
Stor, solrik og arkitekttegnet del av tomannsbolig over 2 plan | 4 soverom | Garasje | Blindvei

Unngå doble boligrenter

Vi tilbyr gunstig forsikring.
Sjekk estimert lånekostnad

    Pris

  • Prisantydning
    7 200 000 kr
  • Omkostninger
    191 040 kr
  • Totalpris
    7 391 040 kr

    Areal

  • BRUKSAREAL
    202 m²
  • BRA-I (internt bruksareal)
    184 m²
  • BRA-E (eksternt bruksareal)
    18 m²
  • TBA (terrasse-balkongareal)
    40 m²

    Nøkkelinfo

  • Byggeår
    1966
  • Soverom
    4 soverom
  • Bad
    1 bad
  • Type
    Halvpart vertikaldelt bolig
  • Eierform
    Eierseksjon
  • Fasiliteter
    Garasje/P-plass og Balkong/Terrasse
  • Energimerke
    Oransje F

Visning

Visning etter avtale. Ta kontakt med megler for å avtale privatvisning.
Ønsker du kun å bli holdt orientert, kan du fra eiendommens hjemmeside få varsel om solgtpris, eller kontakte megler.
Lurer du på noe?

Beskrivelse

Kort om eiendommen

Velkommen til Sponstuveien 44, en unik arkitekttegnet halvpart tomannsbolig med en flott planløsning over 2 plan. Eiendommen kombinerer en gjennomtenkt planløsning med en attraktiv og skjermet beliggenhet i fredelige omgivelser.
  • Innholdsrik bolig med familievennlig planløsning
  • Store solrike uteplasser
  • Meget god grunnflate
  • Peis i stue
  • 4 soverom
  • Masse lagringsplass
  • Separat vaskerom
  • Solrikt beliggende på en høyde
  • Noe utsikt mot vest
  • Garasje
  • Særdeles barnevennlig beliggenhet i blindvei
  • Kort vei til skole, friområder, kollektivtrafikk og servicetilbud Dette er en unik mulighet til å skape din drømmebolig!
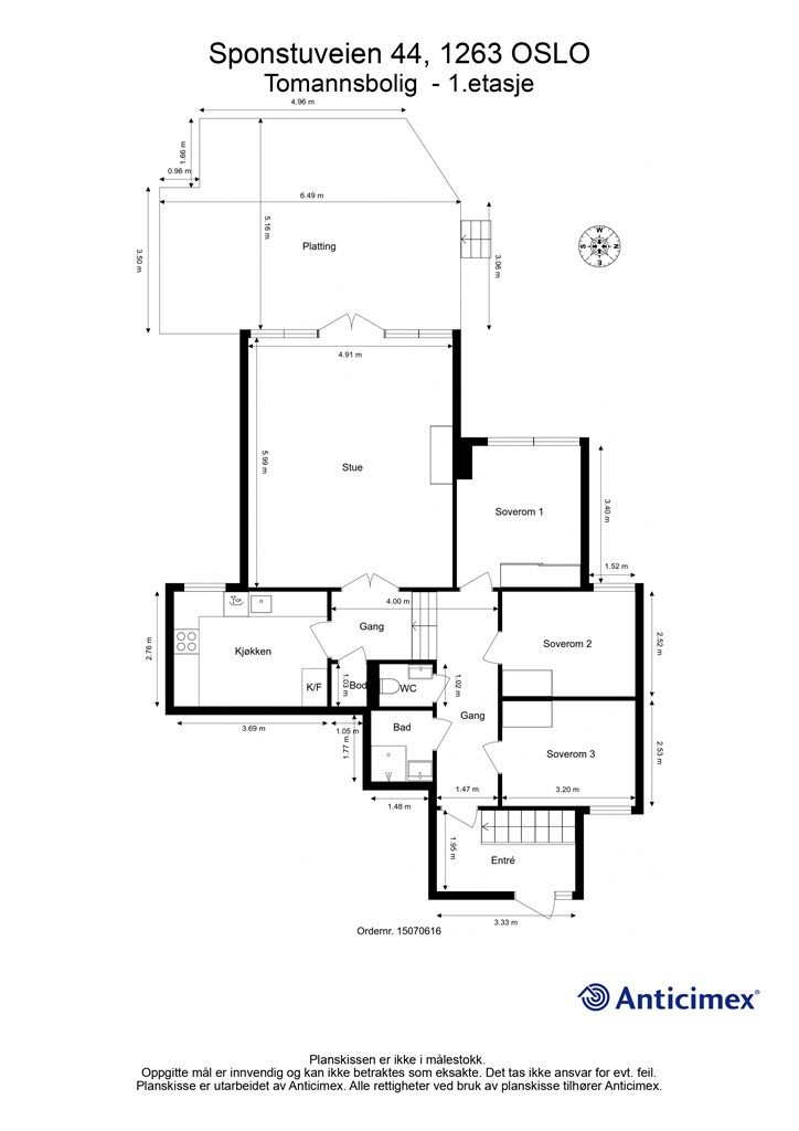
  • Innhold og byggemåte

    Eiendommen

    Sponstuveien 44, 1263 OSLO
    Kommunenummer 301, gårdsnummer 190, bruksnummer 184, seksjonsnummer 1, ideell andel 1/1

    Innhold

    Totalt bruksareal BRA: 202 kvm
    BRA-i:
    Kjeller 90 kvm:
    Trappegang, gang, vaskerom, toalettrom, ett soverom og fem innvendige boder.
    1. etasje 94 kvm:
    Entré, to ganger, bad, toalettrom, innvendig bod, tre soverom, kjøkken, stue med utgang til platting på 31 kvm.
    Åpent areal:
    1. etasje 40 kvm:
    Terrasse
    BRA-e:
    18 kvm:
    Garasje
    Vedlagte plantegninger er ikke målbare. De oppgitte arealer er hentet fra rapport med befaringsdato 04.06.2025 utført av Anticimex AS. Arealene er beregnet og rom er definert etter dagens faktiske bruk, uavhengig av hva som er godkjent av bygningsmyndighetene.

    Byggemåte

    Selger har fått utarbeidet en tilstandsrapport, dvs. en teknisk gjennomgang av boligen hvor eventuelle avvik, risiko for kjøper og prisoverslag for hva som bør gjøres av oppgradering, er skissert. Se særskilt TGIU (tilstandsgrad ikke undersøkt), samt TG2 og TG3 som viser hva som er boligens normale slitasje, alder og type, hva som er avvik fra dette og hva som bør/må utbedres. Rapporten og selgers egenerklæring er en del av salgsoppgaven og må leses nøye før bud inngis. Kjøper overtar ansvaret for de opplysninger som fremkommer av salgsdokumentasjonen, og kan ikke gjøre gjeldende som mangel noe som burde vært kjent eller som ikke kan anses å ha betydning for avtalen.  
    Halvpart av tomannsbolig fra 1966, over 2 plan. Bygningen er iht. tilstandsrapporten oppført med grunnmur i betong og etasjeskillere av siporexelementer. Yttervegger med murkonstruksjoner av teglstein og enkelte vegger med bindingsverk av trekonstruksjoner utvendig kledd med liggende trekledning. Flatt tak, tekket med membran/takpapp. Det er opplyst at taket er tekket om på begynnelsen av 2000-tallet. Profilert entrédør med sidefelt av glass fra 2010. Terrassedør med karmer av tre og 2-lags glass fra 2000. Vinduer med karmer av tre og 2-lags glass fra byggeår og 2006. Les for øvrig mer om byggemåte og den tekniske tilstanden i rapporten.
    Frittstående dobbelgarasje med boligens biloppstillingsplass på 18 kvm. Støpt gulv. Vegger med murkonstruksjoner. Tak av murkonstruksjoner tekket med membran/takpapp. Elektrisk garasjeport.
    Det gjøres oppmerksom på at boligen er oppført i 1966, og fremstår i dag med en velholdt, men stedvis eldre standard. På grunn av alder og tilstand må det etter hvert påregnes vedlikehold og oppgradering av boligens overflater, bygningsdeler og teknisk/elektrisk anlegg. I tilstandsrapporten har eiendommen utvendig og innvendig i stor grad fått TG2 som tilstandsgrad, som tilsier avvik grunnet alder, skjevheter, slitasje, skader og avvik fra dagens forskrifts krav. I tillegg er det gitt tilstandsgrad 3 råteskader på utvendig rekkverk. Selger opplyser at det tidligere er observert enkelte insekter i boligen, og etter grundig rengjøring er det ikke registrert ytterligere observasjoner.
    Det henvises til tilstandsrapporten for supplerende og utdypende informasjon og det oppfordres til å lese denne nøye, gjerne med fagkyndig. Kjøper overtar ansvar og risiko for dette.

    Standard

    Sponstuveien 44 har en solrik og flott beliggenhet inn en liten privat blindvei med kun få hus. Eiendommen ligger på en høyde med utsikt mot vest og nord. Et særdeles barnevennlig villaområde med kort vei til bl.a. skole, fritidsaktiviteter og store friområder. Det er også kort vei til kollektivtransport og servicetilbud.
    Boligen er godt tilpasset terrenget og omgivelsene, i frodige omgivelser med lite innsyn. En innholdsrik og romslig planløsning med en grunnflate på hele 94 kvm i første etasje – perfekt for deg som ønsker god plass og fleksible løsninger. Her får du en planløsning som er skreddersydd for familieliv. Boligen byr bla. på en adskilt soveromsavdeling som gir mulighet for skjermede soner, ideelt for familier med rom for både fellesskap og privatliv.
    Entré:
    Boligen har en funksjonell entré som gir god plass til oppbevaring av yttertøy og sko.
    Toalettrom:
    Separat gjestetoalett fra 2013. Flislagt gulv og flislagte vegger. Himling med malt flate. Vegghengt servantskap med glatt front. Nedsenket servant med ettgreps armatur. Vegghengt speilskap. Vegghengt toalett med innebygget sisternekasse. Vannrør av forkrommet kobber. Avløpsrør av plast. Avtrekksventil for mekanisk avtrekk er plassert i himling.
    Baderom:
    Baderom med flislagt gulv med varme og flislagte vegger. Det er utrustet med vegghengt servantskap med profilerte fronter, og nedsenket servant med ett-greps armatur. Vegghengt speil med overbelysning. Dusjhjørne med innfellbare glassdører og dusjarmatur tilkoblet hånddusj. Vannrør av kobber. Avløpsrør av plast og støpejern. Avtrekksventil for naturlig avtrekk er plassert på vegg. Legg merke til den fantastiske takhøyde på inntil 2.90 m med overlys vindu.
    Soverom:
    Boligen har fire gode soverom, hvorav tre ligger i 1. etasje. Alle soverommene ligger godt tilbaketrukket og skjermet fra øvrige oppholdsrom som kjøkken og stue. Rommene er utstyrt med garderobeskap og har plass til både seng og skrivebord – ideelt for både barn og voksne. Den gjennomtenkte plasseringen gjør det enkelt å skape en rolig atmosfære, samtidig som resten av boligen kan brukes til aktivitet og sosialt samvær – uten å forstyrre dem som ønsker å trekke seg tilbake.
    Stue/spisestue:
    Den kombinerte stuen og spisestuen fremstår som romslig og luftig, med en åpen utforming som gir en behagelig romfølelse. Her er det god plass til flere sittegrupper, og rommet kan enkelt deles inn i ulike soner. Det er god plass til å dekke til langbord – ideelt for hyggelige middager og større sammenkomster med familie og venner. Vinduene mot vest og terrassedørene slipper inn rikelig med dagslys og bidrar til en lys og innbydende atmosfære. Peisen gir varme og karakter til rommet, og skaper en lun stemning på kjølige dager. Fra stuen er det direkte utgang til en solrik terrasse på 31 kvm og hage som gjør det enkelt å forlenge oppholdsrommet utendørs – perfekt for både rolige hverdager og sosiale sammenkomster i grønne omgivelser. Fra hovedterrassen fører en trapp ned til en ekstra terrasse, som gir ytterligere uteplass og muligheter for avslapning.
    Kjøkken:
    Separat kjøkken som ligger i praktisk tilknytning til stue og spisestue. Kjøkkenet har innredning med profilerte fronter og benkeplater av laminat. Nedsenket oppvaskkum med ett-greps armatur. Flislagt mellom benkeplate og overskap ved oppvaskkum. Benkeskapsbelysning og stikkontakter under overskap. Kjøkkenet er utrustete med frittstående hvitevarer som inkluderer kjøleskap med frysedel, oppvaskmaskin og komfyr, samt integrert mikrobølgeovn - alle hvitevarer medfølger. Ventilator i overskap med mekanisk avtrekk. Vannrør av kobber. Avløpsrør av plast og støpejern. Komfyrvakt over platetopp.
    Ned trappen fra gangen i 1. etasje kommer du til kjelleren som har et areal på 90 kvm. Kjelleren består av trapperom, hele fem boder (hvorav en er tiltenkt som kjellerstue med peis), vaskerom med tilliggende toalettrom og soverom.
    Soverom:
    Et romslig og allsidig rom som i dag benyttes som soverom, men som med fordel også kan fungere som en koselig kjellerstue eller hobbyrom – alt etter behov.
    Vaskerom:
    Stort og praktisk vaskerom med vegghengt utslagsvask og opplegg for både vaskemaskin og tørketrommel. Rommet har vannrør i kobber og avløpsrør i plast og støpejern. Her finner du også hovedstoppekran, stakeluker og en OSO varmtvannsbereder på 190 liter fra 2025. En avtrekksventil for naturlig ventilasjon er plassert på vegg.
    Toalettrom:
    I tilknytning til vaskerommet ligger et separat toalettrom med flislagt gulv. Rommet er utstyrt med vegghengt servant med ettgreps armatur, speil og gulvstående toalett. Vannrør i kobber og avløpsrør i plast. En avløpspumpe er plassert bak toalettet, og det er installert mekanisk avtrekk via veggmontert ventil.
    Boder:
    Kjelleren rommer hele fem boder som gir svært gode og fleksible lagringsmuligheter.
    I tillegg medfølger det halvpart av dobbelgarasje hvorav denne boligens areal er på 18 kvm.
    Kort oppsummert:
    Sponstuveien 44 er en romslig og fleksibel bolig med en planløsning som egner seg godt for ulike livssituasjoner og behov. Boligen ligger i et etablert og rolig nabolag med kort gangavstand til skole, barnehage, kollektivtransport og daglige servicetilbud. Eiendommen fremstår som et praktisk og komfortabelt hjem for både familier og andre som ønsker en bolig med god plass og skjermet beliggenhet.
    Se tilstandsrapporten med befaringsdato 04.06.2025 og selgers egenerklæring for nærmere informasjon om boligens standard.

    Oppvarming

    Boligen er oppvarmet med luft-til-luft varmepumpe i stue og gang i 1. etasje. Varmekabler på bad, ellers panelovner. Dersom beboelsesrom ikke har vegg- eller fastmonterte varmekilder ved visning, følger dette heller ikke med. 

    Ferdigattest/brukstillatelse

    Det foreligger ferdigattest på eiendommen datert 02.06.1973 og for garasjen datert 12.09.1983. Det foreligger bruksendring fra bod til soverom i kjeller datert 16.05.2025. Disse kan fås ved henvendelse til megler. Pergola er ikke byggemeldt eller godkjent av kommunen.
    Det gjøres oppmerksom på at det ikke lenger utstedes ferdigattest på tiltak det er søkt om før 1998 jf. plan- og bygningsloven § 21-10. Kommunen vil ikke kreve ferdigattest for disse tiltakene og vil avvise eventuelle søknader. Bestemmelsen innebærer ikke at tiltak med manglende søknad blir lovlige, men at man ikke trenger å avslutte gamle byggesaker. Normalt sett kreves ferdigattest for alle søknadspliktige tiltak som gjøres etter plan- og bygningsloven. 

    Tinglyste heftelser og rettigheter

    Eiendommen overdras fri for pengeheftelser.
    Sameiet har legalpant for krav mot sameieren som følger av sameieforholdet iht. eierseksjonsloven § 31. Pantet er begrenset oppad til 2G, (G = folketrygdens grunnbeløp). 
    Det er tinglyst følgende servitutter på sameiets eiendom.
    Dagboknr 5846, tinglyst 23.07.1943:
    Dagboknr. 2367, tinglyst 24.02.1962:
    Melding skal sendes før det påbegynnes arbeid ved vann -og kloakkanlegget på eiendommen. Kommunen har rett til å inspisere eiendommens ledningsanlegg. Dersom kommunen krever det, skal eiendommen sløyfe det godkjente private renseanlegget for eiendommens spillvann, føre avløpet direkte til offentlig kloakk og betale den fastsatte avgift. Kommunen har ikke noe ansvar for private ledninger og eier er ansvarlig for skader på offentlig ledningsnett som følge av at avløpet inneholder skadelige væsker eller stoffer. Eier er ansvarlig for at taknedløp o.l. ikke tildekkes. Eier er ansvarlig for å holde eiendommens ledningsnett i forskriftsmessig stand.
    Dagboknr. 2368, tinglyst 24.02.1962:
    Eldre bestemmelser om tilkobling til vann og avløplesninger. Eiendommen er i dag koblet på disse ledningene, og der derfor ikke relevant i dag.
    Dagboknr. 2431, tinglyst 27.02.1962:
    Sponstuveien er regulert bredere. Dersom kommunen krever det skal eier av eiendommen være med på å opparbeide veien til regulert bredde for egen regning og vederlagsfritt avstå fra deler av egen grunn.
    Dagboknr. 2433, tinglyst 27.02.1962:
    Eldre bestemmelser om tilkobling til vann og avløplesninger. Eiendommen er i dag koblet på disse ledningene, og der derfor ikke relevant i dag.
    Dagboknr. 5707, tinglyst 14.05.1962:
    Eier av gnr. 190, bnr. 184/304/144 gir fremtidig utskilte parseller rett til å føre vann, overvann -og spillvannsledninger over hverandres parsell om nødvendig. De ledninger som anlegges i fellesskap, er eierne solidarisk ansvarlig å vedlikeholde i fellesskap. Kommunen har rett til når som helst å stenge eller forsegle felles hovedstoppekran dersom dette er nødvendig.
    Dagboknr. 14723, tinglyst 17.11.1962:
    Gammelt skjøte da tomten ikke var bebygd. Den opparbeidede fellesvei mellom gnr. 190, bnr. 184, og gnr. 190, bnr. 304 benyttes av begge eiendommer.
    Dagboknr. 666, tinglyst 27.05.1964:
    Dokumentet ble ikke funnet hos Statens Kartverk, men hefter i eiendommen.
    Dagboknr. 10170, tinglyst 11.08.1964:
    Eier av eiendommen gir kommunen tillatelse til å sette opp og ha stående en transformatorkiosk.
    Dagboknr. 9686, tinglyst 06.07.1966:
    Den opparbeidede fellesvei mellom gnr. 190, bnr. 184, og gnr. 190, bnr. 304 benyttes av begge eiendommer.
    Dagboknr. 48, tinglyst 04.01.1982:
    Rett for gnr. 190, bnr. 234 å bruke felles vei.
    Dagboknr. 30717, tinglyst 22.05.2003:
    Den opparbeidede, kjørbare vei er å betrakte som fellesareal og brukes av eierne til gnr. 190, bnr. 184, snr, 1 og 2 og gnr. 190, bnr. 304 og deres gjester. Vedlikehold av veien påligger alle tre eierne som har bruksrett, utgifter deles også på eierne i tre like deler. Veiens nåværende beliggenhet mellom forstøtningsmur og fjellknaus må ikke forandres da vann og avløp ligger her. Arealet innerst i veien må ikke innskrenkes. Her skal det være plass til tre parkerte bilder, 1 plass for hver av de tre eierne. Beboerne av gnr. 190, bnr. 144 bruker veien til gjennomgangsvei, deres vann og avløp ligger også sammen med vann og avløp til gnr. 190, bnr. 184, snr. 1 og 2, gnr. 190, bnr. 304. Så lenge eventuell gjennomgang ikke er til sjenanse for noen, er det ingen grunn til å nekte dette.
    Servituttene vil følge eiendommen. Kjøpers bank vil få prioritet etter ovennevnte heftelser og servitutter. 

    Eventuell adgang til utleie

    Eiendommen har ikke separat utleieenhet. Det vil normalt være anledning til utleie av hele eiendommen eller enkeltrom, såfremt utleiearealet er bygningsmessig godkjent for varig opphold og har forsvarlige radonnivåer. 

    Diverse

    Eiendommen inngår i et dødsbo hvor arvingene er selgere, og kjennskapen til eiendommens tilstand kan være mangelfull. Kjøper må derfor kunne påregne at det kan være flere feil og mangler som selger av dødsbo ikke har mulighet å vite. De blå hyllene i den største kjellerboden med peis, medfølger ikke.
    Vi er opptatt av verdiskapning, og har knyttet til oss samarbeidspartnere som skal sikre våre kunder de beste produkter og tjenester; 
    •    Gjensidige leverer boligselgerforsikring og tilbyr bygningsforsikring
    •    Boligkjøperforsikring leveres av Hiscox og med Sedgwick som skadebehandler, og er formidlet gjennom Gjensidige.
    •    BN bank tilbyr finansieringsløsninger
    •    Vår avdeling Krogsveen Pluss tilbyr flyttetjenester som utvask, visningsvask, lager, tømming og transport av flyttelass, i tillegg til å formidle kontakt med Flip for overflateoppussing.
    •    I forbindelse med overtagelse av eiendommen tilbyr Overo avtale om strøm, alarm og bredbånd.
    •    Krogsveen er, sammen med øvrige bransjeaktører, medeier i den digitale annonseringsplattformen Hjem.

    Beliggenhet og tomteforhold

    Beliggenhet

    Eiendommen ligger solrikt og flott til inn en liten blindvei, i et meget barnevennlig villaområde på Øvre Prinsdal. Et trafikkskjermet boligområde uten gjennomfartstrafikk. Huset ligger på en høyde, vestvendt og solrikt til med noe utsikt mot vest og nord. Få minutters gange til skole og flotte turområder, samt de fleste fritidsaktivitetene området har å by på for både liten og stor. Kort vei også til kollektivtransport og servicetilbud.
    I området finner man godt etablerte idrettsklubber som Hauketo Idrettsforening (med idrettsanlegg/hall med flere baner, også kunstgress), Prinsdal Tennisklubb, gård med hester og treningssenter. Turvei (Kongeveien) og lysløype i Grønliåsen som nær nabo. Også nærhet til en rekke utgangspunkter i Østmarka, med flotte turmuligheter sommer som vinter. Treningssenter ved Hauketo og golfbane ved Grønmo. Nærhet også til Oslofjorden med lokale badestrender som Ingierstrand og Hvervenbukta. Gangsti/sykkelvei til populære Hvervenbukta fra Hauketo. Kort avstand til Søndre Aas Gård som byr på varierte aktivitetsmuligheter samt rideskole.
    Kort vei til Prinsdal Torg som har et variert servicetilbud, samt til Europris og Rema 1000. Nærhet også til Kolbotn med alt av servicetilbud, butikker, samt Kolbotn Torg med ca. 60 ulike forretninger, caféer og restauranter. I Kolben kulturhus finnes kino, bibliotek, kulturskole for barn og konserthus. Tårnåsen senter ligger også i nærheten.
    En liten kjøretur unna finner man også Senter Syd på Mortensrud, Holmlia senter, Sæter Torg og Lambertseter senter som har et bredt utvalg av butikker, Vinmonopol, Symra kino, Deichmanske bibliotek og caféer med mer.
    Kort gangavstand til buss i Nedre Prinsdals vei, samt gangavstand til Hauketo togstasjon som er et knutepunkt for offentlig kommunikasjon. Her finner man tog, lokale busser, ekspressbuss, samt flybuss til Gardermoen. Toget bruker ca. 10 min. til Oslo S. Drive & park ved Hauketo togstasjon. (Se ruter.no for ytterligere informasjon).

    Adkomst

    Sponstuveien er en lite trafikkert vei som strekker seg fra Nedre Prinsdals vei og oppover/bortover høydedraget. Nr. 44 ligger nesten i enden av veien i en liten privat blindvei.

    Barnehager, skoler og fritid

    Flere barnehager i nærområdet.
    Kort og lite trafikkert skolevei til Prinsdal skole.
    Dersom skole- og barnehagetilbud er av betydning for kjøpet, ber vi om at det rettes en særskilt henvendelse til kommunen/bydelsadministrasjonen for oppdatert informasjon

    Beskrivelse av tomt

    Eiertomt på 1 040 kvm. Tomten er felles for begge seksjonene, og hver seksjon har vedtektsfestet bruksrett til tomten som ligger i naturlig tilknytning til boligen. Se utomhusplan. Tomten er pent opparbeidet med plenareal, stor terrasse, prydbusker, diverse beplantning, samt noe naturtomt. Sol på eiendommen fra morgen til kveld og flere soner for å etablere sittegrupper både på terrasse og i hage.

    Parkering

    1 garasjeplass i dobbeltgarasje (venstre side) som er bygget inn i terrenget. En felles parkeringsplass på tomten. Gateparkering etter områdets bestemmelser. 

    Vei, vann og avløp

    Denne delen av Sponstuveien er en privat vei med felles vedlikeholdsansvar.
    Eiendommen har adkomst via privat vei (gnr. 190, bnr. 304) med felles vedlikeholdsansvar.
    Eiendommen er tilknyttet kommunalt ledningsnett via private stikkledninger. Eier er selv ansvarlig for private stikkledninger til boligen.

    Regulerings-og arealplaner

    Eiendommen er regulert til boligformål i henhold til reguleringsplan S-4220 datert 15.03.2006 med tilhørende reguleringsbestemmelser. Bystyret har vedtatt en ny småhusplan, men den er ikke rettskraftig enda grunnet innsigelser fra Norges Vassdrags- og energidirektorat (NVE). Eiendommer omfattet av småhusplanen har derfor et gjeldende midlertidig forbud mot tiltak (MFT), med visse unntak. Søknader som er omfattet av unntakene i MFT tas fortsatt til behandling. Konferer megler for ytterligere informasjon.
    Byggesaker i området:
    Nedre Prinsdals vei 90 B - Oppføring av tilbygg og påbygg enebolig
    Høgåsveien 1 A - Oppføring av to kjedede eneboliger - Hus B
    Høgåsveien 1 A - Oppføring av enebolig - Hus C
    Utsnitt av plan med tilhørende bestemmelser kan fås ved henvendelse til megler.

    Økonomi

    Kommunale utgifter

    Kommunale avgifter er kr 24 027,- for inneværende år. I dette inngår gebyr for vann, avløp, renovasjon og feiing/tilsyn.
    Nåværende eier har et strømforbruk som tilsvarer ca. 15 000 kWh. pr. år. Boligen er tilknyttet Noegespris.
    Boligen har en årlig forsikringspremie på kr 12 600,-
    Seksjonen betaler kr 1 200,- pr. år for snømåking.
    Boligen er tilknyttet Telenor som leverandør av fibernett (1000 Mbit/s) og har avgift på kr 1 300,- pr. mnd. Tv-tuner/dekoder medfølger ikke.
    Boligen er tilknyttet Sikkerhetsgruppen alarmselskap som koster kr 5 700,- pr. år. Abonnement kan videreføres dersom ønskelig.
    Utgiftene er basert på nåværende eiers forbruk og avtaler.

    Formuesverdi

    Formuesverdi for 2023 var kr 1 307 620,- ifølge skatteetaten. Beløpet forutsetter at eier bor fast i boligen (primærbolig).
    Ved eventuell øvrig bruk av eiendommen (f.eks. fritidsbolig, pendlerbolig, utleieobjekt) var formuesverdien for 2023 kr 5 230 480,-.
    Formuesverdien justeres normalt årlig. Se skatteetaten.no for mer informasjon om fastsettelse av formuesverdien.

    Eiendomsskatt

    Det er per 2025 ikke registrert eiendomsskatt på eiendommen. Det må imidlertid påregnes at eiendomsskatt kan bli utløst i forbindelse med et salg. For 2025 har Oslo kommune fastsatt en skattesats på 2,35 promille, med et bunnfradrag på 4,7 millioner kroner. For nærmere informasjon om hvordan eiendomsskatten beregnes, inkludert fastsettelse av boligverdi, anbefales det å ta kontakt med Skattekontoret.

    Omkostninger

    7 200 000,00 Prisantydning
    Omkostninger
    180 000,00  Dokumentavgift til staten (2,5% av kjøpesum)
    9 950,00  Gjensidige Boligkjøperpakke (valgfri)
    545,00  Tinglysing panterettsdokument
    545,00  Tinglysing skjøte
    --------------------------------------------------------
    191 040,00 Omkostninger totalt
    --------------------------------------------------------
    7 391 040,00 Totalpris inkl. omkostninger
    --------------------------------------------------------
    Dersom sameiet har fellesgjeld, vil leilighetens andel av fellesgjelden komme i tillegg til kjøpesummen. Denne gjelden skal ikke innbetales i oppgjøret, men følger leiligheten.
    Totalpris inkl. omkostninger forutsetter kjøp til prisantydning.
    Det tas forbehold om endringer i avgifter og gebyrer. 

    Betalingsbetingelser

    Kjøpesum inkludert omkostninger, samt pantedokument tilknyttet eventuelt lån, skal være disponibelt hos megler 2 virkedager før overtagelsen.

    Annen viktig informasjon

    Eier

    Linn Singdahl-Larsen og Fredrik Singdahl-Larsen

    Informasjon om sameiet

    Eiendommen er seksjonert og er tilknyttet et sameie bestående av 2 seksjoner, med sameiebrøk 1/2.
    Sameiet har ikke forretningsfører, og det føres ikke regnskap eller budsjett. Dersom det mottas felles regninger til sameiet vil kostnader bli fordelt etter nærmere regler angitt av sameiet, vanligvis etter sameiebrøk eller vedtekter. Sameiet skal ha et styre, og styret består av begge seksjonseierne.
    Dyrehold er tillatt, men ikke være til sjenanse for de øvrige brukerne av eiendommen.
    Det praktiseres felles ansvar for snømåking av innkjørsel mellom de to seksjonene i sameiet.
    Hver seksjonseier er ansvarlig for vedlikehold av egen bygningsmasse, herunder både innvendige og utvendige konstruksjoner som tilhører seksjonen. Dette innebærer at det ikke foreligger felles vedlikeholdsplikt for bygningsdeler som tilhører den enkelte seksjon. Fellesarealer og tilhørende installasjoner vil forvaltes i henhold til vedtektene for sameiet.
    Kopi av seksjonsbegjæringen og vedtekter kan fås ved henvendelse til megler.

    Overtakelse

    Etter nærmere avtale.

    Boligselgerforsikring

    Selger har i forbindelse med salget tegnet Boligselgerforsikring levert av Gjensidige. Boligselgerforsikring dekker selgers ansvar etter avhendingsloven begrenset oppad til kr 14 millioner. Dersom kjøper oppdager forhold ved eiendommen som hen mener utgjør en mangel ved eiendommen, vil Gjensidige behandle reklamasjonen på vegne av selger. Forsikringsvilkår kan fås ved henvendelse til megler.  
    Vedlagt salgsoppgaven følger selgers egenerklæringsskjema og tilstandsrapport. Interessenter må sette seg inn i dokumentene før bud inngis. Egenerklæringen er fylt ut av arvingene iht deres kjennskap om eiendommen. Da de ikke har bebodd eiendommen kan kjennskapen være mangelfull.

    Boligkjøperforsikring

    Innen kontraktsmøtet må kjøper ta stilling til om det ønskes å bestille Boligkjøperpakken gjennom Gjensidige. I denne gunstige pakken er boligen ferdig forsikret og inkluderer rettshjelpsforsikring, også kalt Boligkjøperforsikring. Rettshjelpsforsikring gir trygghet og tilgang på profesjonell juridisk hjelp dersom det oppdages uventede feil eller mangler det første året etter overtagelse. Forsikringsselskapet behandler i så fall ethvert mangelskrav kjøper måtte ha overfor selger. 
    Boligkjøperpakken inkluderer bygningsforsikring for hus og hytte, innboforsikring, flytteforsikring og dobbel rentedekning - i situasjoner hvor kjøper ikke får solgt nåværende primærbolig.   
    Kjøper mottar ingen særskilt faktura for Boligkjøperpakken da kostnaden det første året legges til kjøpesummen for boligen. Det gjøres oppmerksom på Krogsveen mottar et honorar for denne formidlingen.
    Produktark for Boligkjøperpakken ligger vedlagt i salgsoppgaven.  
    Dersom ikke boligkjøperpakke ønskes kan kun rettshjelpsforsikring, også kalt boligkjøperforsikring, tegnes særskilt via megler. Rettshjelpsforsikringen varer i 5 år fra overtagelse og leveres gjennom Gjensidige. Ta kontakt med megler for ytterligere informasjon. 
    Selskap og privatpersoner som driver med kjøp/salg/utvikling som ledd i egen næringsvirksomhet kan ikke tegne boligkjøperpakke eller rettshjelpsforsikring. 

    Budgivning

    Forbrukerinformasjon om budgivning er vedlagt denne salgsoppgaven og er også på vår hjemmeside Krogsveen.no. Alle bud og budforhøyelser må inngis skriftlig. I tillegg må legitimasjon være fremlagt sammen med signatur fra budgiver.
    Vi oppfordrer til å gi bud elektronisk via GI BUD-knappen på eiendommens hjemmeside på Krogsveen.no. Da vil samtlige vilkår bli oppfylt.  
    Eventuelle forhøyelser eller endringer av budet kan bekreftes pr SMS eller på e-post. Vi oppfordrer alltid til å kontakte megler pr. telefon i tillegg da forsinkelser i SMS og e-post kan forekomme.
    For at budene skal kunne bli behandlet og videreformidlet skriftlig til alle involverte parter, må alle bud ha en tilstrekkelig lang akseptfrist, jf. eiendomsmeglingsforskriften § 6-3.
    Selger må også skriftlig akseptere budet før aksept kan formidles til budgiver. Akseptfrist bør derfor være på minimum 30 minutter, og budforhøyelser må derfor skje i god tid før fristens utløp.
    Bud i forbrukerforhold kan uansett ikke settes med kortere frist enn kl. 12.00 første virkedag etter siste annonserte visning. I tillegg kan ikke budet ha forbehold om at det skal holdes hemmelig ovenfor øvrige interessenter. Megler har iht lov om eiendomsmegling ikke anledning til å videreformidle disse budene, og de vil dermed heller ikke bli journalført.
    Etter at eiendommen er solgt vil kjøper og selger få tilsendt budjournal. Øvrige budgivere kan få utlevert kopi av budjournalen i anonymisert form.

    Hvitvaskingsreglene

    I henhold til lov om hvitvasking og terrorfinansiering har megler plikt til å gjennomføre kontrolltiltak overfor kunder, herunder fullmektiger. Dette innebærer bl.a. å bekrefte kunders og reelle rettighetshaveres identitet på bakgrunn av fremvist gyldig legitimasjon eller på annen godkjent måte, samt å innhente opplysninger om kundeforholdets formål og tilsiktede art.
    Dersom slike kundetiltak ikke kan gjennomføres, kan megler ikke etablere kundeforholdet eller utføre transaksjonen.
    Hvis kjøper ikke bidrar til gjennomføring av kundekontrollen og dette fører til at transaksjonen blir forsinket eller ikke kan gjennomføres, vil dette ansees som mislighold av avtalen og gi selger rettigheter etter avhendingslova kapittel 5. I tilfeller der selger ikke bidrar til gjennomføring av løpende kundekontroll underveis i oppdraget, er det selger som misligholder sine forpliktelser etter avtalen og gi kjøper rettigheter etter avhendingslovens kapittel 4. Partene er selv ansvarlige for eventuelle kostnader og ansvar dette kan medføre. Eiendomsmegleren eller eiendomsmeglingsforetaket kan ikke holdes ansvarlig for de konsekvenser dette vil kunne få for partene eller andre som har interesser i eiendomshandelen.
    Kjøper oppfordres til å innbetale kjøpesummen som ikke kommer fra låneinstitusjon i én samlet innbetaling fra egen konto i norsk bank. Megler har plikt til å melde fra til Økokrim om eiendomshandler som fremstår som mistenkelige. Melding sendes Økokrim uten at partene varsles. 

    Personopplysningsloven

    I henhold til personopplysningsloven gjør vi oppmerksom på at interessenter kan bli registrert for videre oppfølging.

    Lovanvendelse

    Generelle bestemmelser
    Salgsoppgaven er basert på de opplysningene selger har gitt til megler, den bygningssakyndiges tilstandsrapport, samt opplysninger innhentet fra kommunen, Kartverket og andre tilgjengelige kilder. Det er viktig at kjøper setter seg grundig inn i alle salgsdokumentene, herunder salgsoppgave, tilstandsrapport og selgers egenerklæring. Kjøper anses kjent med forhold som er tydelig beskrevet i salgsdokumentene, og slike forhold kan ikke påberopes som mangler. Dette gjelder uavhengig av om kjøper har lest dokumentene. Alle interessenter oppfordres til å undersøke eiendommen nøye, gjerne sammen med fagkyndig før bud inngis. Kjøper som velger å kjøpe usett kan ikke gjøre gjeldende som mangel noe han burde blitt kjent med ved undersøkelsen. 
    Dersom det er behov for avklaringer, anbefaler vi at interessenter rådfører seg med eiendomsmegler eller egne rådgivere før det legges inn bud.
    En bolig som har blitt brukt i en viss tid, har vanligvis blitt utsatt for slitasje og skader kan ha oppstått. Slik bruksslitasje må kjøper regne med, og det kan avdekkes enkelte forhold etter overtakelse som nødvendiggjør utbedringer. Normal slitasje og skader som nødvendiggjør utbedring, er innenfor hva kjøper må forvente og vil ikke utgjøre en mangel.
    Kjøper og selgers rettigheter og plikter reguleres av avtalen mellom partene, samt informasjonen som har vært tilgjengelig for kjøperen i forbindelse med handelen. Avtalen utfylles av avhendingsloven, og det gjelder ulike avtalevilkår avhengig av om kjøper er forbrukerkjøper eller ikke.  Dette er nærmere beskrevet nedenfor. 
    På grunn av ulike avtalevilkår kan selger vurdere bud fra en som ikke er forbruker, ulikt fra en forbrukers bud. Dersom kjøper ikke er forbruker, er selger sitt mulige mangelsansvar begrenset fordi eiendommen selges "som den er".  Selger kan ikke ta «som den er»- forbehold overfor en forbrukerkjøper. Selv et lavere bud fra en som ikke er forbruker kan foretrekkes fordi begrensningen i mulig mangelsansvar kan ha egenverdi for selger. Selger står fritt til å forkaste eller akseptere ethvert bud, og er for eksempel ikke forpliktet til å akseptere høyeste bud.
    Budgiver skal i budskjema avgi egenerklæring om budgiver er forbruker eller næringsdrivende/ person som hovedsakelig handler som ledd i næringsvirksomhet. Budgivere får informasjon dersom andre bud er inngitt av en som ikke er forbruker. 
    Forbrukerkjøp - definisjon
    Med forbrukerkjøp menes kjøp av eiendom når kjøperen er en fysisk person som ikke hovedsakelig handler som ledd i næringsvirksomhet.
    Forbruker – avtalevilkår
    Eiendommen har en mangel dersom den ikke er i samsvar med kravene som følger av avtalen, eller det foreligger brudd på bestemmelsene i avhendingsloven §§ 3-2 til 3-8. Hvis eiendommen ikke er i samsvar med det kjøperen må kunne forvente ut ifra alder, type og synlig tilstand, kan det være grunnlag for mangelskrav. Det samme gjelder hvis det er holdt tilbake eller gitt uriktige opplysninger om eiendommen. Dette gjelder likevel bare dersom man kan gå ut ifra at det virket inn på avtalen at opplysningen ikke ble gitt eller at mangelskravet ikke blir rettet i tide på en tydelig måte.
    Boligen kan ha en mangel etter avhendingsloven § 3-3 andre ledd, dersom det er avvik mellom opplyst og faktisk innvendig areal, forutsatt at avviket er på 2% eller mer og minimum 1 kvm.
    Ved beregning av et eventuelt prisavslag eller erstatning må kjøper selv dekke tap/kostnader opptil et beløp på kr 10 000 (egenandel).
    Ikke-forbruker (næringsdrivende) – definisjon 
    Hvis kjøper er en juridisk person, eller en fysisk person som hovedsakelig handler som ledd i næringsvirksomhet, vil kjøpet ikke anses som et forbrukerkjøp. 
    Ikke-forbruker – avtalevilkår
    Eiendommen har en mangel dersom den ikke er i samsvar med kravene som følger av avtalen.
    Eiendommen selges «som den er», og selgers ansvar utover det konkret avtalte er da begrenset etter avhendingsloven § 3-9, første ledd andre setning. 
    Avhendingsloven § 3-3 andre ledd fravikes, og hvorvidt boligens arealsvikt utgjør en mangel vurderes etter avhendingsloven § 3-8. 
    Informasjon om kjøpers undersøkelsesplikt, herunder oppfordringen om å undersøke eiendommen nøye, gjelder også for kjøpere som ikke anses som forbrukere.
    Det forutsettes at hjemmel overføres til kjøper. Hvis kjøper ikke ønsker hjemmelsoverføring av eiendommen, må det tas forbehold om dette i budet.

    Meglers vederlag

    Meglers vederlag betales av selger og er avtalt til:
    Vederlag: 0,8 av salgssummen.
    Tilrettelegging fra kr 17.000,-
    Oppgjør: kr 7.500,-
    Markedspakke: kr 29.900,-
    Visninger: kr 4.000,- pr. visning
    Oppslag eiendomsregister: kr 2.900,-
    Megler har i tillegg krav på dekning av følgende utlegg:
    Innhenting av kommunale avgifter kr 265,- , innhenting av reguleringskart med bestemmelser kr 1 045,- , tinglysing sikring kr 545,- , boligselgerforsikring kr 41.500,-, foto kr 8.800,-

    Opplysninger om oppdraget

    Oppdragsnummer 44-0095/25
    Eiendomsmegler Krogsveen AS, avd. Nordstrand
    Ekebergveien 228 B, 1162, OSLO
    950 007 613
    Oppdragets KR-kode KR44.2595

    Dato

    Sist oppdatert: 12. desember 2025 kl. 09:06

    Dokumenter

    Utskriftsvennlig salgsoppgave

    Område

    Legg til steder som er viktige for deg

    Prisutvikling for området

    Kvadratmeterpris
    0 kr/m²
    Endring
    ↘︎ % ()

    Visning

    Visning etter avtale. Ta kontakt med megler for å avtale privatvisning.
    Ønsker du kun å bli holdt orientert, kan du fra eiendommens hjemmeside få varsel om solgtpris, eller kontakte megler.
    Lurer du på noe?

    Vil du varsles om lignende boliger?

    Ved å lagre ditt boligsøk hos oss får du beskjed når vi har en bolig som ligner denne, før den legges ut på markedet!

    På flyttefot? Slik gjør vi det enklere for deg

    Skreddersydd flyttepakke

    Vi fikser håndverkere, vask, pakking, lagring og transport, og legger ut for utgiftene underveis.

    Hjelp med både kjøp og salg

    Hos oss har du din egen rådgiver gjennom hele kjøps- og salgsprosessen.

    Hjelp til finansiering

    Vårt samarbeid med BN Bank sikrer deg rask og løsningsorientert hjelp, til konkurransedyktige betingelser.