Komplett salgsoppgave

Ruglsjølia 16 og 18

1 650 000 kr
90 m²
1 soverom
Velkommen til Ruglsjølia 16 og 18, og denne flotte hytta beliggende i rolige og idylliske omgivelser på Glåmos/Røros! 
Foto: Oscar Stoltenberg
Velkommen til Ruglsjølia 16 og 18, og denne flotte hytta beliggende i rolige og idylliske omgivelser på Glåmos/Røros! 
Foto: Oscar Stoltenberg
Kart
Redesign på Hjem.no
Del
Rugldalen/Røros
Innholdsrik og flott hytte i naturskjønne omgivelser | Stor terrasse | Sommervann | Bilvei helt frem | Innlagt strøm
Sjekk estimert lånekostnad

    Pris

  • Prisantydning
    1 650 000 kr
  • Omkostninger
    62 240 kr
  • Totalpris
    1 712 240 kr

    Areal

  • BRUKSAREAL
    90 m²
  • BRA-I (internt bruksareal)
    90 m²
  • TBA (terrasse-balkongareal)
    37 m²

    Nøkkelinfo

  • Etasje
    1
  • Byggeår
    1972
  • Soverom
    1 soverom
  • Tomteareal
    1 624 m² (eiet)
  • Type
    Fritidseiendom på fjellet
  • Eierform
    Eiet
  • Fasiliteter
    Balkong/Terrasse
  • Årlig velavgift
    5 000 kr
  • Energimerke
    Oransje G

Visning

Ta kontakt med megler for avtale om privatvisning.
Ønsker du kun å bli holdt orientert, kan du fra eiendommens hjemmeside få varsel om solgtpris, eller kontakte megler.
Lurer du på noe?

Beskrivelse

Kort om eiendommen

Velkommen til Ruglsjølia 16 og 18, og denne flotte hytta beliggende i rolige og idylliske omgivelser på Rugldalen/Røros! Her bor du med kort vei til blant annet preparerte skiløyper, flotte fjellturer, badevann og et rikt kulturliv.
Verdt å nevne:
- Pent opparbeidet naturtomt på hele 1,6 mål.
- God planløsning med smarte løsninger og godt med gjennomlys.
- Tilbaketrukket kjøkken med rikelig skap- og benkeplass.
- Romslig stue med god plass til både sofagruppe og spisegruppe.
- Terrasse med fantastiske solforhold og en nydelig utsikt.
- Bilvei helt frem og rikelig med parkeringsplasser på egen tomt.
- Sommervann til kran på terrassevegg og brønn på vinteren.
- Innlagt strøm og innebygd utedo i forbindelse med bod.
- Kort vei til Røros og en rekke sommer- og vinteraktiviteter.

Innhold og byggemåte

Eiendommen

Ruglsjølia 16 og 18, 7372 GLÅMOS
Kommunenummer 5025, gårdsnummer 8, bruksnummer 12, ideell andel 1/1

Innhold

Totalt
BRA: 90 kvm
BRA-i: 90 kvm
BRA-e: 0 kvm
TBA: 37 kvm
1. etasje
BRA: 90 kvm
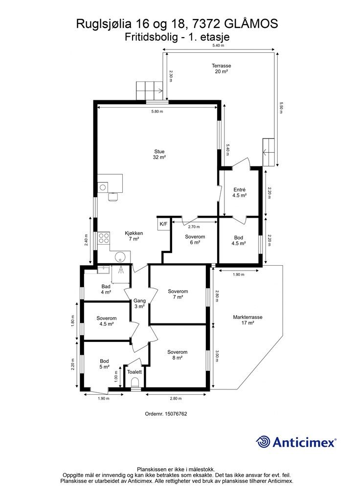
BRA-i: 90 kvm. Entré, gang, to boder, fire soverom, bad, toalettrom, stue og kjøkken.
BRA-e: 0 kvm
TBA: 37 kvm
Vedlagte plantegninger er ikke målbare. De oppgitte arealer er hentet fra rapport med befaringsdato utført av . Arealene er beregnet og rom er definert etter dagens faktiske bruk, uavhengig av hva som er godkjent av bygningsmyndighetene.

Byggemåte

Selger har fått utarbeidet en tilstandsrapport, dvs. en teknisk gjennomgang av boligen hvor eventuelle avvik, risiko for kjøper og prisoverslag for hva som bør gjøres av oppgradering, er skissert. Se særskilt TGIU (tilstandsgrad ikke undersøkt), samt TG2. Rapporten og selgers egenerklæring er en del av salgsoppgaven og må leses nøye før bud inngis. Kjøper overtar ansvaret for de opplysninger som fremkommer av salgsdokumentasjonen, og kan ikke gjøre gjeldende som mangel noe som burde vært kjent eller som ikke kan anses å ha betydning for avtalen.  
Bygningen er iht. tilstandsrapporten oppført i 1972 med tilbygg fra 1993. Pilarer av betong. Åpent kryprom under boligen. Yttervegger av trekonstruksjoner. Fasaden er kledd med liggende trekledning. Etasjeskillere av trekonstruksjoner. Saltak i trekonstruksjoner. Yttertak er utvendig tekket med shingel. Vinduer med karmer av tre, og koblett glass. Les for øvrig mer om byggemåte og den tekniske tilstanden i rapporten.

Standard

71% har fått TG 1: I orden
16% har fått TG 2: Alder, slitasje, skader mv.
0% har fått TG 3: Strakstiltak nødvendig
13% har fått TGIU: Ikke undersøkt
Rapporten fra takstmann er en teknisk gjennomgang av boligen og angir eventuelle byggetekniske avvik. Sammendraget under beskriver avvik ved boligen som har fått tilstandsgrad TG2 og TGIU.
Tilstandsgrad 2:
- Bad pga. at badet oppfyller ikke dagens krav til våtrom. Det mangler tettesjikt på vegger, samt tilfredsstillende slukløsning og fall på gulvet. Det vurderes ikke som nødvendig å utføre tiltak nå, men forsiktig bruk og videre bruk av dusjkabinett må påregnes. Tilstandsgrad 2 er satt for å understreke behovet for varsom bruk og betydningen av å benytte dusjkabinett.
- Ventilasjon og avtrekk på kjøkken pga. at det ikke er montert kjøkkenventilator, noe som påvirker ventilasjonen negativt. Utilstrekkelig ventilasjon kan medføre økt fuktbelastning.
- Skjevhetsmåling pga. skjevheter i stue.
- Boddør pga. tegn til slitasje og begynnende råte i nedre del. Restlevetid er usikker.
- Yttertak pga. alder. Det ble registrert tegn til slitasje og elde, samt enkelte løse shingelplater på de delene av taket som lot seg visuelt besiktige.
- Terrasse ved inngansparti pga. at det registreres skjevheter på en av pilarene som bærer balkongen. Årsaken er ukjent. Tiltak for oppretting anbefales.
- Terrengfall fra grunnmur pga. at terrenget rundt har stedvis fall mot bygget. Forholdet kan være med å øke fuktbelastningen på søyler/pilarer. Tiltak bør iverksettes ved behov.
Tilstandsgrad IU:
- Annet på øvrige rom: Deler av etasjen har skråtak som i praksis er en lukket konstruksjon, og det er ikke kjent hvordan oppbyggingen er utført.
- Kontroll av diffusjonssperre på loft: Dampsperren ble ikke kontrollert grunnet redusert tilkomstmulighet. Ytterligere undersøkelser anbefales.
- Inspeksjonsmulighet på loft: Kaldtloftet ble kun inspisert fra luken grunnet lav romhøyde/redusert tilkomstmulighet, med den begrensning dette innebærer.
- Byggegrunn: Byggegrunnens oppbygning er ukjent.
Tilstandsrapporten og selgers egenerklæring følger vedlagt i salgsoppgaven. Interessenter må sette seg inn i dokumentene før bud inngis.

Løsøre og tilbehør

Vi viser til liste fra Norges Eiendomsmeglerforbund som gjelder fra 01.01.2020 angående løsøre og tilbehør.
Dette medfølger boligen i følge selger:
- Alle hvitevarer.
- Alle senger.
- Sofagruppe.
- Spisegruppe.
Enkelte inventar kan medfølge etter avtale med selger. Eldre fastmontert telefon medfølger ikke.

Oppvarming

Peisovn i stue. Øvrig oppvarming med elektrisitet.

Ferdigattest/brukstillatelse

Eiendommen har vært brukt til fritidsformål siden 1972. Kommunen opplyser at det ikke foreligger ferdigattest eller midlertidig brukstillatelse for eiendommen.
Det foreligger derimot:
- Tegninger for gammel del datert 07.06.1972.
Det foreligger ikke opprinnelige tegninger for bad, bod, toalettrom og tre soverom i nyere del. Det finnes av den grunn ikke dokumentasjon over bygningsdelens lovlighet. Kjøper overtar alt ansvar, eventuell kostnad og risiko forbundet med dette.
Dagens tegninger avviker fra opprinnelige tegninger:
- Kjøkkenet er opprinnelig byggemeldt som to soverom.
- Terrassen er utvidet og markterrassen er oppført i senere tid sammenliknet med opprinnelige tegninger. Dette er i utgangspunktet ikke søknadspliktige tiltak, såfremt terrassene er plassert inntil en meter fra nabogrense og annen bygning på eiendommen samt at det er innenfor utnyttelsesgraden på eiendommen.
Kjøper overtar eiendommen slik den fremstår på visning med risiko og ansvaret for eventuelle pålegg fra kommunen og kostnader forbundet med dette.

Tinglyste heftelser og rettigheter

Eiendommen overdras fri for pengeheftelser.
Det er ingen tinglyste servitutter på eiendommen. 
Eiendommen har tinglyst rett til bruk av parkeringsplass ved riksveien samt rett til adkomst til sin tomt og uttak av vann fra oppkom på gnr. 8, bnr. 6 i Røros Kommune.

Eventuell adgang til utleie

Fritidseiendommen har ikke separat utleiedel. Det vil normalt være anledning til utleie av hele eiendommen eller enkeltrom, såfremt utleiearealet er bygningsmessig godkjent for varig opphold.

Beliggenhet og tomteforhold

Beliggenhet

Opplev den ekte Rørosfølelsen på Ruglsjølia 16 og 18 – en sjarmerende og lun hytte med flott beliggenhet i naturskjønne omgivelser, kun en kort kjøretur fra Røros sentrum. Her kan du senke skuldrene, finne roen og nyte frisk fjelluft året rundt.
Hytta ligger i et stille og fredelig område omgitt av snødekte vidder, furuskog og glimrende turterreng. Her får du ekte hytteliv – enten du foretrekker lange skiturer i preparerte løyper, isfiske og bålkos om vinteren, eller fjellturer, bading i Ruglsjøen og sene kvelder på terrassen om sommeren.
Røros er kjent for sitt unike miljø og levende kulturarv. I vinterferien våkner hele bergstaden til liv under Rørosmartnan, en tradisjon som har blitt feiret siden 1854. Da fylles gatene av folk, handelsboder, hest og slede og en helt spesiell atmosfære du bare finner her. Når desember nærmer seg, forvandles byen igjen – med julemarkedet i Røros, kåret til et av de mest stemningsfulle i hele Norden, hvor du kan rusle blant boder, dufte av granbar og gløgg, og oppleve ekte julestemning i historiske omgivelser.
Fra hytta har du kort vei til Røros sentrum, hvor du finner et rikt utvalg av restauranter, bakerier og små butikker – mange med lokale produkter og håndverk. Her kan du nyte alt fra en kopp kakao på Kaffestuggu til en bedre middag på Vertshuset Røros eller Bergstadens Hotell. Videre finner man aktiviteter som hundekjøring, gruveomvisning, golf og bowling innen en 20 minutters kjøretur fra hytta.
Ruglsjølia 18 gir deg den perfekte kombinasjonen av fredelig beliggenhet og nærhet til et levende lokalsamfunn. Enten du søker stillhet og rekreasjon, eller ønsker å ta del i kulturlivet og arrangementene som gjør Røros så unikt, er dette et sted du vil trives – hele året.

Adkomst

Se Google maps - det er enkelt å finne frem i kartet.
Link: https://maps.app.goo.gl/3BKp2DR3KpHFcVp89

Beskrivelse av tomt

Eiertomt på 1.624 kvm. Naturtomt opparbeidet med biloppstillingsplass.

Parkering

Det er rikelig med biloppstillingsplasser på tomten. Det er også mulig å benytte seg av parkeringsplasser ved felles innkjørsel fra fylkesvei.

Vei, vann og avløp

Eiendommen har adkomst via privat vei med felles vedlikeholdsansvar.
Eiendommen er tilknyttet sommervann via nærliggende tjønn. Eier er selv ansvarlig for private stikkledninger til boligen.

Regulerings-og arealplaner

Eiendommen ligger i et uregulert område, men er i kommuneplanens arealdel 2019-2029 avsatt til fritidsbebyggelse.
Ruglsjølia 19 har fått godkjenning fra kommunen til oppføring av hytte.
Utsnitt av plan med tilhørende bestemmelser kan fås ved henvendelse til megler.

Økonomi

Kommunale utgifter

Kommunale avgifter er kr 5.633,7,- for inneværende år. Dette er en prognose fra Røros kommune basert på fjorårets forbruk. I dette inngår gebyr for eiendomsskatt, feiing og hytterenovasjon. Fakturert beløp for 2024 var på kr 5.457,82,-. Kommunale avgifter for Røros Kommune er fordelt på fire terminer med forfall i februar, mai, august og november. Kommunale avgifter og gebyrer kan avvike fra en termin til en annen.
Eiendommen har innebygd utedo. Sommervann til kran på terrasseveggen hentes fra en tjønn på sommeren. Om vinteren benyttes nærliggende brønn.
Nåværende eier har et strømforbruk som tilsvarer ca. kr 1.236,- per år (ekskludert nettleie). 
Boligen har en årlig forsikringspremie på kr 3.156,-.
Velavgift er kr 5.000,- per år.
Utgiftene er basert på nåværende eiers forbruk og avtaler.

Formuesverdi

Formuesverdi for 2023 var kr 216.218,- ifølge skatteetaten.

Omkostninger

1 650 000,00 Prisantydning
Omkostninger
41 250,00  Dokumentavgift til staten (2,5% av kjøpesum)
19 900,00  Gjensidige Boligkjøperpakke (valgfri)
545,00  Tinglysing panterettsdokument
545,00  Tinglysing skjøte
--------------------------------------------------------
62 240,00 Omkostninger totalt
--------------------------------------------------------
1 712 240,00 Totalpris inkl. omkostninger
--------------------------------------------------------
Totalpris inkl. omkostninger forutsetter kjøp til prisantydning. Det tas forbehold om endringer i avgifter og gebyrer.

Betalingsbetingelser

Kjøpesum inkludert omkostninger, samt pantedokument tilknyttet eventuelt lån, skal være disponibelt hos megler 2 virkedager før overtagelsen.

Annen viktig informasjon

Eier

Stian Tellugen

Konsesjon

Eiendommen er ikke konsesjonspliktig, men det er boplikt i Røros kommune. For at eiendommen skal kunne overskjøtes må kjøper signere på egenerklæring om konsesjonsfrihet om at boplikten ikke gjelder for denne eiendommen.

Overtakelse

Etter nærmere avtale.

Velforening

Boligen er tilknyttet Ruglsjølia veilag med en årlig velavgift på kr 5.000,- med forfall 1. april hvert år.
Veilagets funksjon er drift og vedlikehold av veiene i feltet. Per definisjon gjelder dette frem til tomtegrenser, men av praktiske grunner blir det også utført brøyting av den enkeltes innkjøring/biloppstillingsplass.

Boligselgerforsikring

Selger har i forbindelse med salget tegnet boligselgerforsikring levert av Gjensidige.  
Boligselgerforsikringen dekker selgers ansvar etter avhendingsloven begrenset oppad til kr 14 millioner. Dersom kjøper oppdager forhold ved eiendommen som hen mener utgjør en mangel ved eiendommen, vil Gjensidige behandle reklamasjonen på vegne av selger. Forsikringsvilkår kan fås ved henvendelse til megler.  
Vedlagt salgsoppgaven følger selgers egenerklæringsskjema og tilstandsrapport. Interessenter må sette seg inn i dokumentene før bud inngis. 

Boligkjøperforsikring

Innen kontraktsmøtet må kjøper ta stilling til om det ønskes å bestille Boligkjøperpakken gjennom Gjensidige. I denne gunstige pakken er boligen ferdig forsikret og inkluderer rettshjelpsforsikring, også kalt Boligkjøperforsikring. Rettshjelpsforsikring gir trygghet og tilgang på profesjonell juridisk hjelp dersom det oppdages uventede feil eller mangler det første året etter overtagelse. Forsikringsselskapet behandler i så fall ethvert mangelskrav kjøper måtte ha overfor selger. 
Boligkjøperpakken inkluderer bygningsforsikring for hus og hytte, innboforsikring, flytteforsikring og dobbel rentedekning - i situasjoner hvor kjøper ikke får solgt nåværende primærbolig.   
Kjøper mottar ingen særskilt faktura for Boligkjøperpakken da kostnaden det første året legges til kjøpesummen for boligen. Det gjøres oppmerksom på Krogsveen mottar et honorar for denne formidlingen. Produktark for Boligkjøperpakken ligger vedlagt i salgsoppgaven.  
Dersom ikke boligkjøperpakke ønskes kan kun rettshjelpsforsikring, også kalt boligkjøperforsikring, tegnes særskilt via megler. Rettshjelpsforsikringen varer i 5 år fra overtagelse og leveres gjennom Gjensidige. Ta kontakt med megler for ytterligere informasjon. 
Selskap og privatpersoner som driver med kjøp/salg/utvikling som ledd i egen næringsvirksomhet kan ikke tegne boligkjøperpakke eller rettshjelpsforsikring. 

Budgivning

Forbrukerinformasjon om budgivning er vedlagt denne salgsoppgaven og er også på vår hjemmeside Krogsveen.no. Alle bud og budforhøyelser må inngis skriftlig. I tillegg må legitimasjon være fremlagt sammen med signatur fra budgiver.
Vi oppfordrer til å gi bud elektronisk via GI BUD-knappen på eiendommens hjemmeside på Krogsveen.no. Da vil samtlige vilkår bli oppfylt. Eventuelle forhøyelser eller endringer av budet kan bekreftes pr SMS eller på e-post. Vi oppfordrer alltid til å kontakte megler pr. telefon i tillegg da forsinkelser i SMS og e-post kan forekomme.
For at budene skal kunne bli behandlet og videreformidlet skriftlig til alle involverte parter, må alle bud ha en tilstrekkelig lang akseptfrist, jf. eiendomsmeglingsforskriften § 6-3.
Selger må også skriftlig akseptere budet før aksept kan formidles til budgiver. Akseptfrist bør derfor være på minimum 30 minutter, og budforhøyelser må derfor skje i god tid før fristens utløp.
Bud i forbrukerforhold kan uansett ikke settes med kortere frist enn kl. 12.00 første virkedag etter siste annonserte visning. I tillegg kan ikke budet ha forbehold om at det skal holdes hemmelig ovenfor øvrige interessenter. Megler har iht lov om eiendomsmegling ikke anledning til å videreformidle disse budene, og de vil dermed heller ikke bli journalført.
Etter at eiendommen er solgt vil kjøper og selger få tilsendt budjournal. Øvrige budgivere kan få utlevert kopi av budjournalen i anonymisert form.

Hvitvaskingsreglene

I henhold til lov om hvitvasking og terrorfinansiering har megler plikt til å gjennomføre kontrolltiltak overfor kunder, herunder fullmektiger. Dette innebærer bl.a. å bekrefte kunders og reelle rettighetshaveres identitet på bakgrunn av fremvist gyldig legitimasjon eller på annen godkjent måte, samt å innhente opplysninger om kundeforholdets formål og tilsiktede art. Dersom slike kundetiltak ikke kan gjennomføres, kan megler ikke etablere kundeforholdet eller utføre transaksjonen.
Hvis kjøper ikke bidrar til gjennomføring av kundekontrollen og dette fører til at transaksjonen blir forsinket eller ikke kan gjennomføres, vil dette ansees som mislighold av avtalen og gi selger rettigheter etter avhendingslova kapittel 5. I tilfeller der selger ikke bidrar til gjennomføring av løpende kundekontroll underveis i oppdraget, er det selger som misligholder sine forpliktelser etter avtalen og gi kjøper rettigheter etter avhendingslovens kapittel 4. Partene er selv ansvarlige for eventuelle kostnader og ansvar dette kan medføre. Eiendomsmegleren eller eiendomsmeglingsforetaket kan ikke holdes ansvarlig for de konsekvenser dette vil kunne få for partene eller andre som har interesser i eiendomshandelen.
Kjøper oppfordres til å innbetale kjøpesummen som ikke kommer fra låneinstitusjon i én samlet innbetaling fra egen konto i norsk bank. Megler har plikt til å melde fra til Økokrim om eiendomshandler som fremstår som mistenkelige. Melding sendes Økokrim uten at partene varsles. 

Personopplysningsloven

I henhold til personopplysningsloven gjør vi oppmerksom på at interessenter kan bli registrert for videre oppfølging.

Lovanvendelse

Generelle bestemmelser
Salgsoppgaven er basert på de opplysningene selger har gitt til megler, den bygningssakyndiges tilstandsrapport, samt opplysninger innhentet fra kommunen, Kartverket og andre tilgjengelige kilder. Det er viktig at kjøper setter seg grundig inn i alle salgsdokumentene, herunder salgsoppgave, tilstandsrapport og selgers egenerklæring. Kjøper anses kjent med forhold som er tydelig beskrevet i salgsdokumentene, og slike forhold kan ikke påberopes som mangler. Dette gjelder uavhengig av om kjøper har lest dokumentene. Alle interessenter oppfordres til å undersøke eiendommen nøye, gjerne sammen med fagkyndig før bud inngis. Kjøper som velger å kjøpe usett kan ikke gjøre gjeldende som mangel noe han burde blitt kjent med ved undersøkelsen. 
Dersom det er behov for avklaringer, anbefaler vi at interessenter rådfører seg med eiendomsmegler eller egne rådgivere før det legges inn bud.
En bolig som har blitt brukt i en viss tid, har vanligvis blitt utsatt for slitasje og skader kan ha oppstått. Slik bruksslitasje må kjøper regne med, og det kan avdekkes enkelte forhold etter overtakelse som nødvendiggjør utbedringer. Normal slitasje og skader som nødvendiggjør utbedring, er innenfor hva kjøper må forvente og vil ikke utgjøre en mangel.
Kjøper og selgers rettigheter og plikter reguleres av avtalen mellom partene, samt informasjonen som har vært tilgjengelig for kjøperen i forbindelse med handelen. Avtalen utfylles av avhendingsloven, og det gjelder ulike avtalevilkår avhengig av om kjøper er forbrukerkjøper eller ikke.  Dette er nærmere beskrevet nedenfor. 
På grunn av ulike avtalevilkår kan selger vurdere bud fra en som ikke er forbruker, ulikt fra en forbrukers bud. Dersom kjøper ikke er forbruker, er selger sitt mulige mangelsansvar begrenset fordi eiendommen selges "som den er".  Selger kan ikke ta «som den er»- forbehold overfor en forbrukerkjøper. Selv et lavere bud fra en som ikke er forbruker kan foretrekkes fordi begrensningen i mulig mangelsansvar kan ha egenverdi for selger. Selger står fritt til å forkaste eller akseptere ethvert bud, og er for eksempel ikke forpliktet til å akseptere høyeste bud.
Budgiver skal i budskjema avgi egenerklæring om budgiver er forbruker eller næringsdrivende/ person som hovedsakelig handler som ledd i næringsvirksomhet. Budgivere får informasjon dersom andre bud er inngitt av en som ikke er forbruker. 
Forbrukerkjøp - definisjon
Med forbrukerkjøp menes kjøp av eiendom når kjøperen er en fysisk person som ikke hovedsakelig handler som ledd i næringsvirksomhet.
Forbruker – avtalevilkår
Eiendommen har en mangel dersom den ikke er i samsvar med kravene som følger av avtalen, eller det foreligger brudd på bestemmelsene i avhendingsloven §§ 3-2 til 3-8. Hvis eiendommen ikke er i samsvar med det kjøperen må kunne forvente ut ifra alder, type og synlig tilstand, kan det være grunnlag for mangelskrav. Det samme gjelder hvis det er holdt tilbake eller gitt uriktige opplysninger om eiendommen. Dette gjelder likevel bare dersom man kan gå ut ifra at det virket inn på avtalen at opplysningen ikke ble gitt eller at mangelskravet ikke blir rettet i tide på en tydelig måte.
Boligen kan ha en mangel etter avhendingsloven § 3-3 andre ledd, dersom det er avvik mellom opplyst og faktisk innvendig areal, forutsatt at avviket er på 2% eller mer og minimum 1 kvm.
Ved beregning av et eventuelt prisavslag eller erstatning må kjøper selv dekke tap/kostnader opptil et beløp på kr 10 000 (egenandel).
Ikke-forbruker (næringsdrivende) – definisjon 
Hvis kjøper er en juridisk person, eller en fysisk person som hovedsakelig handler som ledd i næringsvirksomhet, vil kjøpet ikke anses som et forbrukerkjøp. 
Ikke-forbruker – avtalevilkår
Eiendommen har en mangel dersom den ikke er i samsvar med kravene som følger av avtalen.
Eiendommen selges «som den er», og selgers ansvar utover det konkret avtalte er da begrenset etter avhendingsloven § 3-9, første ledd andre setning. 
Avhendingsloven § 3-3 andre ledd fravikes, og hvorvidt boligens arealsvikt utgjør en mangel vurderes etter avhendingsloven § 3-8. 
Informasjon om kjøpers undersøkelsesplikt, herunder oppfordringen om å undersøke eiendommen nøye, gjelder også for kjøpere som ikke anses som forbrukere.
Det forutsettes at hjemmel overføres til kjøper. Hvis kjøper ikke ønsker hjemmelsoverføring av eiendommen, må det tas forbehold om dette i budet.

Meglers vederlag

Meglers vederlag betales av selger og er avtalt til:
- Fastpris kr 25 000,-
Vederlag:
- Kontroll av hjemmel og heftelser kr 2.900,-
- Markedsføringspakke fritidsbolig kr 27.400,-
- Oppgjør kr 7.500,-
- Salgsoppgaver kr 3.600,-
- Tilrettelegging kr 20.000,-
- Visninger per stk / Overtagelse kr 4.000,-
Utlegg:
- Offentlige opplysninger Røros kommune kr 3.073,-
- Tinglysing sikring kr 545,-
Andre utgifter:
- AX tilstandsrapport fritidsbolig  kr 17.500,-
- Boligselgerforsikring Gjensidige kr 9.465,-
- Foto fritidsbolig inkl. kjøring  kr 10.000,-
Vi er opptatt av verdiskapning, og har knyttet til oss samarbeidspartnere som skal sikre våre kunder de beste produkter og tjenester:
- I forbindelse med forberedelse av salget, innhenter vi informasjon om eiendommen hovedsakelig fra vår samarbeidspartner Amibita.
- Gjensidige leverer boligselgerforsikring og tilbyr bygningsforsikring.
- Boligkjøperforsikring leveres av Hiscox og med Sedgwick som skadebehandler, og er formidlet gjennom Gjensidige.
- BN bank tilbyr finansieringsløsninger.
-  Vår avdeling Krogsveen Pluss tilbyr flyttetjenester som utvask, visningsvask, lager, tømming og transport av flyttelass, i tillegg til å formidle kontakt med Flip for overflateoppussing.
- I forbindelse med overtagelse av eiendommen tilbyr Overo avtale om strøm, alarm og bredbånd.
- Krogsveen er, sammen med øvrige bransjeaktører, medeier i den digitale annonseringsplattformen Hjem som eies av Bomega AS.

Opplysninger om oppdraget

Oppdragsnummer 68-0146/25
Eiendomsmegler Krogsveen AS, avd. Trondheim
Fjordgata 82, 7010, TRONDHEIM
950 007 613
Oppdragets KR-kode KR68.25146

Dato

Sist oppdatert: 07. desember 2025 kl. 06:58

Dokumenter

Utskriftsvennlig salgsoppgave

Område

Legg til steder som er viktige for deg

Prisutvikling for området

Kvadratmeterpris
0 kr/m²
Endring
↘︎ % ()

Visning

Ta kontakt med megler for avtale om privatvisning.
Ønsker du kun å bli holdt orientert, kan du fra eiendommens hjemmeside få varsel om solgtpris, eller kontakte megler.
Lurer du på noe?

Vil du varsles om lignende boliger?

Ved å lagre ditt boligsøk hos oss får du beskjed når vi har en bolig som ligner denne, før den legges ut på markedet!

På flyttefot? Slik gjør vi det enklere for deg

Skreddersydd flyttepakke

Vi fikser håndverkere, vask, pakking, lagring og transport, og legger ut for utgiftene underveis.

Hjelp med både kjøp og salg

Hos oss har du din egen rådgiver gjennom hele kjøps- og salgsprosessen.

Hjelp til finansiering

Vårt samarbeid med BN Bank sikrer deg rask og løsningsorientert hjelp, til konkurransedyktige betingelser.