Komplett salgsoppgave

Stadsing Dahls gate 19

3 190 000 kr
33 m²
1 soverom
Velkommen til Rosenborg Park - Stadsing Dahls gate 19, en strøken leilighet, pusset opp i 2025, med gangavstand til Solsiden og Midtbyen
Velkommen til Rosenborg Park - Stadsing Dahls gate 19, en strøken leilighet, pusset opp i 2025, med gangavstand til Solsiden og Midtbyen
Kart
Redesign på Hjem.no
Del
Jan Vidar Lysbakken
Presenteres av
Jan Vidar Lysbakken
Rosenborg
Nyoppusset (2025) og meget lekker eierleilighet | Gangavstand til sentrum og Solsiden | Innglasset balkong | Fjernvarme

Unngå doble boligrenter

Vi tilbyr gunstig forsikring.
Sjekk estimert lånekostnad

    Pris

  • Prisantydning
    3 190 000 kr
  • Omkostninger
    90 790 kr
  • Totalpris
    3 280 790 kr

    Areal

  • BRUKSAREAL
    46 m²
  • BRA-I (internt bruksareal)
    33 m²
  • BRA-E (eksternt bruksareal)
    4 m²

    Nøkkelinfo

  • Etasje
    1
  • Byggeår
    2005
  • Soverom
    1 soverom
  • Bad
    1 bad
  • Type
    Eierleilighet
  • Eierform
    Eierseksjon
  • Fasiliteter
    Heis og Balkong/Terrasse
  • Fellesutgifter
    2 087 kr
  • Energimerke
    Grønn D

Visning

For å delta på visning, ber vi om at du melder deg på. Da sikrer vi at du får nødvendig informasjon og at det er satt av tilstrekkelig med tid. Kontakt megler dersom annet tidspunkt ønskes. Husk å lese salgsoppgaven før visningen, så du stiller forberedt.
Ønsker du kun å bli holdt orientert, kan du fra eiendommens hjemmeside få varsel om solgtpris, eller kontakte megler.
Lurer du på noe?

Beskrivelse

Kort om eiendommen

Velkommen til Stadsing Dahls gate 19 - en delikat og meget tiltalende leilighet på Rosenborg Park. Her bor du sentrumsnært med gangavstand til det meste av Trondheims mest attraktive fasiliteter, samtidig som du også er tilbaketrukket i et rolig og skjermet område. Verdt å nevne:
  • Nydelig oppusset leilighet (2025) med lekker standard og gjennomtenkte løsninger
  • Balansert ventilasjon og fjernvarme
  • Innglasset balkong
  • Generøs takhøyde og god boatmosfære
  • Bod i kjeller
  • Lave fellesutgifter som inkluderer bl.a. varmtvann, fjernvarme og internett
  • Nydelige parkmessige uteområder
  • Etterspurt område med nærhet til midtbyen, uteliv, studiesteder
  • Dagligvarebutikk (Rema 1000) i nabobygget
  • Gode bussforbindelser
  • Innhold og byggemåte

    Eiendommen

    Stadsing Dahls gate 19, 7015 TRONDHEIM
    Kommunenummer 5001, gårdsnummer 410, bruksnummer 695, seksjonsnummer 12, ideell andel 1/1

    Innhold

    Totalt
    BRA: 46 kvm
    BRA-i: 33 kvm
    BRA-e: 4 kvm
    BRA-b: 9 kvm
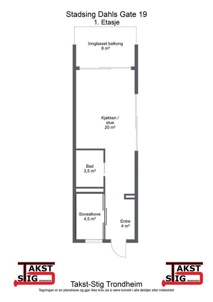
    1. etasje
    BRA: 33 kvm
    BRA-i: 33 kvm. Entré, bad, kjøkken/stue og sovealkove.
    BRA-e: 0 kvm
    BRA-b: 9 kvm. Innglasset balkong.
    Kjeller
    BRA: 4 kvm
    BRA-i: 0 kvm
    BRA-e: 4 kvm. Bod.
    BRA-b: 0 kvm
    Boden er tinglyst som en tilleggsdel til seksjonen.
    Vedlagte plantegninger er ikke målbare. De oppgitte arealer er hentet fra rapport med befaringsdato 14.10.2025 utført av Takst-Stig Trondheim Stig M Selnes. Arealene er beregnet og rom er definert etter dagens faktiske bruk, uavhengig av hva som er godkjent av bygningsmyndighetene.

    Byggemåte

    Selger har fått utarbeidet en tilstandsrapport, dvs. en teknisk gjennomgang av boligen hvor eventuelle avvik, risiko for kjøper og prisoverslag for hva som bør gjøres av oppgradering, er skissert. Se særskilt TGIU (tilstandsgrad ikke undersøkt), samt TG2 . Rapporten og selgers egenerklæring er en del av salgsoppgaven og må leses nøye før bud inngis. Kjøper overtar ansvaret for de opplysninger som fremkommer av salgsdokumentasjonen, og kan ikke gjøre gjeldende som mangel noe som burde vært kjent eller som ikke kan anses å ha betydning for avtalen.  
    Boligblokk oppført over fem etasjer pluss kjeller. Hovedkonstruksjon og etasjeskillere er i betong. Utvendige fasader er med teglstein og fasadeplater. Taket har flatt taks form og antas tekket med takmembran. Vinduer med isolerglass. Det er heis i bygget. Les forøvrig mer om byggemåte og den tekniske tilstanden i rapporten.
    Oppsummering tilstandsgrad 2 i tilstandsrapporten, datert 14.10.2025, utført av Takst-Stig Trondheim v/Stig Magne Selnes:
    - Det registreres at hovedinngangsdøren tar litt i karm/terskel og terrassedøren tar litt i beslaget under døren.
    - Det er ikke foretatt radonmålinger, og bygget er heller ikke utført med radonsperre.
    - Det er ikke påvist tilfredsstillende løsning for å synliggjøre lekkasje fra innebygget sisterne. Det er ikke etablert drenshull for synliggjøring ved en eventuell lekkasje på innbyggingssisterne for wc.
    - El-anlegget er fra byggeår, og det foreligger ikke samsvarserklæring på el-anlegget.

    Moderniseringer og påkostninger

    Boligen er påkostet med nye overflater og nytt kjøkken i 2025 i følge selger.

    Løsøre og tilbehør

    Vi viser til liste fra Norges Eiendomsmeglerforbund som gjelder fra 01.01.2020 angående løsøre og tilbehør.
    Alle hvitevarer medfølger leiligheten i følge selger.

    Oppvarming

    Leiligheten er oppvarmet med fjernvarme og elektrisitet.

    Ferdigattest/brukstillatelse

    Det foreligger ferdigattest for oppføring av boligblokk datert 20.01.2006. Videre foreligger det ferdigattest for tiltak for tak over svalganger datert 08.05.2015. Disse kan fås ved henvendelse til megler.
    Kjøper overtar eiendommen slik den fremstår på visning.

    Tinglyste heftelser og rettigheter

    Leiligheten overdras fri for pengeheftelser.
    Sameiet har legalpant for krav mot sameieren som følger av sameieforholdet iht. eierseksjonsloven § 31. Pantet er begrenset oppad til 2G, (G = folketrygdens grunnbeløp). 
    I tillegg har sameiet tinglyst panterett som nevnt over.
    Det er ingen tinglyste servitutter på eiendommen. 

    Eventuell adgang til utleie

    Leiligheten kan leies ut såfremt leiligheten har forsvarlige radonverdier. Korttidsutleie av hele boligseksjonen i mer enn 60 døgn i året er ikke tillatt. Med korttidsutleie menes utleie i inntil 30 døgn sammenhengende. Leietaker må følge sameiets vedtekter og ordensregler på lik linje som eier.

    Diverse

    Tilbud av produkter og tjenester fra våre samarbeidspartnere. Vi er opptatt av verdiskapning, og har knyttet til oss samarbeidspartnere som skal sikre våre kunder de beste produkter og tjenester:
    - Gjensidige leverer boligselgerforsikring og tilbyr bygningsforsikring.
    - Boligkjøperforsikring leveres av Hiscox og med Sedgwick som skadebehandler, og er formidlet gjennom Gjensidige.
    - BN bank tilbyr finansieringsløsninger.
    - Vår avdeling Krogsveen Pluss tilbyr flyttetjenester som utvask, visningsvask, lager, tømming og transport av flyttelass, i tillegg til å formidle kontakt med Flip for overflateoppussing.
    - I forbindelse med overtagelse av eiendommen tilbyr Overo avtale om strøm, alarm og bredbånd.
    - Krogsveen er, sammen med øvrige bransjeaktører, medeier i den digitale annonseringsplattformen Hjem som eies av Bomega AS.

    Beliggenhet og tomteforhold

    Beliggenhet

    Leiligheten ligger i et veletablert boligområde sentralt i Trondheim! Fra leiligheten har du gangavstand til blant annet dagligvarebutikker, restauranter, frisør, Festningsparken, Rosenborghallen, skoler og barnehager. Du har også Marinen, Høgskoleparken, NTNU Gløshaugen og sentrum i umiddelbar nærhet. Ca. 10 minutter gange fra eiendommen finner du Solsiden, en populær destinasjon ved Nidelvas utløp, som er kjent for sitt pulserende folkeliv både på dagtid og kveld.
    I området har du tilgang på flere dagligvarebutikker. Rema 1000 Rosenborg ligger ca. 2 minutter gange fra leiligheten og Bunnpris Rosenborg med Post i Butikk ligger ca. 8 minutter gange fra leiligheten. Midt i hjertet av Trondheim sentrum, ca. 7 minutter unna med bil, finner du Trondheim Torg - midtbyens største kjøpesenter med over 70 butikker og spisesteder, noe for alle og enhver!
    Kjente studiesteder i området:
    - NTNU Gløshaugen ca. 1,9 km
    - Handelshøyskolen BI ca. 2,1 km
    - Dronning Mauds Minne ca. 2,0 km
    - NTNU Handelshøyskolen ca. 2,4 km
    De gode bussforbindelsene gjør at du lett kan komme deg til skole, jobb og Trondheims øvrige lokasjoner med jevnlige avganger. Nærmeste holdeplass er Gyldenløves gate og ligger ca. 2 minutter gange unna leiligheten. Det er også fine gang- og sykkelveier hvor du enkelt når studiestedene innenfor ca. 10 minutter med sykkel. Trondheim S ligger ca. 20 minutter gange unna og Værnes Lufthavn når du på ca. en 30 minutters kjøretur.
    Kristiansen Festning er en av Trondheims viktigste landemerker med rik historie. Festningen er et attraktiv utfartssted, og byr på en fantastisk utsikt over Trondheim by. Portene er åpne hver dag gjennom året, med et unikt festivaltilbud på sommerstid. Her er det også muligheter for å nyte et godt måltid i Restaurant Kommandanten sine historiske lokaler!

    Adkomst

    Se Google maps - det er enkelt å finne frem i kartet.
    Link: https://maps.app.goo.gl/1QkzjZ77vCyFhvT3A

    Barnehager, skoler og fritid

    Barnehage:
    Rosenborg barnehage (1-5 år) 2 min til fots
    58 barn 0.2 km
    Weidemannsveien barnehage (0-5 år) 6 min til fots
    25 barn 0.5 km
    Småbergan barnehage (1-5 år) 6 min til fots
    29 barn 0.5 km
    Skoler:
    Skoler
    Bispehaugen skole (1-7 kl.) 6 min til fots
    269 elever, 15 klasser 0.5 km
    Trondheim International School (1-10 kl.) 7 min til fots
    219 elever, 12 klasser 0.6 km
    Singsaker skole (1-7 kl.) 13 min til fots
    307 elever, 18 klasser 1.1 km
    Rosenborg skole (8-10 kl.) 3 min til fots
    539 elever, 38 klasser 0.3 km
    Blussuvoll skole (8-10 kl.) 20 min til fots
    549 elever, 27 klasser 1.6 km
    Bybroen videregående skole 17 min til fots
    210 elever 1.5 km
    Strinda videregående skole 19 min til fots
    1150 elever, 17 klasser 1.5 km
    Dagligvare:
    Rema 1000 Rosenborg 2 min til fots
    Bunnpris Rosenborg 4 min til fots
    Varer/Tjenester:
    Solsiden Kjøpesenter 10 min til fots
    Byhaven 19 min
    Vitusapotek Rosenborg 2 min til fots
    Apotek 1 Solsiden 8 min til fots
    Nedre Elvehavn Vinmonopol 10 min til fots
    Bankkvartalet Vinmonopol 18 min til fots
    Sport:
    Rosenborg idrettsplass 3 min til fots
    Rosenborghallen 4 min til fots
    Feel24 Singsaker 7 min til fots
    3T-Solsiden 11 min til fots
    Offentlig transport:
    Gyldenløves gate 2 min til fots
    Linje 25, 28, 63 0.1 km
    Lademoen stasjon 13 min til fots
    Linje R60, R70 1.1 km
    Trondheim S 18 min til fots
    Linje F6, F7, R60, R70, R71 1.5 km
    Dronningens gate 62 6 min med bil
    Linje 9 2.3 km
    Trondheim Værnes 30 min med bil
    Informasjon om tilhørende skolekretser er hentet fra Prognosesenteret som dataleverandør, og tilhørigheten kan årlig endres av kommunen. Dersom skole- og barnehagetilbud er av betydning for kjøpet, ber vi om at det rettes en særskilt henvendelse til kommunen/bydelsadministrasjonen for oppdatert informasjon.

    Beskrivelse av tomt

    Stor eiertomt på 4.371 kvm som tilhører sameiet. Tomten er fellesareal, og er meget pent oppparbeidet med herlige park- og rekreasjonsområder.

    Parkering

    Det medfølger ikke parkeringsplass med leiligheten. Gateparkering etter områdets bestemmelser. 

    Vei, vann og avløp

    Eiendommen har adkomst via privat vei med felles vedlikeholdsansvar for sameiet.
    Eiendommen er tilknyttet kommunalt ledningsnett via private stikkledninger. Sameiet er ansvarlig for private stikkledninger til bygningen.

    Regulerings-og arealplaner

    Eiendommen er regulert til boligformål i henhold til reguleringsplan r0435a datert 15.04.2005 med tilhørende reguleringsbestemmelser datert 24.06.2004.
    Utsnitt av plan med tilhørende bestemmelser kan fås ved henvendelse til megler.

    Økonomi

    Boligens kostnader

    Fellesutgiftene er kr 2.087,- per måned og inkluderer:
    - Felleskostnad driftsdel kr 1.497,-
    - Tillegg renhold heis kr 105,-
    - Tillegg elektroniske fellesavtaler kr 485,-
    Fellesutgiftene justeres normalt en til to ganger årlig i forhold til sameiets faktiske utgifter.
    Utgiftene er basert på nåværende eiers forbruk. Kjøper må selv tegne innboforsikring.

    Kommunale utgifter

    Kommunale avgifter for innværende år er stipulert til kr 10.728,-. I dette inngår gebyr for vann, avløp, feiing og eiendomsskatt.
    Kommunale avgifter i Trondheim Kommune er fordelt på 12 terminer. For termin 9 av 12 i 2025 var avgiften på kr 894,-. Stipuleringen av årlige avgifter tar utgangspunkt i denne termin.
    Kommunale avgifter og gebyrer kan avvike fra en termin til en annen.
    Selger har ikke bebodd eiendommen og har således ikke kjennskap til øvrige løpende utgifter for eiendommen. 
    Utgiftene er basert på nåværende eiers forbruk og avtaler. 

    Formuesverdi

    Formuesverdi for 2023 var kr 677.435,- ifølge skatteetaten. Beløpet forutsetter at eier bor fast i boligen (primærbolig).
    Ved eventuell øvrig bruk av eiendommen (f.eks. fritidsbolig, pendlerbolig, utleieobjekt) var formuesverdien for 2023 kr 2.709.740,-.
    Formuesverdien justeres normalt årlig. Se skatteetaten.no for mer informasjon om fastsettelse av formuesverdien.

    Opplysninger om fellesgjeld

    Andel formue er kr 5.795,- per 31.12.2024.
    Andel fellesgjeld er kr 0,- per 31.12.2024.

    Omkostninger

    3 190 000,00 Prisantydning
    Omkostninger
    79 750,00  Dokumentavgift til staten (2,5% av kjøpesum)
    9 950,00  Gjensidige Boligkjøperpakke (valgfri)
    545,00  Tinglysing panterettsdokument
    545,00  Tinglysing skjøte
    --------------------------------------------------------
    90 790,00 Omkostninger totalt
    --------------------------------------------------------
    3 280 790,00 Totalpris inkl. omkostninger
    --------------------------------------------------------
    Totalpris inkl. omkostninger forutsetter kjøp til prisantydning. Det tas forbehold om endringer i avgifter og gebyrer. 

    Betalingsbetingelser

    Kjøpesum inkludert omkostninger, samt pantedokument tilknyttet eventuelt lån, skal være disponibelt hos megler 2 virkedager før overtagelsen.

    Annen viktig informasjon

    Eier

    Eirik Flatås

    Informasjon om sameiet

    Eiendommen er seksjonert, og leiligheten er tilknyttet Sameiet Rosenborg Park B3, med sameiebrøk 33/5412.
    Sameiet består av 99 boligseksjoner og 3 næringsseksjoner.
    Forretningsfører er Boligbyggelaget TOBB.
    Hver seksjonseier eier 1/177 av eiendommen gnr. 410, bnr. 702 i Trondheim kommune sammen med seksjonseierne i Sameiet Rosenborg Park B4. Eiendommen består av et adkomstareal som brukes i fellesskap av eierne. Andelen er knyttet til seksjonen og kan ikke selges særskilt eller pantsettes eller rådes over på annen måte.
    Dugnad må påregnes. Dyrehold er tillatt så lenge dette ikke er til ulempe for de øvrige brukerne av eiendommen.
    Foretatt påkostninger de senere år: 
    - Utbedring av sentralvarmen.
    - Utskiftning av brannvarslingssystem i blokk A, B og C.
    - Utbedring av terrasse i nummer 19.
    - Installasjon av LED-paneler i korridorene i D-blokka.
    - Utbedring av tak.
    - Reparasjon av svalgang i C-blokka.
    - Rens av avløp og ventilasjon.
    - Installasjon av flere overvåkingskameraer.
    - Sikring av ytterdører.
    Vi gjør videre oppmerksom på at det iht. eierseksjonsloven ikke er anledning å erverve mer enn 2 seksjoner i sameiet, her teller også eierskap via. firma, nærstående og familie. Kjøper har risikoen for at overskjøting på denne bakgrunn kan nektes av Statens Kartverk. I så fall vil kjøper uansett være forpliktet til å gjennomføre handelen, og oppgjør til selger vil finne sted tross manglende overskjøting. Konferer med megler for mer informasjon.
    Dokumenter for sameiet og kopi av seksjonsbegjæringen kan fås ved henvendelse til megler.

    Overtakelse

    Etter nærmere avtale.

    Boligselgerforsikring

    Det gjøres oppmerksom på at selger ikke har tegnet boligselgerforsikring som dekker selgers ansvar etter avhendingsloven. Likevel foreligger selgers egenerklæring og godkjent tilstandsrapport som interessenter må sette seg inn i før bud inngis. Eventuelle reklamasjoner må rettes direkte til selger.  

    Boligkjøperforsikring

    Innen kontraktsmøtet må kjøper ta stilling til om det ønskes å bestille Boligkjøperpakken gjennom Gjensidige. I denne gunstige pakken er boligen ferdig forsikret og inkluderer rettshjelpsforsikring, også kalt Boligkjøperforsikring. Rettshjelpsforsikring gir trygghet og tilgang på profesjonell juridisk hjelp dersom det oppdages uventede feil eller mangler det første året etter overtagelse. Forsikringsselskapet behandler i så fall ethvert mangelskrav kjøper måtte ha overfor selger. 
    Boligkjøperpakken inkluderer bygningsforsikring for hus og hytte, innboforsikring, flytteforsikring og dobbel rentedekning - i situasjoner hvor kjøper ikke får solgt nåværende primærbolig.   
    Kjøper mottar ingen særskilt faktura for Boligkjøperpakken da kostnaden det første året legges til kjøpesummen for boligen. Det gjøres oppmerksom på Krogsveen mottar et honorar for denne formidlingen. Produktark for Boligkjøperpakken ligger vedlagt i salgsoppgaven.  
    Dersom ikke boligkjøperpakke ønskes kan kun rettshjelpsforsikring, også kalt boligkjøperforsikring, tegnes særskilt via megler. Rettshjelpsforsikringen varer i 5 år fra overtagelse og leveres gjennom Gjensidige. Ta kontakt med megler for ytterligere informasjon. 
    Selskap og privatpersoner som driver med kjøp/salg/utvikling som ledd i egen næringsvirksomhet kan ikke tegne boligkjøperpakke eller rettshjelpsforsikring. 

    Budgivning

    Forbrukerinformasjon om budgivning er vedlagt denne salgsoppgaven og er også på vår hjemmeside Krogsveen.no. Alle bud og budforhøyelser må inngis skriftlig. I tillegg må legitimasjon være fremlagt sammen med signatur fra budgiver.
    Vi oppfordrer til å gi bud elektronisk via GI BUD-knappen på eiendommens hjemmeside på Krogsveen.no. Da vil samtlige vilkår bli oppfylt. Eventuelle forhøyelser eller endringer av budet kan bekreftes pr SMS eller på e-post. Vi oppfordrer alltid til å kontakte megler pr. telefon i tillegg da forsinkelser i SMS og e-post kan forekomme.
    For at budene skal kunne bli behandlet og videreformidlet skriftlig til alle involverte parter, må alle bud ha en tilstrekkelig lang akseptfrist, jf. eiendomsmeglingsforskriften § 6-3.
    Selger må også skriftlig akseptere budet før aksept kan formidles til budgiver. Akseptfrist bør derfor være på minimum 30 minutter, og budforhøyelser må derfor skje i god tid før fristens utløp.
    Bud i forbrukerforhold kan uansett ikke settes med kortere frist enn kl. 12.00 første virkedag etter siste annonserte visning. I tillegg kan ikke budet ha forbehold om at det skal holdes hemmelig ovenfor øvrige interessenter. Megler har iht lov om eiendomsmegling ikke anledning til å videreformidle disse budene, og de vil dermed heller ikke bli journalført.
    Etter at eiendommen er solgt vil kjøper og selger få tilsendt budjournal. Øvrige budgivere kan få utlevert kopi av budjournalen i anonymisert form.

    Hvitvaskingsreglene

    I henhold til lov om hvitvasking og terrorfinansiering har megler plikt til å gjennomføre kontrolltiltak overfor kunder, herunder fullmektiger. Dette innebærer bl.a. å bekrefte kunders og reelle rettighetshaveres identitet på bakgrunn av fremvist gyldig legitimasjon eller på annen godkjent måte, samt å innhente opplysninger om kundeforholdets formål og tilsiktede art. Dersom slike kundetiltak ikke kan gjennomføres, kan megler ikke etablere kundeforholdet eller utføre transaksjonen.
    Hvis kjøper ikke bidrar til gjennomføring av kundekontrollen og dette fører til at transaksjonen blir forsinket eller ikke kan gjennomføres, vil dette ansees som mislighold av avtalen og gi selger rettigheter etter avhendingslova kapittel 5. I tilfeller der selger ikke bidrar til gjennomføring av løpende kundekontroll underveis i oppdraget, er det selger som misligholder sine forpliktelser etter avtalen og gi kjøper rettigheter etter avhendingslovens kapittel 4. Partene er selv ansvarlige for eventuelle kostnader og ansvar dette kan medføre. Eiendomsmegleren eller eiendomsmeglingsforetaket kan ikke holdes ansvarlig for de konsekvenser dette vil kunne få for partene eller andre som har interesser i eiendomshandelen.
    Kjøper oppfordres til å innbetale kjøpesummen som ikke kommer fra låneinstitusjon i én samlet innbetaling fra egen konto i norsk bank. Megler har plikt til å melde fra til Økokrim om eiendomshandler som fremstår som mistenkelige. Melding sendes Økokrim uten at partene varsles. 

    Personopplysningsloven

    I henhold til personopplysningsloven gjør vi oppmerksom på at interessenter kan bli registrert for videre oppfølging.

    Lovanvendelse

    Generelle bestemmelser
    Salgsoppgaven er basert på de opplysningene selger har gitt til megler, den bygningssakyndiges tilstandsrapport, samt opplysninger innhentet fra kommunen, Kartverket og andre tilgjengelige kilder. Det er viktig at kjøper setter seg grundig inn i alle salgsdokumentene, herunder salgsoppgave, tilstandsrapport og selgers egenerklæring. Kjøper anses kjent med forhold som er tydelig beskrevet i salgsdokumentene, og slike forhold kan ikke påberopes som mangler. Dette gjelder uavhengig av om kjøper har lest dokumentene. Alle interessenter oppfordres til å undersøke eiendommen nøye, gjerne sammen med fagkyndig før bud inngis. Kjøper som velger å kjøpe usett kan ikke gjøre gjeldende som mangel noe han burde blitt kjent med ved undersøkelsen. 
    Dersom det er behov for avklaringer, anbefaler vi at interessenter rådfører seg med eiendomsmegler eller egne rådgivere før det legges inn bud.
    En bolig som har blitt brukt i en viss tid, har vanligvis blitt utsatt for slitasje og skader kan ha oppstått. Slik bruksslitasje må kjøper regne med, og det kan avdekkes enkelte forhold etter overtakelse som nødvendiggjør utbedringer. Normal slitasje og skader som nødvendiggjør utbedring, er innenfor hva kjøper må forvente og vil ikke utgjøre en mangel.
    Kjøper og selgers rettigheter og plikter reguleres av avtalen mellom partene, samt informasjonen som har vært tilgjengelig for kjøperen i forbindelse med handelen. Avtalen utfylles av avhendingsloven, og det gjelder ulike avtalevilkår avhengig av om kjøper er forbrukerkjøper eller ikke.  Dette er nærmere beskrevet nedenfor. 
    På grunn av ulike avtalevilkår kan selger vurdere bud fra en som ikke er forbruker, ulikt fra en forbrukers bud. Dersom kjøper ikke er forbruker, er selger sitt mulige mangelsansvar begrenset fordi eiendommen selges "som den er".  Selger kan ikke ta «som den er»- forbehold overfor en forbrukerkjøper. Selv et lavere bud fra en som ikke er forbruker kan foretrekkes fordi begrensningen i mulig mangelsansvar kan ha egenverdi for selger. Selger står fritt til å forkaste eller akseptere ethvert bud, og er for eksempel ikke forpliktet til å akseptere høyeste bud.
    Budgiver skal i budskjema avgi egenerklæring om budgiver er forbruker eller næringsdrivende/ person som hovedsakelig handler som ledd i næringsvirksomhet. Budgivere får informasjon dersom andre bud er inngitt av en som ikke er forbruker. 
    Forbrukerkjøp - definisjon
    Med forbrukerkjøp menes kjøp av eiendom når kjøperen er en fysisk person som ikke hovedsakelig handler som ledd i næringsvirksomhet.
    Forbruker – avtalevilkår
    Eiendommen har en mangel dersom den ikke er i samsvar med kravene som følger av avtalen, eller det foreligger brudd på bestemmelsene i avhendingsloven §§ 3-2 til 3-8. Hvis eiendommen ikke er i samsvar med det kjøperen må kunne forvente ut ifra alder, type og synlig tilstand, kan det være grunnlag for mangelskrav. Det samme gjelder hvis det er holdt tilbake eller gitt uriktige opplysninger om eiendommen. Dette gjelder likevel bare dersom man kan gå ut ifra at det virket inn på avtalen at opplysningen ikke ble gitt eller at mangelskravet ikke blir rettet i tide på en tydelig måte.
    Boligen kan ha en mangel etter avhendingsloven § 3-3 andre ledd, dersom det er avvik mellom opplyst og faktisk innvendig areal, forutsatt at avviket er på 2% eller mer og minimum 1 kvm.
    Ved beregning av et eventuelt prisavslag eller erstatning må kjøper selv dekke tap/kostnader opptil et beløp på kr 10 000 (egenandel).
    Ikke-forbruker (næringsdrivende) – definisjon 
    Hvis kjøper er en juridisk person, eller en fysisk person som hovedsakelig handler som ledd i næringsvirksomhet, vil kjøpet ikke anses som et forbrukerkjøp. 
    Ikke-forbruker – avtalevilkår
    Eiendommen har en mangel dersom den ikke er i samsvar med kravene som følger av avtalen.
    Eiendommen selges «som den er», og selgers ansvar utover det konkret avtalte er da begrenset etter avhendingsloven § 3-9, første ledd andre setning. 
    Avhendingsloven § 3-3 andre ledd fravikes, og hvorvidt boligens arealsvikt utgjør en mangel vurderes etter avhendingsloven § 3-8. 
    Informasjon om kjøpers undersøkelsesplikt, herunder oppfordringen om å undersøke eiendommen nøye, gjelder også for kjøpere som ikke anses som forbrukere.
    Det forutsettes at hjemmel overføres til kjøper. Hvis kjøper ikke ønsker hjemmelsoverføring av eiendommen, må det tas forbehold om dette i budet.

    Meglers vederlag

    Meglers vederlag betales av selger og er avtalt til:
    - Fastpris: 20.000,-
    Vederlag:
    -Kontroll av hjemmel og heftelser kr 2.900,-
    - Markedsføringspakke kr 27.400,-
    - Oppgjør kr 7.500,-
    - Tilrettelegging kr 14.900,-
    Utlegg:
    - Eierskiftegebyr TOBB kr 6.570,-
    - Informasjonsgebyr TOBB kr 4.500,-
    - Offentlige opplysninger Trondheim kommune kr 3.666,-
    - Tinglysing sikring kr 545,-
    Andre utgifter:
    - Foto kr 4 .250,-
    - Tilstandsrapport kr 7.850,-

    Opplysninger om oppdraget

    Oppdragsnummer 68-0140/25
    Eiendomsmegler Krogsveen AS, avd. Trondheim
    Fjordgata 82, 7010, TRONDHEIM
    950 007 613
    Oppdragets KR-kode KR68.25140

    Dato

    Sist oppdatert: 15. desember 2025 kl. 07:36

    Dokumenter

    Utskriftsvennlig salgsoppgave

    Område

    Legg til steder som er viktige for deg

    Prisutvikling for området

    Kvadratmeterpris
    0 kr/m²
    Endring
    ↘︎ % ()

    Visning

    For å delta på visning, ber vi om at du melder deg på. Da sikrer vi at du får nødvendig informasjon og at det er satt av tilstrekkelig med tid. Kontakt megler dersom annet tidspunkt ønskes. Husk å lese salgsoppgaven før visningen, så du stiller forberedt.
    Ønsker du kun å bli holdt orientert, kan du fra eiendommens hjemmeside få varsel om solgtpris, eller kontakte megler.
    Lurer du på noe?

    Vil du varsles om lignende boliger?

    Ved å lagre ditt boligsøk hos oss får du beskjed når vi har en bolig som ligner denne, før den legges ut på markedet!

    På flyttefot? Slik gjør vi det enklere for deg

    Skreddersydd flyttepakke

    Vi fikser håndverkere, vask, pakking, lagring og transport, og legger ut for utgiftene underveis.

    Hjelp med både kjøp og salg

    Hos oss har du din egen rådgiver gjennom hele kjøps- og salgsprosessen.

    Hjelp til finansiering

    Vårt samarbeid med BN Bank sikrer deg rask og løsningsorientert hjelp, til konkurransedyktige betingelser.